查看完整案例

收藏

下载
酒吧|成都 MATATA 效果展示
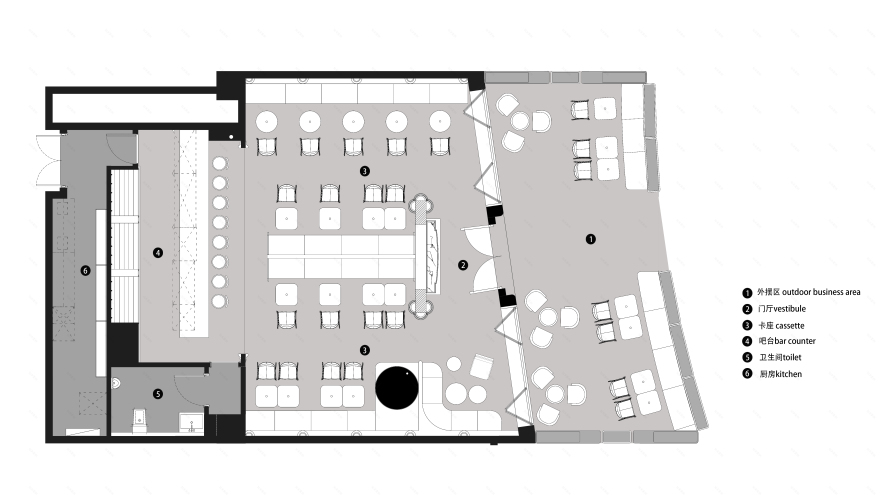
酒吧| 成都 MATATA 平面布置图
众相·Myriad
在 MATATA,建筑的理性与酒精的迷幻碰撞共生。
从厚重的历史,至杯中摇晃的当下。
来者的感官延伸至实体以外,回溯解离,进入辩证的空间。
In MATATA, the rationality of architecture and the hallucination of alcohol collide and coexist. From the thick history to the present that is shaking in the cup, the senses of the newcomers extend beyond the entity, backtrack and dissociate, and enter the dialectical space.
酒吧|成都 MATATA 效果展示
在对结构与光影的把控中,艺术与商业的边界得到消隐,以空间功能回应着情绪寄托,追寻生活的启示。
In the control of structure and light and shadow, the boundary between art and commerce has been hidden. Responding to emotional sustenance with spatial function, and pursuing the enlightenment of life.
酒吧|成都 MATATA 效果展示
酒吧| 成都 MATATA 效果展示
酒吧|成都 MATATA 效果展示
穹隆·Arch
拒绝快餐式的同质化设计,摸索建筑理式
重塑对秩序的知觉,让精神游走于过去与未来之间
Reject the homogenization design of fast-food style and explore the architectural principles. Rebuild the perception of order and let the spirit wander between the past and the future.
酒吧| 成都 MATATA 效果展示
酒吧| 成都 MATATA 效果展示
拆解罗曼式拱券与古希腊柱式,营造古典语境。
以结构的语言誊撰维特鲁威之书。
于现代的钢筋水泥丛林中,万神庙的幕景影绰再现。
Disassemble Roman arches and ancient Greek orders to create a classical context.Copy the book of Vitruvius in the language of structure.In the modern reinforced concrete jungle, the scenes of the Pantheon Temple reappear.
酒吧|成都 MATATA 效果展示
弥繁·Enrich
刻画细节以制造愈强的反差感,形成城市日常的特异点
突破形式的表皮,制造更完备的精神世界
Characterize details to create a stronger sense of contrast, and form a special point of urban daily life. Break through the epidermis of form and create a more complete spiritual world.
酒吧| 成都 MATATA 效果展示
烛影曳动下,茛苕卷涡纹样恣意生长。墙壁旧色,附着如老抄本的斑驳质感,沉淀每一段记忆。黄铜水晶灯与玻璃花窗共同构成极具故事性的影像。
Dragging by the shadow of the candle, the buttercup creeper scroll pattern grows freely. The old color of the wall, attached by the old copy with mottled texture, precipitates every memory. Brass crystal lamp and glass flower window together form a very story image. 庭燎 · Flame. 掌控光影,在空间中展开叙事. 将时间的流动符号化. 以色温重塑来者的感知,草拟幻觉的力场.
Control light and shadow, and unfold narrative in space.Symbolize the flow of time.Reshape the perception of visitors with color temperature, and draft the force field of illusion.
酒吧| 成都 MATATA 效果展示
晦明转换之间,虚实被模糊,而一切则将凝滞于狄俄倪索斯祭狂热的夕阳。
Between the transformation of obscurity and brightness, the virtual and the real are blurred. And everything will stagnate in the setting sun of Dionysus’ fanaticism.
酒吧|成都 MATATA 效果展示
艺术不断地革新,是由于其有着太阳神与酒神的双重性格。——尼采《悲剧的诞生》
Project name|MATATA
Project site|大悦城成都
Area|140㎡
Design in Charge|E.ko 梁屹
Design Team|Leah 杨蕾|Boki 唐茜茹
Installation art production|E27 Studio
Photographer|Cissy.Li
Copywriting|Jo 谢婉璇
Time|January2022
客服
消息
收藏
下载
最近














