查看完整案例

收藏

下载
在外人看来,设计师的家一定是五花八门,个性另类的。而据我们这么多年看到的设计值自宅之后,发现大部分设计师的家并不是在炫技,在强调设计的标新立异,更多的是在寻找自我,朴实而简洁的。特别是资深设计师,或许是当他们为许多家庭完成居住梦想后,发现,越是简单真实的东西,越是永恒的。
今天,给大家分享三位「设计师的家」,看看设计师都是怎么设计自己家的。
孙建亚自宅
流量过亿,仍“纤尘不染”
2024年年末,知名孙建亚自宅落成后,因为一位博主探家视频火爆全网,成了当之无愧的“流量之家”,而作为孙建亚用多年心血打造的家,它并不是只有热度,更是一位设计大咖几十年设计功力的凝练,“叫好也叫座”,无论从园林景观,到建筑外观,还是室内设计,都堪称完美。
七年前孙建亚萌生找房子的念头,其实是缘于女儿的一句话。当时女儿跟随他去了两次苏州的改造项目。第一次全是废墟,女儿无感,待三个月后项目完工,又带女儿去了一次,废墟已经变身成有宅有院的漂亮的家了。
“我一直想要有一个院子,”孙建亚说,“这是我在上海近20年,能够重新接近自然的方式。”
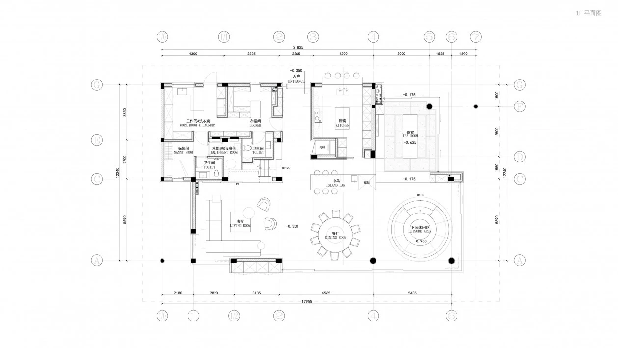
平面图
张奇峰自宅
不讨好,不随流,不勉强,不凑合
设计师张奇峰
在宁波帝宝这个小区为其他业主做了N套设计之后,张奇峰、袁霞夫妇终于也挡不住理查德.罗杰斯(帝宝的建筑设计师)的魅力,抵挡不住270度的城市风光和下班时的斜阳暖霞,决定购买这套计划之外的房子,作为自己在城中的新家。
从别墅到大平层,这个家的设计并不需要去追求生活质量的改善,而是在满足设计师夫妇内心对生活方式和居住空间新的思考。用张奇峰的话来说:“原来的家追求的是设计形式上的表现和生活环境的改善,但是在这个房子里,我更追求一种极致的自我,不讨好,不随流,不勉强,不凑合。”
方案三易其稿,410平米的空间最终敲定的平面里只保留了两个卧室,但他们并没有把大量的空间留个客厅,而是将其均衡地分配给厨房、餐厅、茶室、卧室等生活的功能空间以及储物的空间。
张奇峰说:空间的布局和我们当下的生活状态是直接关联的,我们以前住的地方有4个房间,但是其中两个基本没用过,所以这次干脆把多余的房间都去掉了。
同时客厅方面因为房子四周都是落地窗,虽然我们可以把客厅跟餐厅放在一起,做一个100平米以上的超大客餐厅出来,但设计做久了,表面的浮华已不是内心的追求了,空间的尺度和人之间的温度感才是最终的标尺。所以选择了把空间隔开,不同功能空间之间既有关联,又有自己独特而细微的变化。把空间适当的做小,反而是一种选择。
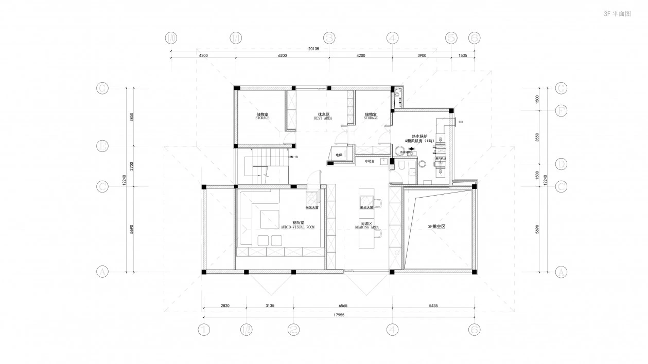
△ 平面图
刘志明自宅
家,应该是直达本真的地方
设计师刘志明
设计师刘志明的自宅,因向往亲近自然的生活,新的家位于一个闹中取静、植被丰富的小区,并选择了刚刚好能看到窗外绿叶葱翠的三层,希望未来的家是可以感知阳光风雨、四时变换的地方,且方便女主人打理。
去装饰
房子原本是一个4室2厅3卫的精装修房,面积约200平米,容纳一家三口的生活,是宽裕的。重重隔断的墙体在设计师眼里显得既无必要、也浪费了大平层的优势,于是拆掉了所有能拆的墙,对空间做新的布局。
新空间平整大气,灰底的素,配以原木色的雅,淡淡的,犹如清晨的一抹云彩,带着一丝清凉,一份暖意,安静、且闲适。设计师没有去强调过多的造型和装饰,但骨子里的追求,让他在无意间,留下了自己的设计痕迹。
积木与木匠
设计师像搭积木那样,用大小不一的方块把空间分成若干块面,再通过打开、移位、切洞、对视等手法,将不同的方块联系起来,使得人在其中活动,感到顺手又舒心。
△项目平面
延伸阅读
新作 x 吴滨| 藏艺于庭,传统中延续当代
新作 x 吴滨| 藏艺于庭,传统中延续当代
合作/投稿
13693232461
客服
消息
收藏
下载
最近




























































































