查看完整案例

收藏

下载
喜乐川菜
“喜乐川菜”是上海尽善口福牛肉火锅旗下全新推出的川菜品牌,主打大众消费定位。作为品牌的首家线下门店,喜乐川菜坐落于上海前滩板块,为这一繁华地段注入了鲜明的川菜文化和市井烟火气息。
▲店铺概览
“市井“和”手工“是品牌想要传达出来的品牌基因,作为中国八大菜系之一,川菜以浓厚的市井烟火气为特征,这种烟火气也正是川菜文化的重要符号。作为一家传统中式餐饮”新品牌“,如何通过设计让顾客第一时间感知到品牌的核心基因,则是我们首要考虑的问题。
▲室内概览
因此
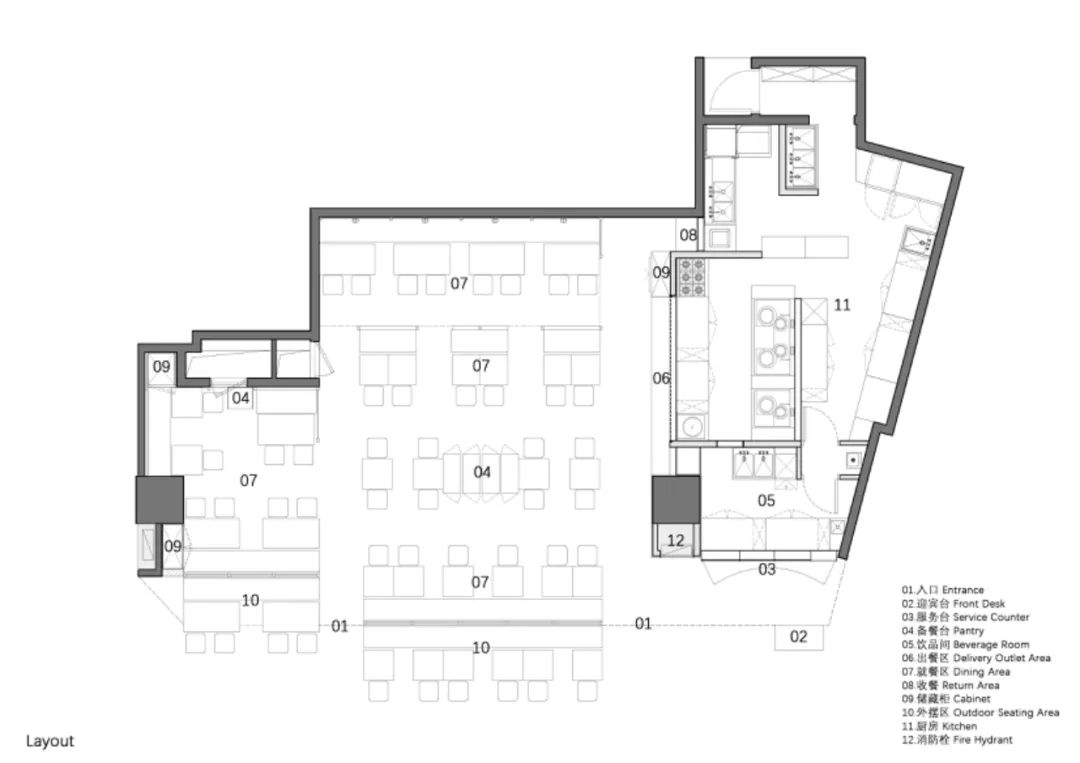
▲平面布局
▲天花
感谢来自 弹性工作室 投稿 —— T5OP
门头的设计上,我们其实并未采用传统意义上的门头造型,也没有设计直白明确的出入口,而是留出了两个通道作为餐厅的主通道。同时我们沿着铺位线设计了外摆区域,使外摆和室内空间无缝衔接。当然这样的好处在于可以最大化地利用了商场的公共区域,当然这也是物业管理所许可的,这样我们的外摆区域可以沿着铺位线自然延展,与室内空间无缝衔接,使整个空间与公共区域融为一体,营造出一种开放、自由的“市井集市”氛围。
▲两侧入口通道
为了体现东方语境下的市井表达,我们对具有中式意味的“市井大棚”进行了现代化转译。通过三种不同造型但设计逻辑相同的屋檐,来营造类街边排档的就餐氛围。同时品牌强调新鲜现炒与健康饮品,希望将“锅气”和手工制作的过程直观展现给顾客。基于这一需求,我们将这一展示区域设置在店铺右侧、最靠近公共区域的位置。设计一个极具辨识度的“红房子”作为视觉焦点,配以醒目的红色屋檐,使之成为整个面向公区立面的核心亮点。
▲就餐区
材料选择上,考虑到餐饮空间对耐污性和易清洁性的需求,空间内的大多数材料则是采用了常规类型,以确保其长期使用中的耐久性和易维护的特性,避免过于个性化的材料在持久性方面可能带来的问题。但是在入口店招的设计中,我们需要通过门头来呼应品牌的核心基因。为此我们通过线上渠道联系到四川当地的非遗竹编技艺传承人,采用手工彩色竹编工艺制作了入口的门头隔断。此外“红房子”区域的地面使用了手工烧制的红色地砖,这种质朴的手工砖作为地面材料,既体现了地方特色,又增添了空间的独特感。
▲彩色竹编
空间的设计语言看似复杂,实则简单明了,抛开可移动的桌椅和软装,整个空间内我们只设计了“屋檐系统”,通过不同形态的屋檐来划分各个就餐区。空间内的核心装置是由巨大亚克力组合而成的葫芦灯,设计来源于新中式品牌doodo冬豆的新宫灯。葫芦作为品牌的logo,中式则为品牌文化,两者相结合而成的装置,不仅符合品牌形象,也很好的起到了点睛的作用。
▲屋檐系统
▲屋檐细节
▲葫芦宫灯
▲轴测图
客服
消息
收藏
下载
最近























