查看完整案例

收藏

下载
新的BURGBÜHNE BEESKOW剧场由三个亭子和一个位于古老城堡建筑群中心的户外舞台组成。这座中世纪城堡有着丰富的建造与再利用历史。如今,这些建筑作为区域性的文化和教育中心,成为乡村社区的一个重要聚会场所。
The new Burgbühne Beeskow comprises three pavilions with an outdoor stage located in the center of the listed ensemble of the castle complex. This medieval castle has a rich history of construction and reuse. Today, the buildings serve as the regional cultural and educational center, acting as a central meeting place for the rural community.
▼远观,distant view © Simon Menges & Nino Tugushi
▼鸟瞰,aerial view © Simon Menges & Nino Tugushi
亭子和舞台的设计秉承多功能文化使用的理念,建筑师与用户密切合作,共同完成了这一设计。舞台为演员和音乐家提供表演空间,而亭子则作为舞台布景或更衣室使用。亭子的屋顶也融入了舞台设计。除了夏季活动,这些亭子还将在冬季举办城堡节、工作坊及小型画廊展览。
The pavilions and outdoor stage were developed with the vision of multifunctional cultural use, created through close collaboration between the users and the architects. The stage provides a performance venue for actors and musicians, while the pavilions function as stage sets or dressing rooms. The accessible roofs are also integrated into the stage design. In addition to summer events, the pavilions host castle festivals, workshops, and a small gallery during the winter months.
▼外观概览,overall of exterior © Simon Menges & Nino Tugushi
▼庭院立面,courtyard facade © Simon Menges & Nino Tugushi
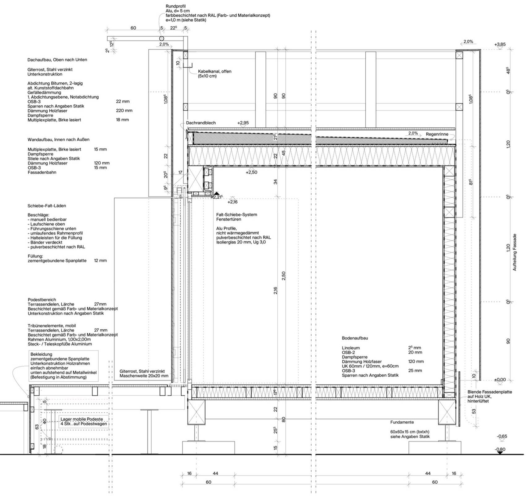
项目选用的建筑材料优先考虑地理性和生物性材料。大部分施工工作由当地一家已参与城堡建设三代的木工公司完成。亭子建在点基础上,基础位于历史铺装的地面上,从而最大程度减少了混凝土的使用,保留了场地的历史风貌。亭子采用木框架结构,并用木纤维进行隔热处理,适合全年使用,包括冬季作为画廊使用。折叠式窗帘墙的外立面设计灵感来源于红砖城堡墙的材质与色调。内部设计简洁、单一,以浅色木材和油毡地板为主,营造出温暖的氛围。
The construction prioritizes geo-based and bio-based building materials. Most of the work was carried out by a local carpentry firm, which is now in its third generation of involvement with the castle. The pavilions are elevated on point foundations set atop the historic paving, minimizing the use of concrete and preserving the historical fabric of the site. Built with a timber frame construction and insulated using wood fiber, the pavilions are suitable for year-round use, including as a gallery in winter. The folded, curtain-wall façade draws inspiration from the materiality and color of the red brick castle walls. Internally, the design is restrained and monochromatic, featuring light-colored wood and linoleum flooring.
▼亭子和舞台,pavilions and outdoor stage © Simon Menges & Nino Tugushi
▼单体亭子,the pavilion unit © Simon Menges & Nino Tugushi
▼折叠式窗帘墙的外立面,
the folded, curtain-wall façade © Simon Menges & Nino Tugushi
▼近景,closer view © Simon Menges & Nino Tugushi
庭院立面配有可大范围开启的折叠百叶窗和推拉窗。窗户打开时,大面积的开口邀请访客进入亭子,并提供城堡的开阔视野;关闭时,优雅的亭子与背后的城堡墙体自然融合,展现出和谐统一的美感。
The courtyard façades can be opened widely with folding shutters and sliding windows. When open, these large openings invite visitors into the pavilions and offer generous views of the castle. When closed, the elegant pavilions blend seamlessly with the castle wall behind them.
▼外立面,facade © Simon Menges & Nino Tugushi
▼台阶,steps © Simon Menges & Nino Tugushi
▼总平面图,site plan © Atelier Fanelsa
▼平面图,plan © Atelier Fanelsa
▼立面图,elevation © Atelier Fanelsa
▼平面细部,detailed plan © Atelier Fanelsa
▼细部详图,detailed drawing © Atelier Fanelsa
Type: Stage, multi-functional spaces for arts and culture
Location: Beeskow, Brandenburg, Germany
Year: 2021 – 2024
Status: Completed
Client: Landkreis Oder-Spree
Size: 370 m²
Team: Niklas Fanelsa, Anna Wulf, Felix Arlt
With: Ch. Trost GmbH
Images: Simon Menges, Nino Tugushi
Drawings: Atelier Fanelsa
客服
消息
收藏
下载
最近



















