查看完整案例

收藏

下载
这个方形的塔,不仅是城市天际线中一个引人注目的存在,更是越江隧道不可或缺的一部分,扮演着至关重要的角色:它是一个高达 28 米的风塔,其设计巧妙地将一个 27 米见方的巨大方形屋面悬吊于半空之中。这方形的屋面,宛如一片巨大的绿叶,轻轻覆盖在下方那片充满生机的绿色场地之上,使得自然与建筑之间形成了无缝的过渡。绿色的草坪与植被自由地延伸至屋面之下,仿佛场地本身就能流畅地“流淌”进这个独特的空间之内,营造出一种和谐共生的美妙景象。
This square tower is not only an eye-catching presence in the city skyline but also an integral part of the river-crossing tunnel, playing a crucial role. It is a wind tower that stands 28 meters tall, with a clever design that suspends a massive 27-meter square rooftop in mid-air. This square rooftop, resembling a giant green leaf, gently covers the vibrant green space below, creating a seamless transition between nature and architecture. The green lawn and vegetation freely extend under the rooftop, as if the site itself can smoothly “flow” into this unique space, creating a wonderful scene of harmonious coexistence.
▼江畔鸟瞰,aerial view of the river©刘国威
▼场地鸟瞰,aerial view of the site©刘国威
▼项目鸟瞰,aerial view of the project©刘国威
▼28 米的风塔成为滨江新地标,the 28-meter wind tower has become a new landmark of the riverside ©刘国威
▼半鸟瞰,half-aerial view©刘国威
在这个被绿色环绕的空间里,不仅规划有精致的花园,供人漫步休憩;还巧妙地设置了车库坡道,为车辆的进出提供了便捷;更令人意想不到的是,这里还配备有设施齐全的卫生间,满足了人们多样化的需求。我们致力于打造一个既轻松自如又能各得其所的环境,从座椅的布置到花池的设计,从洗手台的造型到地面的铺装,再到厕所隔间的私密性处理,每一个细节都经过精心考量。雨链的设计不仅美观,还能有效引导雨水排放,而树木、草地与光线的巧妙运用,更是让整个空间充满了生机与活力。
▼分析图,analysis ©同济原作工作室
In this space surrounded by greenery, there is not only a delicate garden for people to stroll and rest but also a cleverly designed garage ramp that provides convenient access for vehicles. Even more surprising is that it is also equipped with a fully furnished restroom, meeting people’s diverse needs. We are committed to creating an environment that is both relaxed and appropriate for everyone, with every detail carefully considered, from the arrangement of seating to the design of flower beds, from the shape of sink units to the paving of floors, and to the privacy of toilet stalls. The design of rain chains is not only aesthetically pleasing but also effectively guides rainwater drainage, while the clever use of trees, grass, and light fills the entire space with vitality and energy.
▼街景视角,street view ©刘国威
▼被绿色环绕的空间,space surrounded by greenery©刘国威
▼风塔与精致的花园,the wind tower with exquisite garden ©刘国威
▼方形屋面悬吊于半空之中,the square roof hangs in mid-air ©刘国威
▼外部近景,closer view of exterior©刘国威
▼方形屋面细部,details of the roof©刘国威
然而,这座小房子的实现过程远比它外表所展现的要复杂得多。它所处的位置极为特殊,不仅紧邻江浦路,还与正在运行的 14 号线地铁线路交叉而过,此外,丹东路轮渡站也位于其附近,这些因素都大大增加了建设的难度。特别是风塔卫生间的右上方,正是越江隧道的工作井所在,隧道内部的风正是通过这里被抽出,经过一系列复杂的风道设计,从地下二层穿越至公共停车 2#库坡道和消防水泵房的间隙,再垂直向上排出。同时,2#库的建设还需兼顾轮渡站下方地库的车辆出入需求,确保交通流畅无阻。
▼剖面图,section©同济原作工作室
However, the realization of this small building is far more complex than its appearance suggests. Its location is extremely special, not only adjacent to Jiangpu Road but also crossing over the operating Metro Line 14. In addition, the Dandong Road Ferry Terminal is also nearby, all of which significantly increase the construction difficulty. Especially the top right corner of the wind tower restroom is where the working shaft of the river-crossing tunnel is located, and the wind inside the tunnel is extracted through here, passing through a series of complex duct designs from the second basement to the gap between the public parking 2# ramp and the fire pump room before being vertically discharged. Meanwhile, the construction of the 2# parking garage also needs to accommodate the vehicle access needs of the garage below the ferry terminal to ensure smooth traffic flow.
▼屋顶之下,under the roof©刘国威
▼公共卫生间洗手池区域,public bathroom sink area©刘国威
▼树木、草地与光线的巧妙运用,the clever use of trees, grass, and light©刘国威
▼秋千式的座椅,the swing seat©刘国威
▼洗手池细部,details of the sink©刘国威
▼花池细部,details of the planter©刘国威
▼屋顶细部,details of the roof©刘国威
从设计之初到最终建成开放,这个项目历经了整整 10 年的漫长岁月。它不仅仅是风塔与卫生间的简单结合,更是轮渡站建设、越江隧道建设以及周边道路地面建设等多个大型工程协同作业的结果。在这漫长的过程中,项目团队克服了一个又一个技术难题,不断调整优化设计方案,最终才使得这个集功能性与艺术性于一体的风塔卫生间得以逐级实现,成为城市中一道亮丽的风景线。它的建成,不仅是对工程技术的一次巨大挑战,更是对城市基础设施复合利用的一次深刻诠释。
From the initial design to the final completion and opening, this project has undergone a long period of ten years. It is not just a simple combination of a wind tower and a restroom but also the result of collaborative efforts among multiple large-scale projects such as the construction of the ferry terminal, the river-crossing tunnel, and the surrounding road and ground improvements. During this lengthy process, the project team overcame numerous technical challenges, continuously adjusting and optimizing the design scheme, ultimately enabling this wind tower restroom, which integrates functionality and artistry, to be realized step by step, becoming a beautiful landmark in the city. Its completion is not only a tremendous challenge to engineering technology but also a profound interpretation of the composite utilization of urban infrastructure.
▼巧妙的灯光设计,clever lighting design©刘国威
▼立面夜景,night view of exterior©刘国威
▼庭院内夜景,night view©刘国威
▼总平面图,site plan©同济原作工作室
▼风塔地上平面-标高 1.5,plan of the wind tower at level 1.5m ©同济原作工作室
▼风塔地上平面-标高 2.4,plan of the wind tower at level 2.4m ©同济原作工作室
▼风塔地上平面-标高 2.8,plan of the wind tower at level 2.8m ©同济原作工作室
▼风塔地上平面-屋顶,roof plan of the wind tower ©同济原作工作室
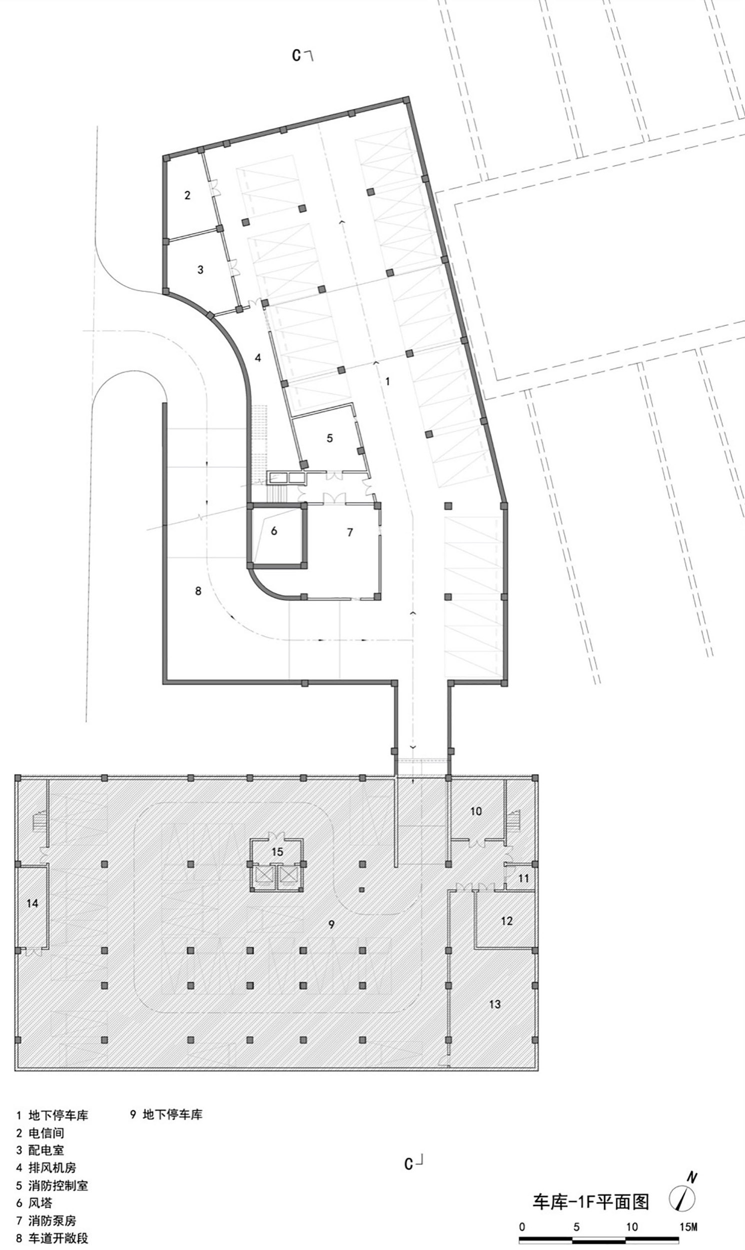
▼车库地下平面-负一层,b1 plan ©同济原作工作室
▼车库地下平面-负二层,b2 plan ©同济原作工作室
▼立面图,elevations ©同济原作工作室
▼剖面图,sections © 同济原作工作室
项目名称:上海杨浦滨江公共空间风塔卫生间
主创设计单位:同济大学建筑设计研究院(集团)有限公司原作设计工作室
主创建筑师:章明、张姿、秦曙
建筑设计团队:李雪峰、羊青园、李晶晶、刘静怡、曾楚晴、王佳艺(实习生)
项目地点:上海市杨浦区丹东路安浦路路口
用地面积:4077.1 平方米
建筑面积:123.42 平方米
建设单位:上海杨浦滨江投资开发(集团)有限公司
深化设计单位:上海市城市建设设计研究总院(集团)有限公司、上海聚隆绿化发展有限公司
摄影师:刘国威
Project Name: Wind Tower Restroom in Yangpu Riverside Public Space, Shanghai
Lead Design Firm: Original Design Studio, Tongji Architectural Design (Group) Co., Ltd.
Lead Architects: Zhang Ming, Zhang Zi, Qin Shu
Architectural Design Team: Li Xuefeng, Yang Qingyuan, Li Jingjing, Liu Jingyi, Zeng Chuqing, Wang Jiayi (Intern)
Project Location: Intersection of Dandong Road and Anpu Road, Yangpu District, Shanghai
Site Area: 4077.1 square meters
Gross Floor Area: 123.42square meters
Client: Shanghai Yangpu Riverside Investment and Development (Group) Co., Ltd.
Detailed Design Firms: Shanghai Urban Construction Design and Research Institute (Group) Co., Ltd. & Shanghai Julong Landscaping Development Co., Ltd.
Photographer: Liu Guowei
客服
消息
收藏
下载
最近







































