查看完整案例

收藏

下载
每一次我开始写文章时,脑海中总是会浮现一些画面,好似电影回放。很享受这样的过程,一边回想一边敲下想和你们说的话。无论项目经历如何,这都是我这辈子(如果 55 岁退休)200 个项目中之一。本案是我们 24 年 10 月份完成拍摄的。拍摄设计项目之前,我们往往会让屋主先在新家里住上一段时间,这段时间可能是 1 年也可能是几年。
我们对于设计时效性因素的考虑是“麻木”的,当然这也是一种变相的自信。说回项目,屋主把家经营得非常好。我上一次去她家里,已经是三年前了。家里和我们设计完并无二致,和三年前不同的是多了一些她组装好的乐高成品,这个爱好从我们设计之初就已经了解到了,当时在设计中也预留了很多展示与收纳的空间。当然也有一些新的爱好,比如插花,在客厅和书房里面有很多她的作品。
拥有一个美丽的家是开启美好生活的第一步,但能否把家经营好,是一种能力。关乎性格,更关乎习惯及生活态度。显然屋主经营得很好,并不是因为我们今天来拍摄而特意准备的结果。家中到处有她的物品,但都被放置恰到好处,而且这些东西上面很干净。这些既是装饰,也是喜爱之物,这种状态很好。家被喜爱之物所包围是一种幸福。这句话中,尤为重要的是——喜爱之物。如果不是,那么会随着时间转变成一种负担。
会不会有阶段性的爱好?肯定的,而且绝大部分都是阶段性爱好之间相互替换。从引发兴趣到变成爱好到最后“发烧”并保持,这需要时间的积累,但绝大部分情况就是在这个过程中失去了兴趣。我遇到过一个屋主,特别喜欢 HiFi,捣鼓了快 20 年。对功放、发声单元、线材还有音源等一堆东西,都有自己的见解,把自己慢慢变成了专业人士,甚至比从业人员了解的更为全面。有爱好并且能持续保持,是一件幸福的事情。
屋主是一位留学归来,有着精致都市感的知识女青年。她在国外生活了很多年,回国后选择来杭州这座城市发展生活,和她类似经历的屋主在我们服务群体中有一定的占比。
她购买的这套房子是开发商精装交付,装标不低。169m²四房格局,但对于屋主而言,前面几年可能都会是她一个人主要居住,爸妈偶尔会过来陪她。四房格局对于屋主来说是宽裕的,我们担心的是空间有效利用率。
改造前户型平面:
原始户型很“方正”,无论是采光还是通风都是不错的。那么剩下的就是空间效果、厨房过小问题以及房间数量过剩,需要我们设计师进行整体调整。
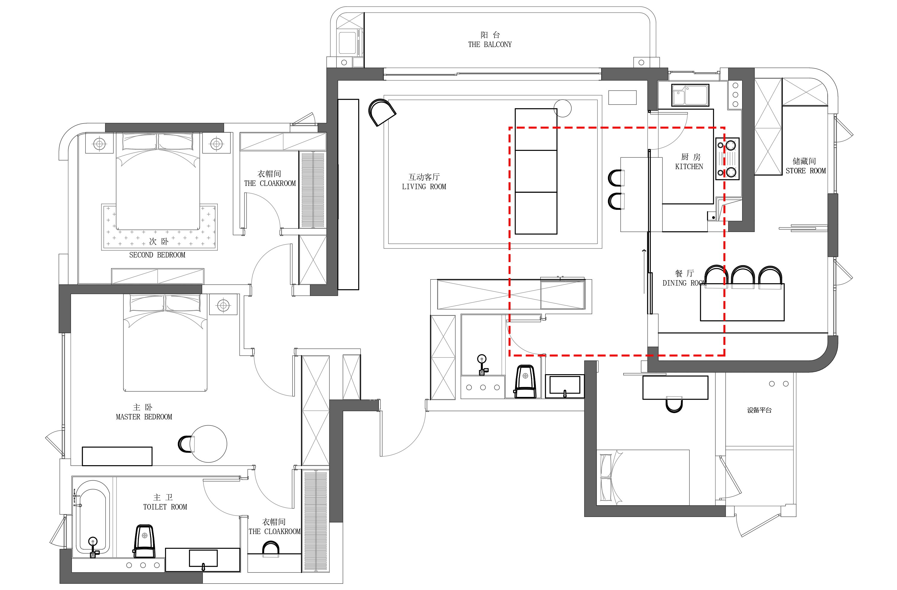
改造后户型平面:
改造后的区域我用红色虚线圈出,为了让屋主拥有更多的有效使用空间,并且提高厨房可操作空间,我们进行了以下操作:
第一,我们将厨房原放置冰箱位置的墙体进行拆除,然后加入一组厨柜和岛台。并且用铝合金门窗(可折叠)代替墙体,从而使厨房变成可开可闭的双重状态。不仅提升了厨房的操作空间和储藏空间,又提升了次卧的采光和空间的通透性,同时也满足开通燃气的必要条件。
第二,提高屋主有效使用空间,把原本使用率低下的次卧空间通过厨房的一系列改动升级成为餐厅兼顾手作空间使用。不仅仅提升了空间的通透性并且大大提升了空间的使用率,同时也让封闭空间的储物间变成了对公使用的储藏室,利用率和便捷性都大大增强,可以说一个改动获利三方。
第三,冰箱外移,功能动线更为便捷。上图的平面方案中,冰箱位于交通主通道上。无论是在客厅,还是在餐厅,都可以便捷的拿到冰箱的食物,同时冰箱和厨房的距离也在屋主接受范围。相比起距离,屋主对于大容量冰箱的需求更高。
整个空间的视觉效果调整围绕着一个关键词展开——都市感。从 before 改造前的照片中,我们可以看到我们并没有对硬装进行大面积的调整,除了拆掉了那一小堵影响视线的薄墙,并通过增加柱式的方式限制行走的动线,确保书桌周边的空间。我们保留了原始的吊顶、大理石地面以及四周的主墙面。通过地面加铺地板以及墙面风格化壁纸的处理,从而让空间的氛围焕然一新。这就是设计的“魔法”。
我们给客厅和玄关添加了 3 组柜体,满足屋主放置乐高以及鞋子衣物等储藏需求。并且对于柜体的形式进行了设计,保留了大量展示的空间。
厨房的改动是我们在本案中唯一的结构性调整,并且保留了原始的厨柜,只进行柜门的更换。厨房改动的细节以及巧妙之处已在上文中详细解答,这里不再赘述。我们从实景拍取的照片中感受这个改动后带来的变化。
厨房和多功能餐厅空间因取消了墙体的约束,从而使得 2 个空间的采光和通透感更好。在明亮的环境下进行乐高的拼组,相信会是很不错的体验。
客厅的改动主要是在于餐厅的独立(餐厅➡️移动➡️次卧),这个改动让客厅拥有更多的面积。并且通过降低电视机的高度,从而让客厅空间的层高在视觉上进行拔高。同时客厅那一组柜体的设计也让客厅拥有更好的呼吸感。魔鬼在细节中,这些看似不起眼的改动,其实是设计师对于空间效果的洞见。对于精装改造,就是在限制的环境中把创作的效果最大化,也尤为考验设计师对于细节的把控和处理。书桌和隐藏式冰箱的柜门选用了波浪纹造型,以及梦幻帘的造型,都是有设计目的在里面,为的是让空间效果在精致的同时又有一些松弛,波浪——水。
对于空间风格化处理,我们选用了人字拼实木地板和那根用来限制动线的柱体,来表达空间的精致感。墙面选用了植物纹样的壁纸,在表达精致都市感的同时让空间拥有更多的自然和温度。
我们主要的改动还是集中在公共空间,主卧我们把地板进行了更换,和公共区域地面采用同一款人字拼地板。主卧的设计中保留了大面白墙,满足屋主卧室投影的需求。
RoomTour
项目面积:168m²
设计时间:21 年设计
居住人员:屋主独居(父母偶住)
户型格局:客厅+餐厅(多功能室)3 房 2 卫 1 厨
房屋类型:平层住宅
客服
消息
收藏
下载
最近































