查看完整案例

收藏

下载

翻译
Architects:Schwartz and Architecture
Area:816ft²
Year:2021
Photographs:Douglas Sterling Photography
Manufacturers:Bosch,Fireclay,Kohler
Lead Architects:Christopher Baile
Contractors:Eames Construction
Structural Consultants:Framework Engineering
Design Team:Ania Burlinska
City:Sonoma
Country:United States
Text description provided by the architects. Millions of years ago, the volcanoes of Sonoma Valley spewed hot magma across the landscape. As the lava quickly cooled, the eruption's gases became trapped, forming porous cavities instead of crystallizing into dense stone. These blackened rocks —rhyolite, basalt, andesite, and pumice—still dot the landscape today, surprising in their lightness despite all appearances.
The structure sits as another "dot" in the open landscape and references the resiliency of the blackened rocks, using inherently fire-resistant materials, cementitious stucco, standing seam metal, and blackened cedar siding in the tradition of the Shou Sugi Ban. The latter is both a conceptual nod to the process of volcanic rock formation and a practical strategy for fire protection.
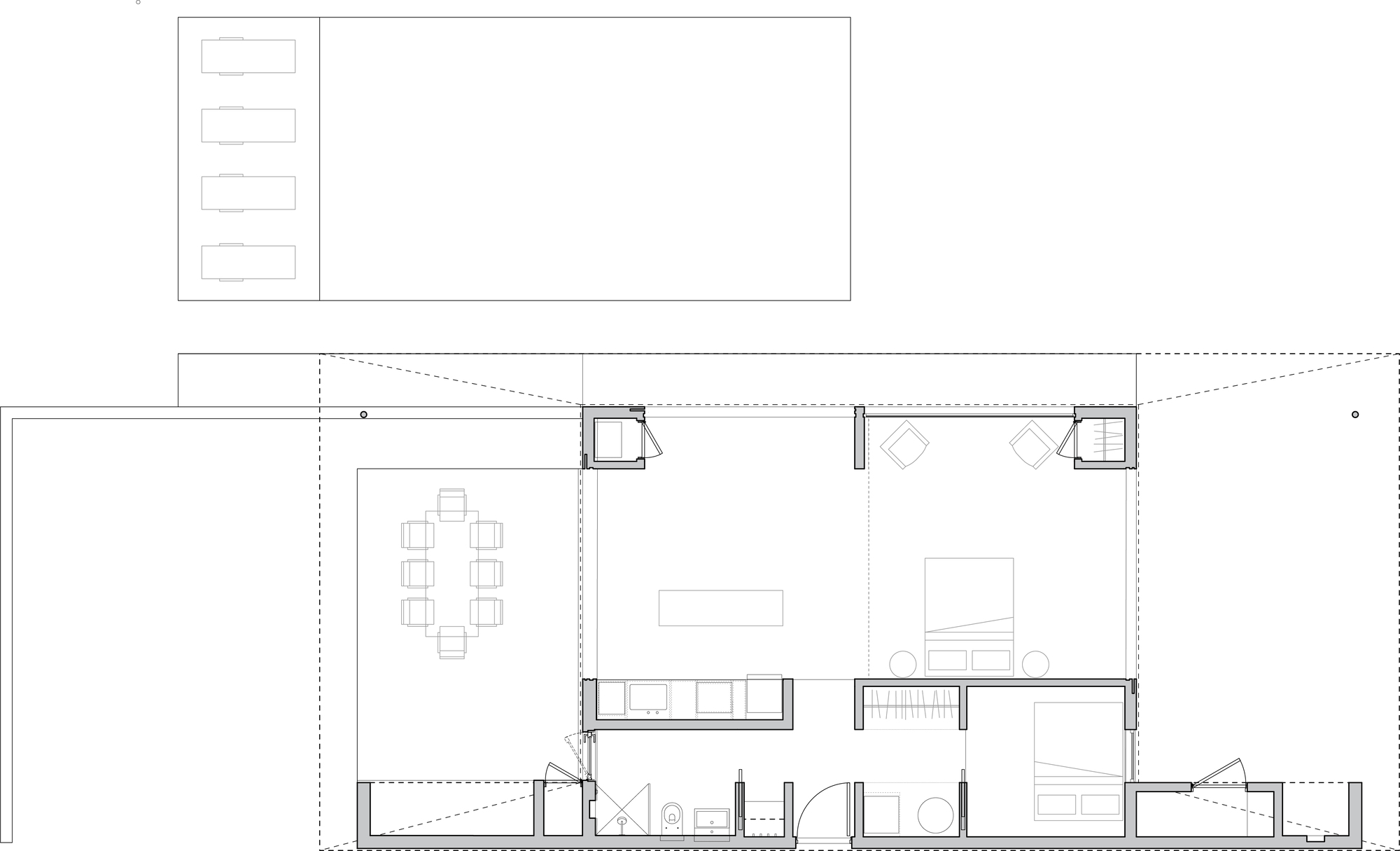
Within the diagram of a dense storage 'spine' anchoring an open living area towards the valley, we studied many possibilities for the size and function of the home. In the end, to meet budget goals, we reduced our permitted scheme by one-third, simply removing a bay from the expandable diagram. The final version of the 816 SF plan maintained the essence of the diagram, but in a much down way.
The 'guest house' will, in fact, be a main house for the foreseeable future. Although the site is 40 acres, the clients see the long game in slowly developing the property. For now, this tiny structure serves all their weekend needs with their twin children. Despite, or perhaps because of, the project's small scale and basic functions, every detail counts. Here, the uncanny feeling of lightness in the dark massive roof is the critical leitmotif for the project. We treated the structure as a sculptural object reminiscent of the volcanic rocks strewn across the valley landscape.
The project proposes a lasting, non-invasive relationship of the house to this increasingly fire-threatened landscape –an architecture that treads lightly but with resilience on this fragile land. Beyond the code required measures of sustainability, this project embraces these goals at an even more fundamental level. Most critically, this is a fully functional home for a small family with an 816 SF footprint on a 40-acre site; certainly, a prime measure of sustainable building is building as little as possible. One of the clients works in this field and consistently monitors the design and construction relative to these goals. Each material was selected for its low environmental impact —whether bathroom tile and species of wood or building systems, including solar power and an off-grid well and septic system.
Project gallery
客服
消息
收藏
下载
最近























