查看完整案例

收藏

下载

翻译
Architects:sandro durrer
Area:1100m²
Year:2023
Photographs:Samuel Holzner
Technical Team:Hartmann Architekten
Design Team:Sandro Durrer
Country:Liechtenstein
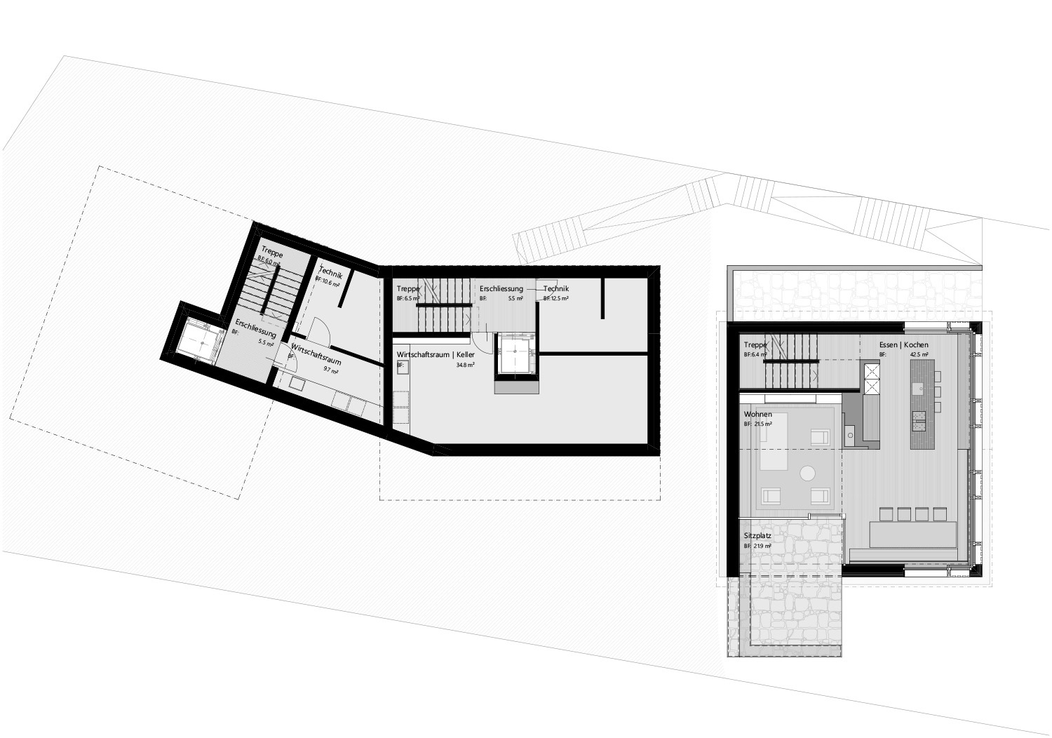
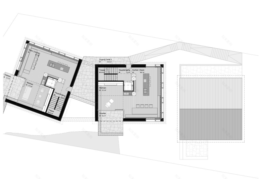
Text description provided by the architects. Three houses nestle snugly against the steep slope in Malbun. On the outside, they are based on traditional Maiensässe – houses and barns on the alp once used during the summer months. Inside, their restrained exterior gives way to the ambience of contemporary interior design.
Natural materials of the highest quality create a cosy and intimate setting. These have been meticulously selected, crafted by hand and joined with precise workmanship. Light skims gently over the pale oak flooring, and travels over the green slate kitchen and across the oak panelling of the wall.
A wide strip of windows allows an unexpected abundance of sunlight to stream into the interior. This is thanks to the glazing being set in part behind a wooden slat façade, a filter that produces a subtle interplay of light and shadow. According to the time of year, the effect varies in spring, summer, autumn and winter.
All three houses harmonise with each other in terms of their architecture and interior – yet also stand alone. They have been thoughtfully designed and handcrafted to allow the material, the light and the landscape to take centre stage – a home where you can live, enjoy life and grow in a calm, balanced environment.
Project gallery
客服
消息
收藏
下载
最近


























