查看完整案例

收藏

下载
遮阳棚
The Canopies
围绕整个建筑的遮阳棚为建筑赋予了独特的新面貌,极大地影响了其整体表现。然而,其功能并不立刻显现:遮阳棚顶部装有光伏元件,能够发电,并且它们的投影长度达到 1.8 米,既能为建筑提供电力,又能有效屏蔽室内空间的直射阳光。因此,遮阳棚在建筑的能源表现中发挥了重要作用。
The canopies, extending around the entire building, give the house a distinctive new look, strongly influencing its overall expression. However, their function isn’t immediately apparent to the viewer: while the top side of the trapezoidal canopies, which project 1.8 meters, is equipped with photovoltaic elements generating electricity, the structure simultaneously shields interior spaces from direct sunlight. Thus, the canopies play an essential role in the building’s energy performance.
▼场地鸟瞰,aerial view of the site© Mark Hadden
▼项目鸟瞰,aerial view of the project© Mark Hadden
平均而言,光伏系统产生的电力大约能满足建筑能耗的 50%。遮阳棚设计的另一个优势是其 25 度的倾斜角度,能够提高光伏系统的效率,通过捕捉更多阳光,提升面板的表面积,比沿栏杆水平垂直安装增加了约 20%。由于遮阳棚结构已有效减少了室内的眩光和太阳热量,外部遮阳设备变得多余。室内的防眩光保护已足以防止立面上居住者受到光污染的影响。
▼分析图,analysis diagram© C.F. Møller Architects
On average, the electricity generated by the PV system covers approximately half of the building’s energy requirements. An additional benefit of the canopy design is that the 25-degree angle enhances the PV system’s efficiency, capturing more sunlight on the panels and allowing for roughly a 20% increase in surface area compared to a vertical installation along the parapet level. External shading is unnecessary since the canopy structure significantly reduces glare and solar heat gain inside. Internal glare protection is sufficient to shield occupants along the facade from glare.
▼露台鸟瞰,aerial view of the terrace© Mark Hadden
▼层层遮阳篷,layers of canopy© Mark Hadden
▼露台花园,terrace garden© Mark Hadden
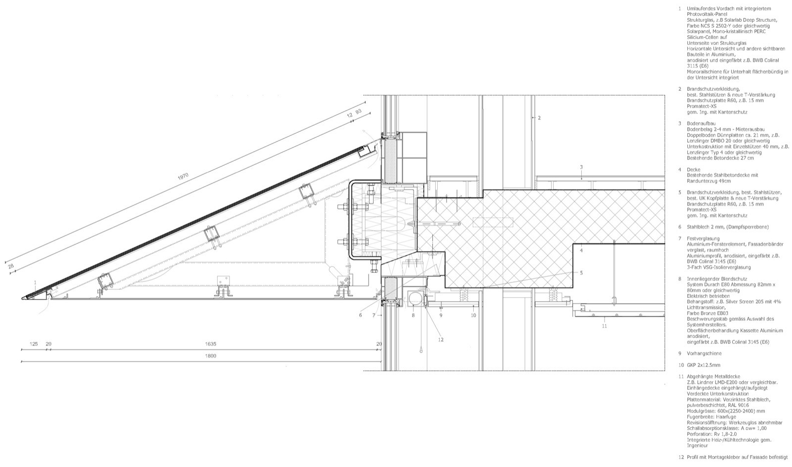
立面设计与内部技术解决方案相得益彰:固定玻璃内侧的暖空气通过玻璃与防眩光层之间的空间排出,而无需移动保护层。遮阳棚的底面采用铝板覆盖,紧密衔接室内天花板装饰,视觉上延伸了室内空间。光伏面板和遮阳棚的底面与建筑外立面的其他部分共同采用香槟色调,营造出随着天气和光线变化而富有活力的效果。香槟色源自周围色调,巧妙地重新诠释了 1970 年代的美学。
The facade is designed to integrate with internal technical solutions: warm air on the inside of the fixed glazing is drawn off between the glass and the glare protection without moving the protective layer. The underside of the canopies is clad in aluminium sheeting, aligned with the interior ceiling trim, visually extending the indoor space outward. The PV panels and the canopy undersides are colour-coordinated with the rest of the facade in champagne tones, creating a lively effect that changes with the weather and lighting. The champagne hue draws from the surrounding colour palette, reinterpreting the aesthetics of the 1970s.
▼建筑与自然,architecture and nature© Mark Hadden
▼由道路看建筑,viewing the project from the road© Mark Hadden
光伏系统
THE PHOTOVOLTAIC SYSTEM
几何形状与尺寸|Geometry and Size
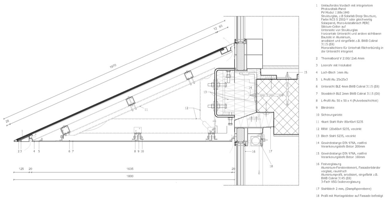
遮阳棚上的光伏模块为标准尺寸,与立面网格对齐,每 2.4 米的网格放置两个模块。每个模块的尺寸为 1840×1188 毫米,遮阳棚的内外角落也安装了光伏模块。所有朝向不同方向(包括北面)的立面光伏模块均为活动模块。立面安装总面积为 3690 平方米,共有 1723 个模块。光伏模块通过背架与钢制子结构固定,背架机械地安装在梯形遮阳棚的钢结构上。每个标准模块的重量约为 50 公斤。
The PV modules on the canopies are standard modules aligned with the facade grid, with two modules placed per 2.4m grid. Each module measures 1840x1188mm. Both the inner and outer canopy corners are also fitted with PV modules. All PV modules across all floors, facing all directions—including north—are active. The facade installation encompasses a PV area of 3,690m², with a total of 1,723 modules. The PV modules are bonded with rails, known as backrails, which are mechanically mounted onto the steel substructure of the trapezoidal canopy. Each standard module weighs approximately 50kg.
▼外观,exterior view© Mark Hadden
▼街景,street views© Mark Hadden
▼外观,exterior views© Mark Hadden
▼立面,facade© Mark Hadden
玻璃与颜色|Glass and Colour
光伏立面系统采用了 Megasol 的“Fine Art”BIPV 模块,使用丝网印刷上色的玻璃-玻璃光伏模块。顶部玻璃层为 5 毫米的“Glacier”结构玻璃,底层为 4 毫米的“Fjord C”结构玻璃。颜色的应用使得银色电池母线在近距离观察时仍能隐约可见。颜色为项目定制,且每个模块上均进行了全表面丝网印刷。
The PV facade system features Megasol’s “Fine Art” BIPV module, a glass-on-glass PV, coloured via screen printing. The top glass layer is 5mm “Glacier” structured glass, while the lower layer is 4mm “Fjord C” structured glass. The colour application allows the silver cell busbars to remain faintly visible when viewed up close. The colour is custom-mixed for the project, with a full-surface screen print applied to each module.
▼近景,closer view© Mark Hadden
▼外部空间,outdoor space© Mark Hadden
▼香槟色调,Champagne tone © Mark Hadden
▼外观细部,exterior details© Mark Hadden
▼大面积的玻璃,large area of glazing© Mark Hadden
▼细部,details© Mark Hadden
▼露台,terrace© Mark Hadden
▼露台与花园,terrace and garden© Mark Hadden
▼露台甲板,terrace deck© Mark Hadden
电力生成|Electricity Generation
Bellerivestrasse 36 号建筑的光伏系统已于 2024 年春季投入使用,目前已获取初步的测量日志,尽管最终的发电数据仍在等待中,因为部分模块尚未安装。预计每个模块的发电量为 76-304 瓦峰值(Wp),仅立面系统的总发电量约为 436 千瓦峰值(kWp)。平屋顶系统的发电量约为 42 千瓦峰值,总输出约为 478 千瓦峰值,通常能够满足建筑能耗的约一半。多余的电力将供应给邻近的 B30 建筑。同时,还为未来可能的电池存储预留了空间。
The Bellerivestrasse 36 system went live in spring 2024, with initial measurement logs now available, though final power generation data is still pending as some modules are yet to be installed. The expected production is 76-304 Wp per module, totalling around 436 kWp from the facade system alone. The flat roof installation will generate about 42kWp, with an estimated total output of 478kWp, which generally covers around half of the building’s energy demand. Any surplus electricity is supplied to the neighbouring building, B30. Provisions have also been made for potential future battery storage.
▼接待空间,reception© Mark Hadden
▼底层空间,ground floor space© Mark Hadden
▼楼梯,staircase© Mark Hadden
▼螺旋楼梯,spiral-staircase© Mark Hadden
▼楼梯细部,details of the staircase© Mark Hadden
维护与清洁|Maintenance and Cleaning
使用空中作业平台进行立面和遮阳棚的清洁。每个光伏模块设计可以承受 1 千牛(kN)的点载荷,模块通过两条 30 厘米宽的支架支撑在背架上,并由子结构从下方支撑。靠近模块边缘的外部区域不应承受过重负载(以避免翘曲风险)。由于玻璃表面有纹理,预计与标准平面玻璃模块相比,清洁频率会更高,因为脏物容易在沟槽内积聚。
Skyworker units are used for cleaning the facade and canopies. Each PV module is designed to withstand a point load of 1kN per module, supported on two 30cm-wide strips above the backrails and held from below by the substructure. The outer areas near module edges should not be loaded (to avoid buckling risk). Due to the textured glass, a slightly higher cleaning frequency than standard flat glass modules is expected, as dirt may accumulate in the grooves.
▼餐厅咖啡厅,cafe© Mark Hadden
▼办公空间,working space© Mark Hadden
▼改造前后,before and after renovation© C.F. Møller Architects
▼模型,model© C.F. Møller Architects
▼总平面图,master plan© C.F. Møller Architects
▼底层平面图,ground floor plan© C.F. Møller Architects
▼立面图,elevations© C.F. Møller Architects
▼立面图,elevations© C.F. Møller Architects
▼剖面图,section© C.F. Møller Architects
▼剖面图,section© C.F. Møller Architects
▼细部详图,construction details© C.F. Møller Architects
Bellerivestrasse 36 Zürich
Client: Allreal Generalunternehmung AG
Size: 27.000 m²
Address: Zürich, Switzerland
Year: 2019-2024
Architect: C.F. Møller Architects
Landscape: Uniola AG
Engineer:
- Haustechnikplanung: PZM AG
- Elektroplanung: IBG Engineering AG
- Fassadenplanung: Emmer Pfenninger Partner AG
- Statik: Gruner Wepf AG
Contractor: Allreal
Collaborators: Burckhardt Architektur AG
Sustainability: LEED Platinium (Core and Shell)
客服
消息
收藏
下载
最近











































































