查看完整案例

收藏

下载

翻译
Architects:Remson|Haley|Herpin Architects
Area:775m²
Year:2022
Photographs:İbrahim Özbunar
Lead Architects:Salih Kucuktuna, Fikret Sungay, Mert Sezer, Çaglar Biber, Ekin Arslan Bahçeci, Batuhan Demirkaya
Lead Team:PIN Architects
Design Team:PIN Architects
General Constructing:Beysel Insaat
Engineering & Consulting > Structural:Umit Ozkan
Interior Design:PIN Architects
Country:Turkey
Text description provided by the architects. Can House, located in a residential area surrounded by forested land in Mudanya, Bursa, is built on the site of an old family home. Throughout its construction, great care was taken to preserve and integrate the surrounding trees and plants into the architectural project, which became the landscape of the house. The residents describe Can House as a place where nature's harmony, shaped by the land's topography, seamlessly merges with human presence, creating a tranquil and calming atmosphere.
PIN's multidisciplinary approach, involving engineers, contractors, landscape architects, and construction masters, enables the creation of structures with unique expressive languages. The building's combination of concrete and glass, with sculptural precision achieved by concrete and formwork masters, helps create a design that harmonizes both with the built and natural environments. This collaborative process prioritizes creating high-quality spaces that maintain a relationship with their surroundings.
The design of the house adheres to sustainability principles, ensuring minimal environmental impact. The construction process protected the existing trees, utilized double-walled walls with heat insulation and moisture barriers, and implemented energy-saving measures. Eco-certified materials were chosen, decorative elements were minimized, and lighting and infrastructure were optimized for climatic conditions. No chemicals were used in the swimming pool, harmful waste was disposed of properly, and renewable energy was incorporated into the building. These efforts emphasize the project's commitment to sustainability.
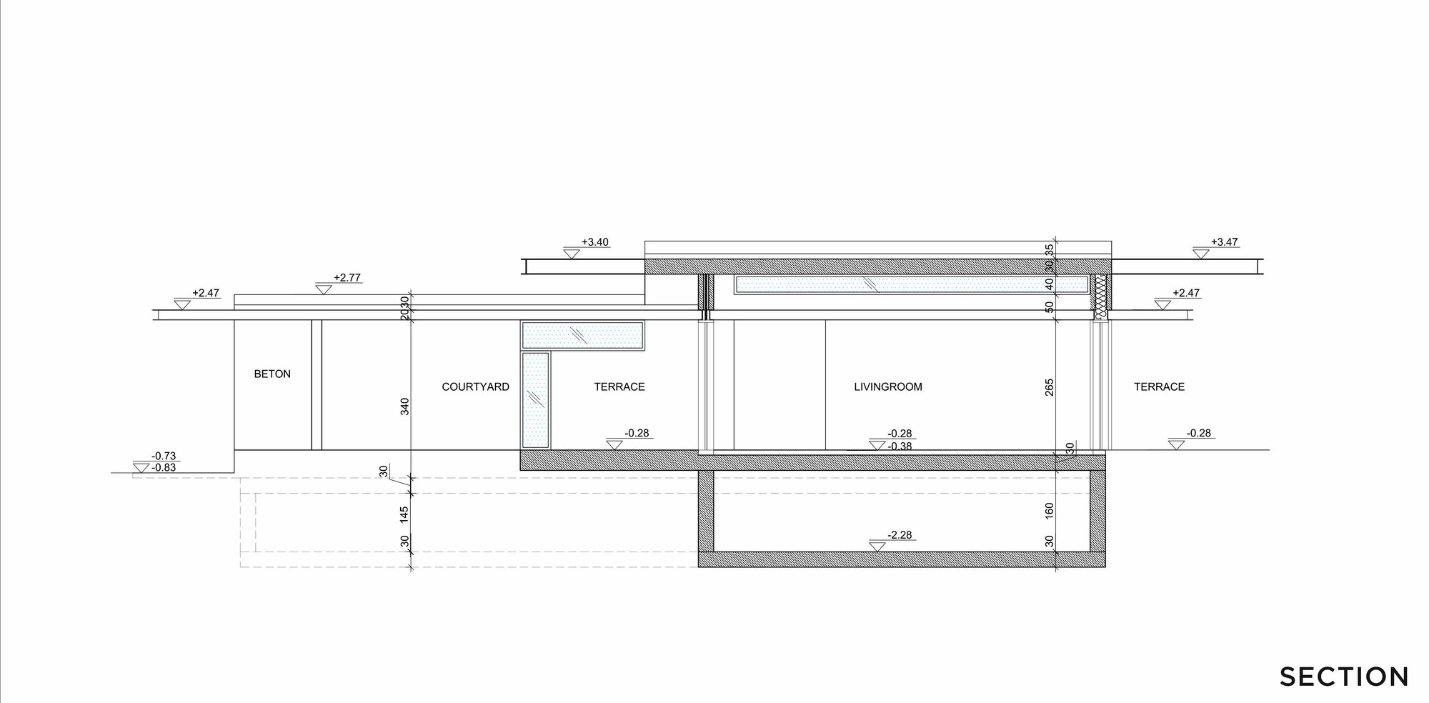
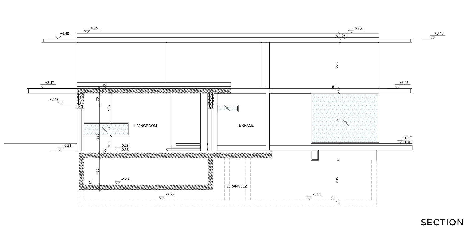
The U-shaped plan of the house is arranged on three different levels, responding to the sloping topography. The house is oriented towards the northern forest and the distant Uludağ mountain to the south. The central living area, extending in an east-west direction, features north and south facades entirely made of glass, allowing natural light to flood the space. The residents call this feature "the house through which the forest flows." The three beech trees located between the south terrace and the pool are believed to symbolize "the heart" in Turkish mythology, contributing to the metaphorical meaning of the southern courtyard and giving the house its name. The term "Kalpgah," meaning the center of life and associated with the heart and chest, is reflected in the name "Can House."
The building's design emphasizes the interplay of daylight, which moves throughout the year and creates dynamic lighting effects in the interior and exterior spaces. The building's biophilic features, including plants, the surrounding forest, and natural materials, further enhance the sensory and emotional experiences of the residents. The materials, colors, and textures of the interior were chosen to complement the residents' mid-century modern furniture, reflecting their refined tastes. Daylight is integrated as a design element, shaping the overall atmosphere and enhancing the connection between the space and its users.
In line with the philosophy of PIN's works, Can House is a cohesive whole, with all elements - from the interior layout and materials to the structural systems and infrastructure- working together harmoniously. While movable furniture can be seen as independent of the space, it still contributes to the overall aesthetic and functionality of the house. With all architectural elements and furniture designed specifically by PIN, Can House is a true "gesamtkunstwerk" - a complete work of architecture that integrates all aspects of design, creating a seamless experience for its residents.
Project gallery
客服
消息
收藏
下载
最近




























