查看完整案例

收藏

下载
业主与自己的妈妈住在一起,希望能将两代人喜欢的风格结合在一起;不需要大改动,客厅想做个大的收纳壁龛;主卧想要有个衣帽间,卫生间要干湿分离。
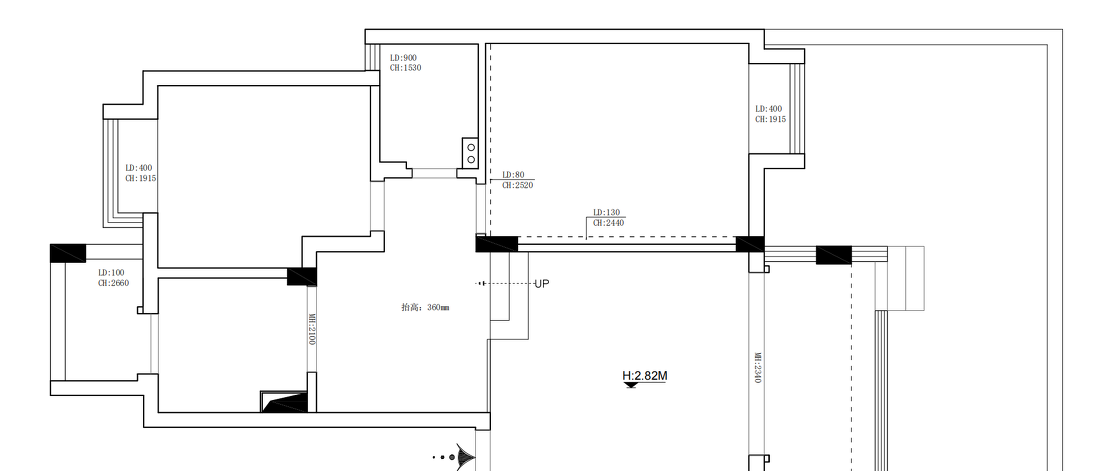
装修前:客厅与庭院有两道隔断,影响采光;没有多余的房间打造衣帽间;卫生间没有干湿分离。
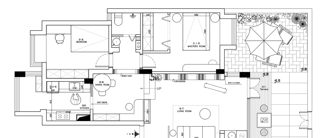
装修后:拆除客厅与家政区的玻璃推拉门隔断;在客厅打造一整面的拱形壁龛;主卧打造一个步入式衣帽间;将洗手台外置,实现干湿分离。
在客厅和入户门之间定制简约的矮鞋柜作为隔断,再搭配一张换鞋凳,满足了出入需求,也巧妙地解决原先没有玄关的困扰。
回到家仿佛被一层轻盈的奶油云朵轻轻包围,墙面以温柔的奶油色为主调,客厅搭配棕色的沙发,与浅色的墙面形成优雅的对比,看起来简约又不失层次感。
放弃传统电视背景墙和收纳柜设计,转而以一面墙为基础打造三个拥有流畅线条的拱形壁龛,既可以展示又可以收纳,为空间注入独特的艺术美感。
生活阳台拆除隔断后纳入客厅,显得空间通透感十足,一侧打造洗衣柜,纯白色的面板与墙面几乎融为一体,视觉上更加整洁有序。
错层空间的地面还是利用了不同材质来区分,层次更加分明;餐厅区域采用人字拼木地板铺设,散发出复古的怀旧感和木质的慵懒感,生活的气息更加浓郁。
奶油色调的半高矮柜,上方增加隔板,让面积本身不大的餐厅不会显得压抑,又能增添空间的呼吸感,每一处细节都透露着精致感。
通过餐厅进入走廊式的厨房,外连接着一个储物区域,当阳光洒满柔和的空间,整个人都被这温馨治愈的气息包裹着~
橱柜台面选用不锈钢材质,其冷调的质感为厨房注入一抹现代时尚的氛围,提升了整体的格调,又能成为家中的一道亮丽风景线。
主卧摒弃了传统主灯的设计,采用顶面明装轨道灯,让卧室在光影交错中更显精致与格调,也增添一份独特的个性和韵味。
利用卧室3平米的空间打造一个步入式衣帽间,百叶折叠门可以让开合空间在极限中转换,里面根据自己的使用情况布置挂衣区,从此换衣收纳有了仪式感。
延续主卧的设计风格,房间整体布局保持了简洁和通透的特点,营造了舒适而宜人的居住氛围。
采用折叠百叶门作为柜门设计,不仅让空间显得更加通透轻盈,暖白色还赋予空间一种温馨清新的感觉,颜值和收纳同时在线。
将洗漱区外置,居家的舒适度得到了大大的提升,与浴室的隔断更是采用长虹玻璃隔断,避免了空间产生压抑感,同时可以产生唯美的光影效果。
屋子格局虽然变动不大,但是楼龄比较大,许多装修设施尤其是水电管道老化,需要重新拆成毛坯状态,根据现在的居住习惯和需求翻新。
木工阶段让许多施工师傅望而怯步,但还是在经验老道的施工师傅手里1:1还原了效果,也是业主最满意的一点,直夸手艺了得!
客服
消息
收藏
下载
最近












































