查看完整案例

收藏

下载
项目名称:井冈山演艺中心提升改造项目
位置:井冈山
设计单位:东南大学建筑学院+东南大学建筑设计研究院有限公司
图片数量:36 张
项目概况
井冈⼭⼤会堂建于 1966 年,是当地的标志性建筑之—。建筑原有平面呈飞机型,坐西朝东,建筑后楼为单层的 329 座会堂。由于现有的舞台空间已不能满足需求,希望通过改造和扩建既有建筑植入新型文艺活动,活化历史建筑、提升地方吸引力、更好地面向社会弘扬井冈山革命精神。
井冈山演艺中心提升改造项目外部实景图
井冈山演艺中心提升改造项目外部实景图
模型
井冈山演艺中心提升改造项目外部实景图
室内图
设计理念
根据剧组对空间的诉求和既有建筑与场地情况,设计团队希望尊重历史风貌,展现时代风格,保留改建前部两层主楼,拆除后部一层会堂,扩建配套设施完善的现代化大型演艺空间。通过地形改造和景观化处理,将城市道路与场地、建筑有效衔接,形成布局合理、空间开放、亲民的市民空间。
井冈山演艺中心提升改造项目外部实景图
井冈山演艺中心提升改造项目外部实景图
井冈山演艺中心提升改造项目外部实景图
室内图
更新策略
策略一:地形改造
打开沿红军路的挡土墙,设置台阶向上进入老楼;在建筑内部利用基地东西向的高差设置看台;新建建筑地下室为舞台设备空间。
室内图
井冈山演艺中心提升改造项目外部实景图
井冈山演艺中心提升改造项目外部实景图
井冈山演艺中心提升改造项目外部实景图
井冈山演艺中心提升改造项目外部实景图
策略二:新老并置
为保持建筑从尺度、风格、材质协调统一,采用新老并置、相得益彰的策略。
井冈山演艺中心提升改造项目外部实景图
井冈山演艺中心提升改造项目外部实景图
室内图
井冈山演艺中心提升改造项目外部实景图
策略三:城市建筑
更新后的大会堂作为具有文化内涵的演艺中心,激发了街道活力,增添了城市亲和力,更成为了具有一定社会属性、实现城市范围内功能综合配套和品质提升的城市建筑。
模型模型
模型
实施效果
城市化提升
改造前——存在高差和围墙,基地与周边道路割裂
改造后——通过地形改造和景观处理,将城市道路与场地、建筑有效衔接
分析图
剖面图
轴测图
分析图
分析图
新功能活化
改造前——房屋状态和设备设施已落后于不适应时代需
改造后——植入新型文艺活动,活化历史建筑,弘扬井冈山革命精神
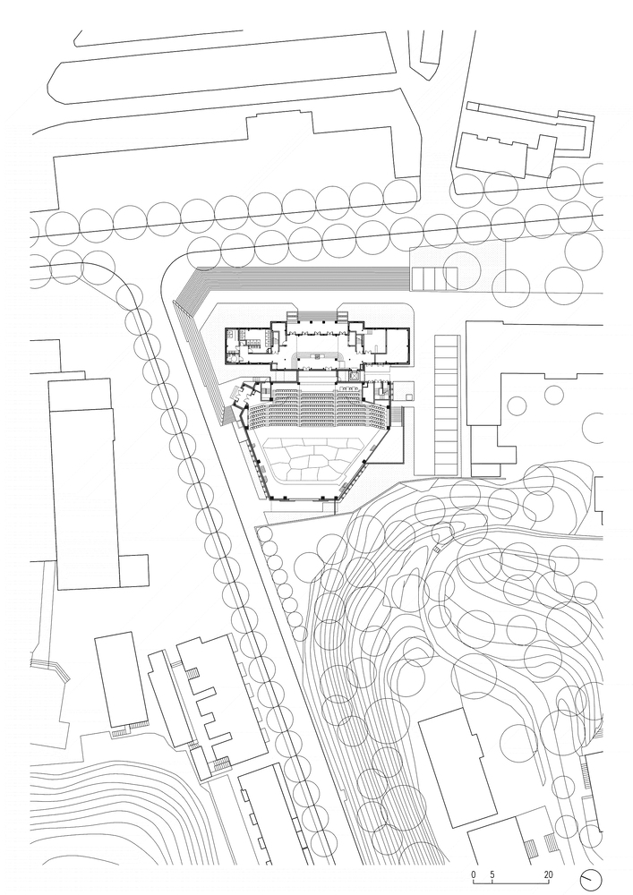
平面图
平面图
平面图
立面图
剖面图
更新意义
本设计聚焦在厚重的历史背景下发掘建筑的新时代意义,在特定的场地中处理建筑与城市及地形的关系,处理新老建筑之间的关系,建立新旧材料之间的联系,使之成为容纳综合活动的城市建筑。如今在崭新的井冈山大会堂中,观看一场沉浸式的红色情景剧,感受跨越时空的井冈山精神。
建筑师: 东南大学建筑设计研究院, 东南大学建筑学院
面积: 3531 m²
项目年份: 2024
摄影师: 张旭, 薛亮
主创设计师: 韩冬青、张旭
建筑设计: 俞海洋、董亦楠、胡蝶、沈旸、张涛、郑言
设计研究: 杨一鸣、宋颖、石晓夏、徐桦、梁思滢
客服
消息
收藏
下载
最近

































