查看完整案例

收藏

下载
佛山九江镇西江河岸的废弃渡口,曾是连接江中岛屿的重要码头。随着新码头的启用,这座承载水运记忆的建筑逐渐荒废,仅余混凝土框架与通向栈桥的台阶。场地位于湿地公园与住宅区交界处,兼具生态敏感性与社区服务潜力。设计团队面临的挑战在于:如何在不到 150 平方米的原始投影范围内,将废墟转化为集书店、展览、轻餐饮、文化活动与艺术展演于一体的复合型公共空间,同时回应珠江三角洲的气候特征与在地工业文化脉络。
The abandoned ferry terminal along the Xijiang River in Jiujiang Town, Foshan, once served as a vital dock connecting the riverine islands. With the commissioning of a new terminal, this structure—imbued with memories of waterway transportation—gradually fell into disuse, leaving only a concrete skeleton and steps leading to a decaying pier. Situated at the intersection of a wetland park and a residential area, the site combines ecological sensitivity with community service potential. The design team faced the challenge of transforming this ruin into a multifunctional public space—integrating a bookstore, exhibition hall, café, cultural events, and art performances—within a footprint of less than 150 square meters, while responding to the climatic characteristics of the Pearl River Delta and the region’s industrial cultural context.
▼鸟瞰,aerial view©猫瞳工作室
水榭是中国传统园林建筑中临水而建的开放式建筑,其四面开敞的设计在社交公共属性与气候适应性方面具有独特作用。设计以水榭为原型,摒弃封闭墙体,除设备用房和卫生间外,建筑四个立面均采用全通透落地玻璃门窗。行人可透过玻璃感知内部展览动态,模糊观者与参与者的界限。
The *shuixie* (waterside pavilion), a traditional Chinese garden structure built over water, features an open design with unobstructed views on all sides, offering both social inclusivity and climate adaptability.
Drawing inspiration from this prototype, the design eschews enclosed walls.
Except for equipment rooms and restrooms, all four facades employ fully transparent floor-to-ceiling glass doors and windows.
Passersby can glimpse internal exhibitions through the glass, blurring the boundaries between observers and participants.
▼外观概览,exterior overview©猫瞳工作室
▼立面的开与闭,opened and closed facade©猫瞳工作室
▼檐下灰空间,covered space©猫瞳工作室
立面外设以电动液压杆驱动的可调遮阳板系统成为气候响应的关键:开启时可翻起 90 度的挑檐设计不仅遮挡夏季强光,减少直射热量,还通过檐下灰空间容纳多样化的社区活动;闭合后则隔绝室外影响,空间转化为内向型文化容器,适配讲座、会议等场景。这种可变性使建筑突破物理局限,成为社区事件的动态载体。
▼立面开闭示意,diagram of the adjustable sunshade system©玳山建筑设计
A key climate-responsive element is the externally mounted adjustable sunshade system driven by electro-hydraulic actuators. When open, the 90-degree upturned eaves block intense summer sunlight and reduce heat gain, while the semi-outdoor transitional space beneath accommodates diverse community activities. When closed, the system isolates the interior from external conditions, transforming the space into an inward-focused cultural vessel suited for lectures or meetings. This adaptability allows the architecture to transcend physical constraints, becoming a dynamic platform for community engagement.
▼楼梯间与卫生间,stairwell and toilet ©猫瞳工作室
▼面江立面,riverside facade©猫瞳工作室
▼立面装置细部,sunshade system details©猫瞳工作室
▼首层室内,ground floor interior©猫瞳工作室
▼复一层室内,basement floor interior©猫瞳工作室
原建筑残留的栈桥台阶被改造为阶梯式长椅,重构既是可供游客远眺江面落日的观景台,也可转化为承载社区表演活动的街头剧场。无门禁的全天候开放策略,允许市民自由穿行至江岸,以低干预手法保留渡口记忆。原有结构框架被重新诠释为空间骨架,与新增的白色铝合金波浪板屋顶形成新旧对话——后者源自大湾区常见的工业彩钢板形式,却以纯白涂装跳脱日常,既延续地域当代建造脉络,又塑造文化地标的辨识度。
The original pier steps were reconfigured into tiered seating, serving both as a viewing platform for sunset vistas and an impromptu street theater for local performances. A barrier-free, 24/7 access strategy invites citizens to freely traverse the space toward the riverbank, preserving the ferry’s memory through a low-intervention approach. The retained structural framework dialogues with the new white aluminum alloy corrugated roof—a reinterpretation of the industrial color-steel panels ubiquitous in the Greater Bay Area. Stripped of their utilitarian hues and rendered in pure white, these elements simultaneously continue regional contemporary construction traditions and establish the complex’s identity as a cultural landmark.
▼远眺江面落日的观景台,a viewing platform for sunset vistas©猫瞳工作室
▼阶梯式长椅,tiered seating©猫瞳工作室
▼观景天台,rooftop terrace ©猫瞳工作室
▼夜景,night view©猫瞳工作室
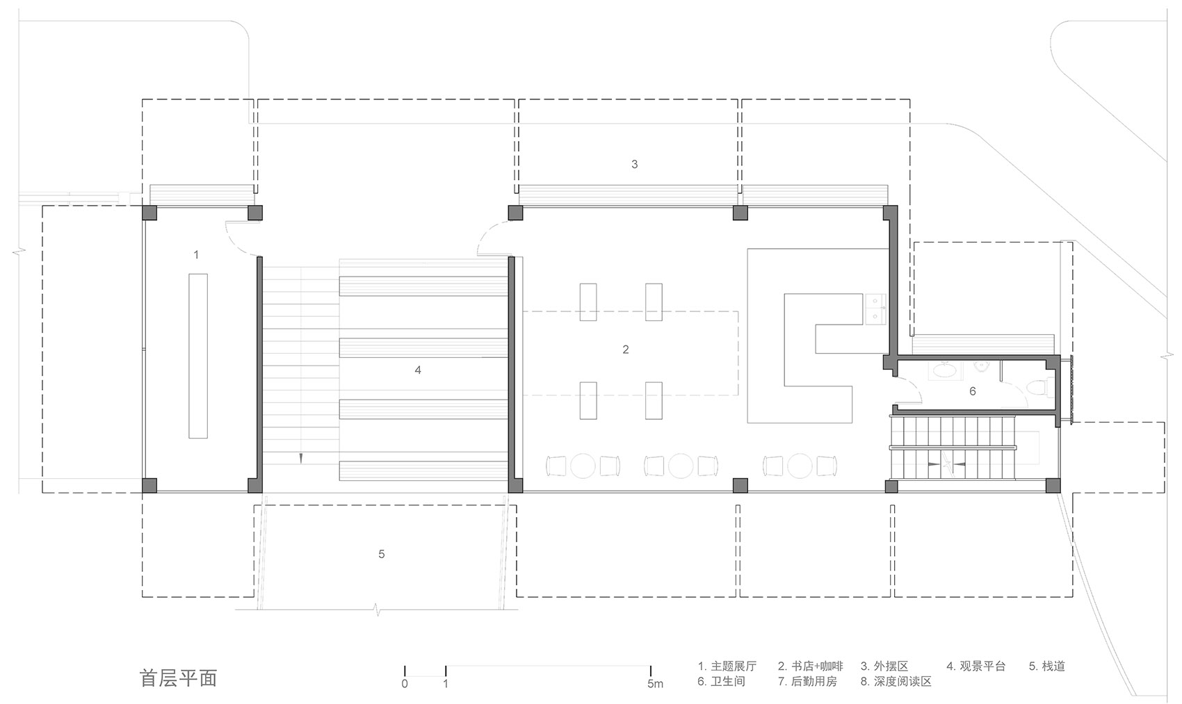
▼一层平面图,ground floor plan© 玳山建筑设计
▼负一层平面图,basement floor plan© 玳山建筑设计
▼南立面图,sections © 玳山建筑设计
▼北立面图,sections © 玳山建筑设计
▼东立面图,sections © 玳山建筑设计
▼剖面图,sections © 玳山建筑设计
项目名称:九江渡口文化空间改造
设计方:玳山建筑设计
项目完成时间:2025.01
主创:郭振江
方案设计:黎美君、陈培昆、冯思怡、陈菁华、陈加炫
项目地址:佛山市南海区九江镇
建筑面积:216 平方米
摄影版权:猫瞳工作室、玳山建筑设计
业主:佛山市南海区邦文旅游开发有限公司
项目策划:佛山千文启文化创意有限公司
灯光设计:广州重构视觉设计有限公司
材料/品牌:铝合金波浪板-乾阳铝业、电动液压杆-羽凰液压、水磨石地砖-东鹏瓷砖
Project Name: Jiujiang Ferry Cultural Complex Renovation
Designer: TurtleHill Design
Design & Completion Year: 2025.01
Lead Designer: Jason Guo
Design Team: Meijun Li, Peikun Chen, Siyi Feng, Jinghua Chen, Jiaxuan Chen
Project Location: Jiujiang, Foshan City, China
Gross Building Area: 216 Square Meters
Photo Credits: CAT-OPTOGRAM Studio, TurtleHill Design
Clients: Foshan Nanhai Bangwen Tourism Development Co., Ltd.
Project Strategy: Foshan Qian Wenqi Cultural Creativity Co., Ltd.
Lighting Design: Visual Interaction of AURA
Brands / Products used in the Project Aluminum Panel:Qianyang Aluminum, Hydraulic Cylinder:YH Electric Putter, Terrazzo Tiles:Dongpeng Ceramic
客服
消息
收藏
下载
最近






























