查看完整案例

收藏

下载

翻译
Architects:Adriano Pupilli Architects
Area:1137m²
Year:2024
Photographs:Simon Whitbread
Lead Architects:Adriano Pupilli
Lead Team:Adriano Pupilli
Design Team:Matt Ryall, Aoiffe O'Kelly
Technical Team:Alex Volfman
Engineering & Consulting > Structural:Partridge
Engineering & Consulting > Services:Erbas
Landscape Architecture:McGregor Coxall
Country:Australia
Text description provided by the architects. Located in the Lake Macquarie LGA 20 minutes south of Newcastle in Australia, the Windale Hub is a new facility providing much-needed community infrastructure in an underserved region. The result of an initial design competition and six years of development, our design draws inspiration from the cultural richness of Windale and biodiversity of the surrounding area, while breathing new life into the commercial center and providing locals with an inspiring place to come together.
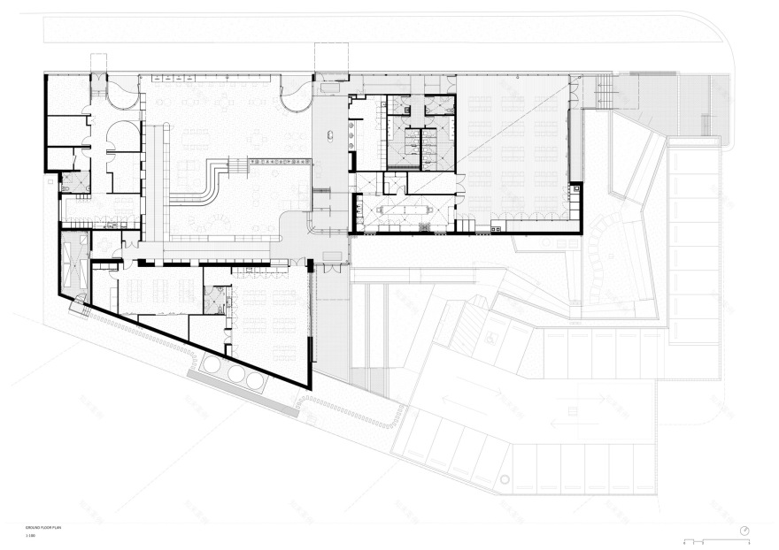
Part civic building, part community living room, the building is split into four main areas linked by an internal 'street'; a Community Hall, Public Library, Community Offices and Meeting Rooms, and a Youth Maker Space. This required a large floor plate on a sloping site. We utilize a sloping walkway to link the levels as well as for the library collection. Vaulted ceilings and internal courtyards draw in natural light and ventilation.
Externally the building undulates along Lake St, reaching its highest point towards the adjacent shopping strip. The rhythm of the facade, roof forms, and awnings respond to the surrounding residential and commercial context and signal points of entry and the different functions within.
A folded screen made of perforated metal serves to shade the facade and enliven the streetscape, the vivid colors of local wildflowers revealing themselves as you move around the building, creating a sense of surprise and delight for everyday passers-by. The double gable forms are a nod to the post-war community hall that previously occupied the site.
Designed to cater to a wide range of users, the internal program includes co-working spaces, a recording studio, a maker space, and a kiosk. Outdoors, a tiered grass area provides an impromptu performance space, and native planting creates shade and informal places for people to mill.
The overarching intent behind the project is more than a built outcome. It's about creating a welcoming space that celebrates the cultural diversity and richness of Windale, where the community can gather, play, learn, and be proud.
Project gallery
客服
消息
收藏
下载
最近
























