查看完整案例

收藏

下载
久在樊笼里,复得返自然。
——陶渊明
▼门店入口,entrance © 山野设计工作室
▼巨大的蓝果子,a huge blue fruit © 山野设计工作室
蓝果子的店铺位于二层面对街的露台,整个空间能更多的纳入自然光,所以我们将二分之一的墙面做落地窗,这样无论何时都能享受到不同模样的街景。
LANGUOZI is located on the second floor of the terrace, facing the street. The entire space is designed to maximise natural light, with floor-to-ceiling windows in one half of the wall, offering views of the street.
▼餐厅概览,overview © 山野设计工作室
▼落地窗,floor-to-ceiling windows © 山野设计工作室
▼充足的光线,ample light © 山野设计工作室
▼细部,details © 山野设计工作室
空间在保留自然元素的同时也希望多一些舒适与松弛感。错落有致的吊顶设计打破常规的单调,为空间注入灵动的韵律,粗犷又有温度的手工墙面,用最原始的肌理诉说自然的故事。把光影作为画笔,晨雾的柔光透过布艺洒落,让散落其中的绿植引导动线。门口掉落下一颗巨大的蓝果子,展现出充盈着贵州特色的景象,高低错落的地面与砖墙,赋予空间丰富的层次感,悬浮式的吊顶与地面的变化相配合,在室内营造出丘陵的景象。野性自然与当代美学悄然和解。
The space has been crafted to blend natural elements with enhanced comfort and relaxation. The staggered ceiling design disrupts the conventional monotony, introducing a dynamic rhythm to the space, while the rough and warm handmade wall surface captures the essence of nature with its unique texture.By utilising light and shadow as artistic mediums, the soft light of the morning mist filters through the fabric, guiding the viewer’s gaze through the space and highlighting the scattered greenery. The doorway falls down a huge blue fruit, showing the scene filled with the characteristics of your state, high and low staggered ground and brick wall, giving the space a rich sense of hierarchy, suspended ceiling and ground changes to match, creating a hilly scene in the interior .Wild nature is quietly reconciled with contemporary aesthetics.
▼舒适与松弛感,comfort and relaxation © 山野设计工作室
▼错落有致的吊顶设计,staggered ceiling design © 山野设计工作室
▼手工墙面,handmade wall © 山野设计工作室
▼走道,path © 山野设计工作室
▼砖墙质感,brick wall texture © 山野设计工作室
围炉而坐时,沸腾的酸汤是纽带,而空间,早已将你带往那片云雾缭绕的秘境。
Wild nature is quietly reconciled with contemporary aesthetics. When sitting around the stove, the boiling sour soup is the bond, and the space, has long taken you to the secret cloudy land.
▼平面图,plan © 山野设计工作室
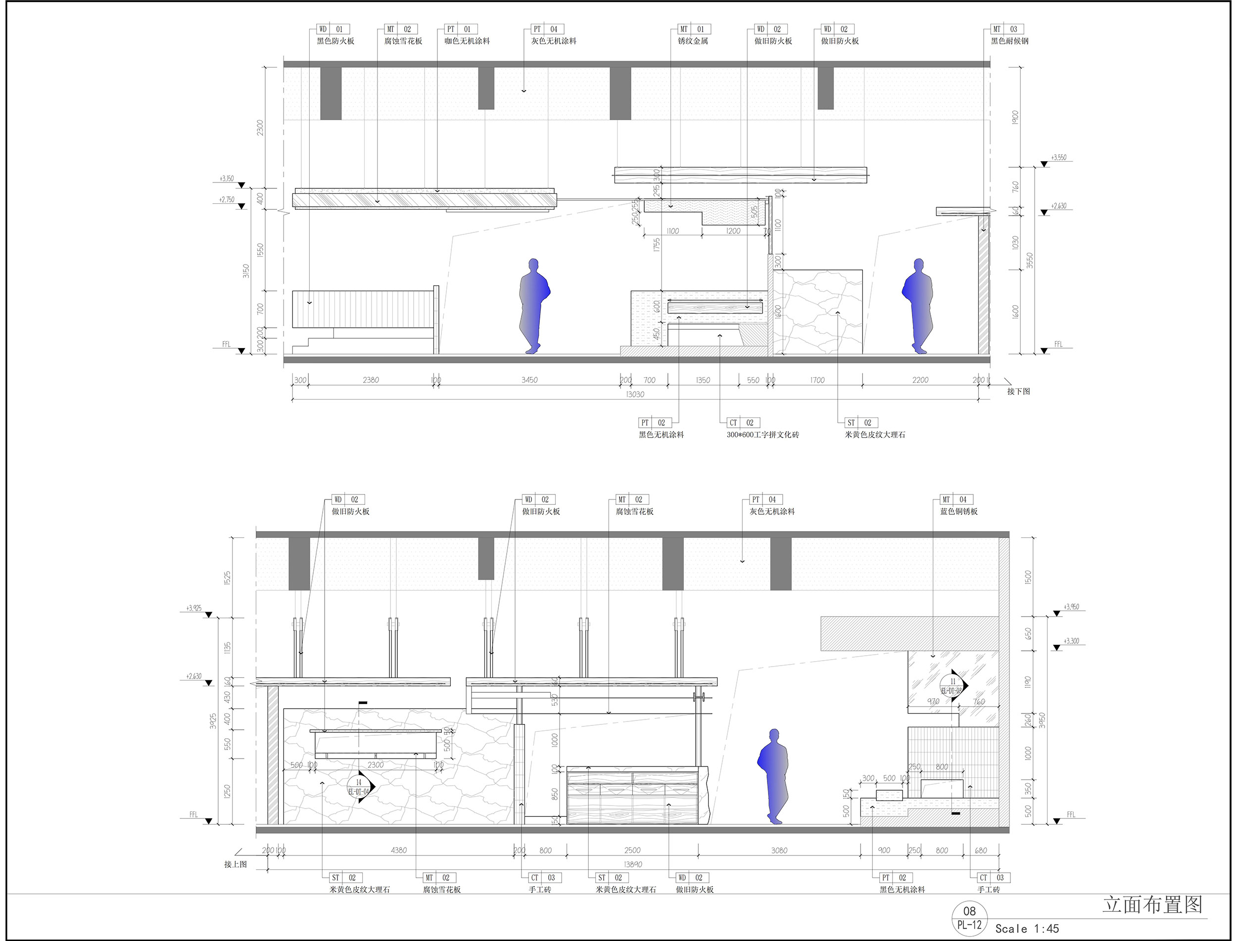
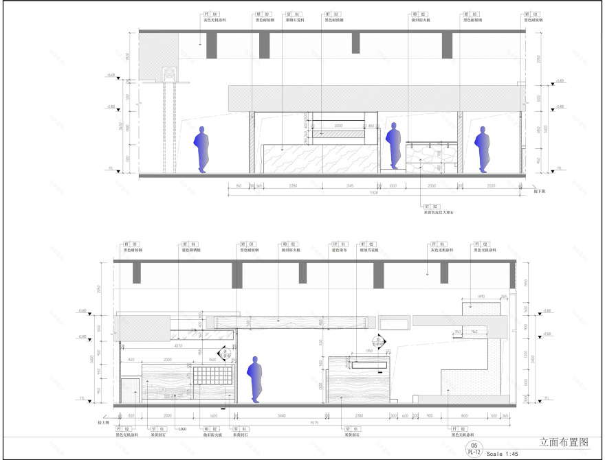
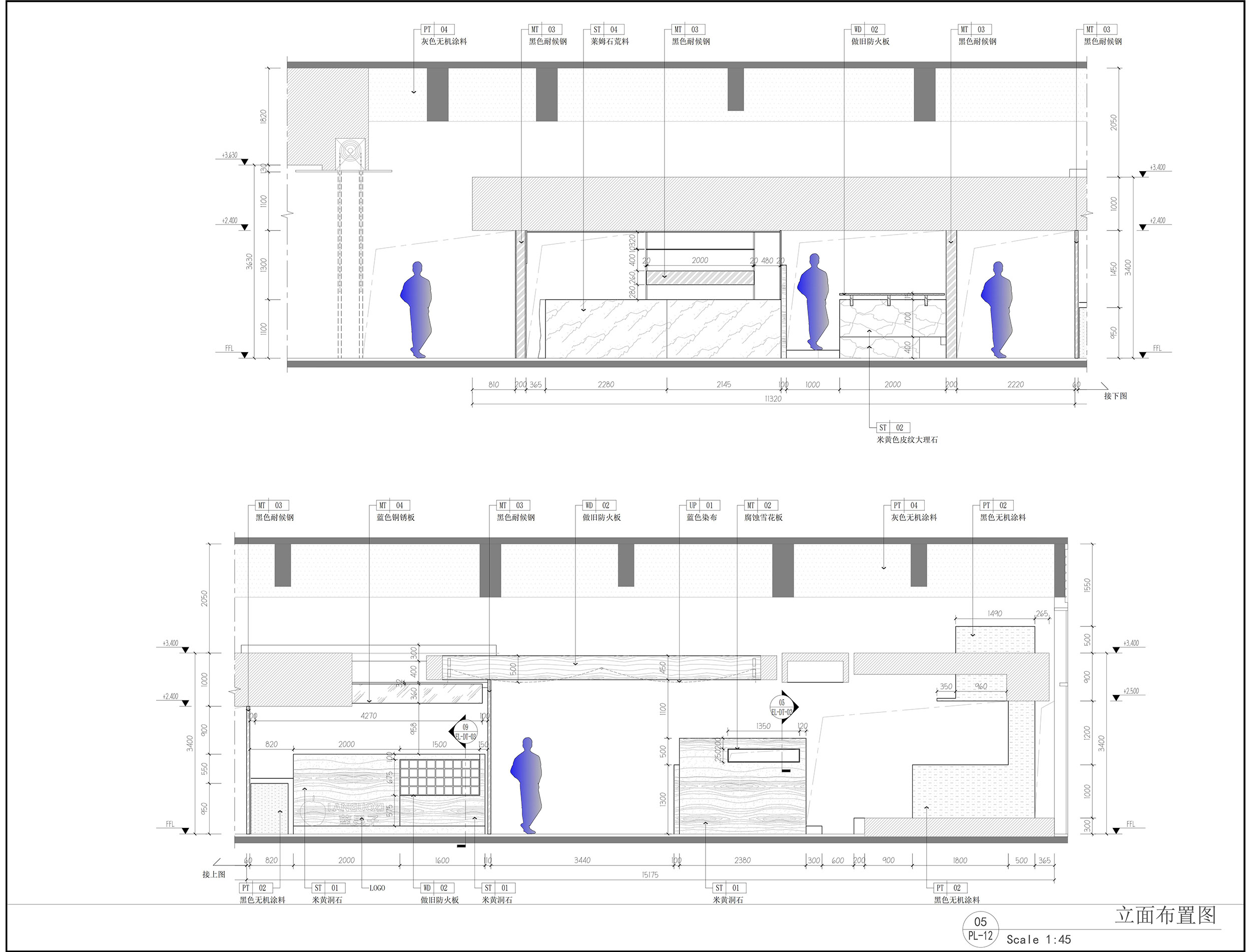
▼立面图,elevations © 山野设计工作室
项目名称:蓝果子LANGUOZI火锅
项目类型:商业空间
设计方:山野设计工作室
项目设计:山野设计工作室
完成年份:2024.6
设计团队:山野设计工作室
项目地址:武汉万象城
建筑面积:401㎡
摄影版权:山野设计工作室
合作方:万川建设
材料:手工砖,做旧金属,荒料石材,防火板,深度炭化木
客服
消息
收藏
下载
最近































