查看完整案例

收藏

下载
▼门店入口
▼巨大的蓝果子
蓝果子的店铺位于二层面对街的露台,整个空间能更多的纳入自然光,所以我们将二分之一的墙面做落地窗,这样无论何时都能享受到不同模样的街景。
▼餐厅概览
▼落地窗
▼充足的光线
▼细部
空间在保留自然元素的同时也希望多一些舒适与松弛感。错落有致的吊顶设计打破常规的单调,为空间注入灵动的韵律,粗犷又有温度的手工墙面,用最原始的肌理诉说自然的故事。把光影作为画笔,晨雾的柔光透过布艺洒落,让散落其中的绿植引导动线。门口掉落下一颗巨大的蓝果子,展现出充盈着贵州特色的景象,高低错落的地面与砖墙,赋予空间丰富的层次感,悬浮式的吊顶与地面的变化相配合,在室内营造出丘陵的景象。野性自然与当代美学悄然和解。
▼舒适与松弛感
▼错落有致的吊顶设计
▼手工墙面
▼走道
▼砖墙质感
围炉而坐时,沸腾的酸汤是纽带,而空间,早已将你带往那片云雾缭绕的秘境。
▼平面图
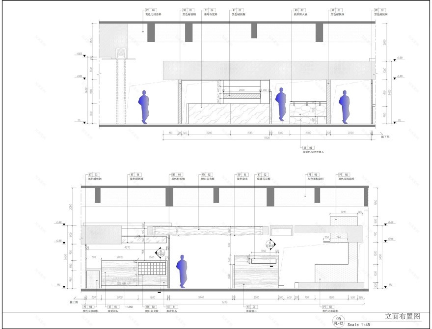
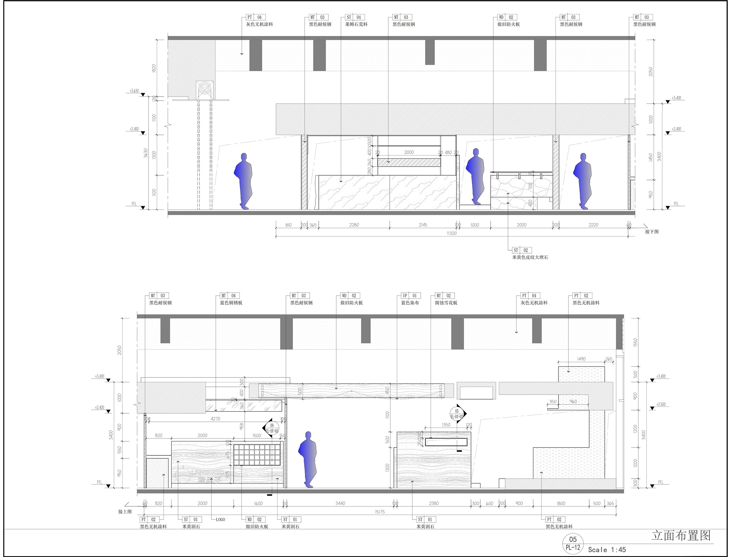
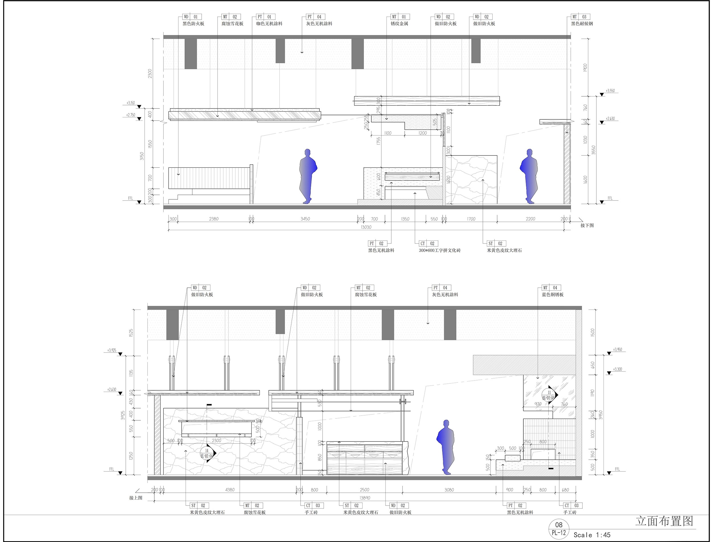
▼立面图
项目名称:蓝果子LANGUOZI火锅
项目类型:商业空间
设计方:山野设计工作室
公司网站:
项目设计:山野设计工作室
完成年份:2024.6
设计团队:山野设计工作室
项目地址:武汉万象城
建筑面积:401㎡
摄影版权:山野设计工作室
合作方:万川建设
材料:手工砖,做旧金属,荒料石材,防火板,深度炭化木
客服
消息
收藏
下载
最近































