查看完整案例

收藏

下载
山的结束,是建筑的开始。行走于建筑之间,犹如漫步在乡村曲巷、山中小径。建筑犹如一个立体的聚落,将自然与人文紧密联结。
——MOMENTUM 主持建筑师,黄明健
The end of the mountain, is the beginning of architecture. Wandering between buildings, is like strolling through rural winding alleys or mountain trails. Architecture stands as a three-dimensional village, where nature and humanity intertwine in harmony.
— Principal Architect, Huang Mingjian
▼外观概览,exterior overview© 苏圣亮
自然联结:建筑与山野的对话
Nature’s Connection: A Dialogue Between Architecture and the Environment
青山文化礼堂位于杭州的青山艺术村的山脚下,为 MOMENTUM 建筑事务所近年来在该地进行的本土建筑实践系列的一个阶段性成果。青山文化礼堂于 2021 年 12 月开始设计,至 2024 年 5 月建成,历时 2 年 6 个月。礼堂南邻青山村村委,北望连绵青山,本设计思考如何将村委与青山做链接,与自然山景融为一体,同时以此作为契机,进行一种生成性的建筑形式思考。
▼概念意向图,Concept Drawing © MOMENTUM 建筑设计事务所
▼青山村生态调研-自然与社区交融的生态环境,Qingshan Village Ecological Survey: An Ecological Environment Integrating Nature and Community ©谢丽娜 张译文 曾钘
The Qingshan Cultural Hall, situated at the foot of Qingshan (literally mean “green mountain” in Chinese) Art Village in Hangzhou, marks a key phase in MOMENTUM Architecture’s ongoing exploration of local architectural practices. The project commenced design in December 2020 and completed construction in May 2024. Positioned south of the Qingshan Village Committee and overlooking the continuous mountain range to the north, the design engages in a dialogue between the built form and the landscape, seeking to establish a harmonious connection between the village and the surrounding natural topography. The architectural approach considers how to integrate the public space with its mountainous context, blurring the boundaries between architecture and nature. At the same time, it serves as an opportunity to explore generative form design thinking.
▼空中俯览青山艺术村,Aerial View of Qingshan Art Village © 潘杰
▼建筑鸟瞰,Aerial View of the Project and Surrounding© 苏圣亮
▼青山村融设计图书馆,Rong Design Library © 融设计图书馆
青山村是未来乡村的实验基地,以生态保护和艺术创新为核心,修复了在地的水资源,引进融设计图书馆等艺术项目,将传统工艺与现代设计做融合。青山文化礼堂也在这个基础上对文化、生态、材料等方面进行了探索。
Qingshan Village is an experimental base for the future countryside, with ecological protection and artistic innovation at its core. It has restored local water resources, introduced art projects such as a design library, and integrated traditional crafts with modern design. The Qingshan Cultural Hall has also explored aspects of culture, ecology, and materials based on this foundation.
▼建筑北立面,North Elevation© 苏圣亮
▼礼堂与社区的联结,The Connection Between the Cultural Hall and the Community© 苏圣亮
▼开门见山,A Clear View of the Mountain Through the Door© 苏圣亮
原址上的旧文化礼堂因空间拥挤、采光与通风不足被拆除,取而代之的新建筑通过错落起伏的屋檐与村委相连,围合出一个三角形的室外空间。这一设计不仅柔化了村委公共空间与居民区的边界,还为村民提供了休憩与活动的场所——老人们可以在树荫下乘凉,孩子们可以在此嬉戏玩耍。
The original cultural hall on the site was demolished due to its spatial limitations, insufficient natural light, and poor ventilation. The replacement structure, with its dynamic, undulating eaves, forms a direct connection with the village committee and defines a triangular outdoor space. This architectural gesture not only blurs the boundary between the village committee’s public domain and the adjacent residential area but also creates a flexible, communal space. The design facilitates a variety of social interactions: elderly residents can find respite in the shaded areas, while children have a dedicated space for play, fostering a sense of community and engagement.
▼建筑俯瞰,Aerial View© 苏圣亮
▼建筑入口小广场,Entrance Plaza© 苏圣亮
漫游建筑:空间与自然的交织
Promenade Architecture: The Interplay of Space and Nature
本项目质疑把形式看作一个物体表征的肤浅形式主义理念,而是把注意力从建筑的整体转移到其组成部分,探究空间之间的缝隙,关注独立、断裂、碎片化、无定形的个体,并且分析它们之间的一种彼此促成的力量和由此联系在一起而形成的建筑体验。建筑的生成过程与观者的建筑游走体验相互影响、建构、交叠。
This project challenges a shallow understanding of formalism, which reduces form to a mere object. Instead, it shifts attention from the whole building to its individual components, investigating the gaps between them. It focuses on the independent, fragmented, and amorphous qualities of these parts, analyzing the forces that interconnect them and the architectural experience that emerges from this interaction. The generative process of the architecture and the visitor’s experience of traversing the space influence, construct, and overlap, creating a dynamic interplay between form and perception.
▼形式生成图解,Form Finding Diagram© MOMENTUM 建筑设计事务所
▼丰富多维的空间,Rich Spatial Experiences© MOMENTUM 建筑设计事务所
本设计通过一条连续的攀爬路径,穿越于建筑部分与部分之间的不确定的、变化着的、具有生成性的关系之中,设计师并未对其进行明确定义,而是让自然的光影与微风在具有生土纹理的空间中交织、流动,让人们在建筑中漫游时,参与到内外空间的逾越、建筑与自然之间的对话,以及人与人之间的互动之中。在这个过程中,空间分叉交织,留下属于观者个人特殊的历史路径,指向无数的潜在未来。
▼分叉流线,Circulation Branch© MOMENTUM 建筑设计事务所
The design incorporates a continuous ascending path that navigates the uncertain, evolving, and generative relationships between different architectural volumes. The designer deliberately avoids rigid definitions, instead allowing natural light, shadows, and subtle breezes to interlace and flow through spaces defined by earthy textures. As users move through the building, they actively participate in the crossing of boundaries between interior and exterior, the dialogue between architecture and nature, and interactions among individuals. In this process, the spatial branches and intersections unfold, leaving behind a unique, personal trajectory for each observer, suggesting an array of possible futures.
▼“青山步道” ,”Green Mountain Pathway”© 苏圣亮
▼曲折的路径,The Winding Path© 苏圣亮
▼路径作为内外的界面,The Path as the Interface Between Interior and Exterior© 苏圣亮
社区:立体聚落与诗意栖居
Community: Three-Dimensional Settlement and Poetic Dwelling
连续、折叠的楼梯道把人从建筑东侧的入口公共广场引导到建筑各楼层,形成“一站式的服务通道”,把社区与政府办公、文化空间紧密地编织在一起,远看建筑犹如一个立体的乡村聚落。
▼概念系列剖面,Conceptual Building Sections© MOMENTUM 建筑设计事务所
The continuous, folded stairways guide visitors from the public plaza at the building’s eastern entrance to various levels of the structure, creating a “one-stop service corridor.” This design tightly weaves together the community, government offices, and cultural spaces. From a distance, the building resembles a three-dimensional village settlement, integrating functional spaces within a cohesive, interconnected form.
▼由“青山步道”串起的建筑聚落,The Architectural Settlement Linked by the “Green Mountain Pathway”© 苏圣亮
更重要的是,本设计打造了一种在虚实变化的空间中穿行的体验。登高眺望,环绕的青山仿佛与建筑融为一体,形成一条“青山步道”。人们在游走中,身体感知与自然气息之间产生对话,走向乡村的诗意栖居。
▼青山村邻里互动关系图,The Neighborhood Interaction Diagram of Qingshan Village ©王世一,王传哲,许聿
▼青山村邻里关系概念图,The Neighborhood Interaction Concept Drawing of Qingshan Village ©王世一,王传哲,许聿
More significantly, this design fosters an experience of movement through spaces where the boundaries between solid and void constantly shift. From elevated vantage points, the surrounding mountains appear to merge with the architecture, creating a continuous “green mountain Pathway.” As users navigate through the space, their bodily presence becomes attuned to the natural elements, facilitating an immersive dialogue between architecture and nature, guiding them toward a poetic form of rural habitation.
▼一层活动空间,Ground-Level Space ©苏圣亮
▼内外空间,Interior and Exterior Spaces© 苏圣亮
自然的建造:传统与现代的融合
Natural Construction: The Fusion of Tradition and Modernity
MOMENTUM 建筑事务所的本设计融合了当地的文化元素,保留了传统建筑的韵味,楼梯扶手采用当地的原竹材料,其变化韵律呼应了人行走的节奏;泥巴抹墙使用的泥土在村里就地取材,呈现青山村传统建筑朴实、平和的暖调。
▼青山村材料建构调研,The Material Construction Research of Qingshan Village ©李焓祺 董丹路 夏欣妮
▼青山村材料概念意向图,The Material Construction Research concept drawing of Qingshan Village ©李焓祺 董丹路 夏欣妮
This design by MOMENTUM Architecture integrates local cultural elements, preserving the charm of traditional architecture. The stair railing is made from locally sourced bamboo, with its rhythmic variations echoing the pace of human movement. The earthen plaster used for the walls is sourced directly from the village, reflecting the simple, serene, and warm tones of traditional Qingshan village architecture.
▼楼梯穿越建筑,The Staircase Traversing the Architecture© 苏圣亮
▼走廊,corridor
© 苏圣亮
▼竹扶手栏杆,Bamboo Railings© 苏圣亮
▼竹编楼梯扶手韵律,The Rhythm of the Bamboo Woven Stair Handrail© MOMENTUM 建筑设计事务所
红砖砌筑的镂空砖墙与实墙的开窗设计,通过玻璃倒影形成多层次的空间关系,将建筑与环境紧密地编织在一起。
▼红砖镂空砖墙和竹栏杆之间的走道,The Corridor Between the Red Brick Perforated Wall and Bamboo Railings© 苏圣亮
▼红砖镂空砖墙的光影,The Light and Shadow of the Red Brick Perforated Wall© 苏圣亮
▼扶手与墙身细节,Handrail and Wall Details© 苏圣亮、MOMENTUM 建筑设计事务所
可呼吸的空间:光与风在建筑中流动
Breathable Space: The Flow of Light and Wind Through the Architecture
空间体块之间的缝隙让阳光洒入、空气流动,形成“可呼吸的空间”。文化礼堂一层的南面是村委的杂物房,因此设计了一面高墙作为遮挡,眼睛在这里有了停留和放空的空间。光线从墙体和楼板结构的方向进入,同时天光从顶部三层空间的缝隙之间渗入,形成了横向与纵向的光感。
▼建筑剖面光影分析,Architecture Section Light Study© MOMENTUM 建筑设计事务所
▼纵向光的渗透,Vertical Light Penetration© MOMENTUM 建筑设计事务所
▼缝隙空间,the in-between space© MOMENTUM 建筑设计事务所
The gaps between the spatial volumes allow sunlight to filter through and air to flow, creating a “breathable space.” On the south side of the cultural hall’s ground floor is the village committee’s storage room, so a high wall was designed to block this view, providing a space for the eye to rest. Light enters from the direction of the wall and floor structure, while natural daylight filters through the gaps between the upper three levels, creating a cross-axis of light both horizontally and vertically.
▼一层文化礼堂,Ground Floor of the Cultural Hall© 苏圣亮
礼堂向北面的大山打开,通过“青山步道”进行内外空间的联结。
The cultural hall opens up to the northern mountains, creating a connection between interior and exterior spaces through the “Green Mountain Pathway.”
▼一层文化礼堂,Ground Floor of the Cultural Hall© 苏圣亮
▼二层文化长廊 ,Second Floor Cultural Corridor© 苏圣亮
三层空间作为乡村综合文化场所,包含图书室、舞蹈室、乡贤馆等功能,光线与空气透过粒子态的空间渗透进来,营造出舒适而富有生机的氛围。
The third-floor space, designed as a comprehensive cultural venue for the village, houses functions such as a library, dance studio, and culture development office. Light and air permeate through the particulate spaces, creating a comfortable and vibrant atmosphere that fosters a sense of vitality and openness.
▼三层图书室,Third-Floor Library© 苏圣亮
▼光线与空气透过粒子态的空间渗透进来,Light and air permeate through the particulate spaces© 苏圣亮
▼三层舞蹈室,Third-Floor Dance Studio© 苏圣亮
▼面山窗户,Mountain-Facing Window© 苏圣亮
结语
Conclusion
青山文化礼堂的落成,只是 MOMENTUM 建筑事务所对中国乡村新生活方式的思考的一个开端。它不仅是物理空间的更新,更是一场关于乡村公共生活的实验。当村民在竹制扶梯的韵律中拾级而上,当孩童在镂空砖墙的光影间追逐嬉戏,这座建筑已悄然成为承载集体记忆的容器。它以谦逊的姿态融入山野,用当代设计语言转译传统营造智慧——红砖的孔隙会呼吸,泥土的肌理会生长,折叠的廊道会诉说。每个空间的缝隙和交错不仅是对传统乡村建筑形式的回应,更是一种对当代建筑普遍存在的机械化、封闭性空间的反思。
在当今社会,建筑常常忽视与自然和人类的感官联系,过度强调功能性和表面美学,导致人类与环境的疏离。青山文化礼堂通过与自然的深度对话和空间的生成性探索,提出了对当代建筑冷漠、刚性空间的批判,并展现了建筑应如何回应人类的情感、感知和环境之间的复杂关系。在城市化浪潮与乡土文化的碰撞中,这里正孕育着一种新的可能:建筑不必是强势的介入者,而能成为自然与人文共生的催化剂,让诗意的栖居在山林间持续生长。
The completion of the Qingshan Cultural Hall marks just the beginning of MOMENTUM Architecture’s exploration into the new way of life in rural China. It is not only an update of physical space, but also an experiment in rural public life. When villagers ascend the bamboo staircase in rhythmic steps, or children play and chase in the light and shadow cast through the hollow brick walls, the building has quietly become a vessel for collective memory. With a humble stance, it blends into the mountains and fields, using contemporary design language to reinterpret traditional construction wisdom—red brick voids breathe, the texture of earth grows, and folded corridors tell stories. The gaps and intersections of each space are not only responses to traditional rural architectural forms, but also reflections on the mechanized, closed-off spaces commonly found in contemporary architecture.
In today’s society, architecture often neglects the sensory connection with nature and humanity, overly emphasizing functionality and superficial aesthetics, resulting in the alienation of humans from their environment. Through a deep dialogue with nature and a generative exploration of space, the Qingshan Cultural Hall critiques the indifference and rigidity of contemporary architecture, demonstrating how buildings should respond to the complex relationship between human emotion, perception, and the environment. In the collision of urbanization and local culture, this place cultivates a new possibility: architecture need not be an intrusive force, but can become a catalyst for the symbiosis of nature and humanity, allowing poetic habitation to flourish within the mountains and forests.
▼建筑鸟瞰图,Aerial View© 苏圣亮
▼建筑模型概览,Architectural Model overall view © MOMENTUM 建筑设计事务所
▼建筑模型-“青山步道” ,Architectural Model – “Green Mountain Pathway”© MOMENTUM 建筑设计事务所
▼建筑模型细节,Architectural Model Details© MOMENTUM 建筑设计事务所
▼总平面图,Site Plan© MOMENTUM 建筑设计事务所
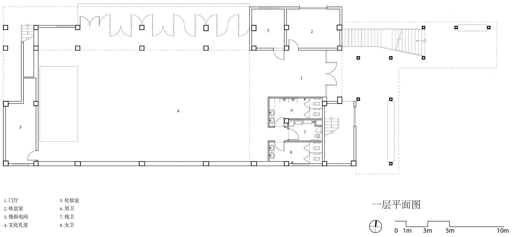
▼一层平面图,1F Plan© MOMENTUM 建筑设计事务所
▼二层平面图,2F Plan© MOMENTUM 建筑设计事务所
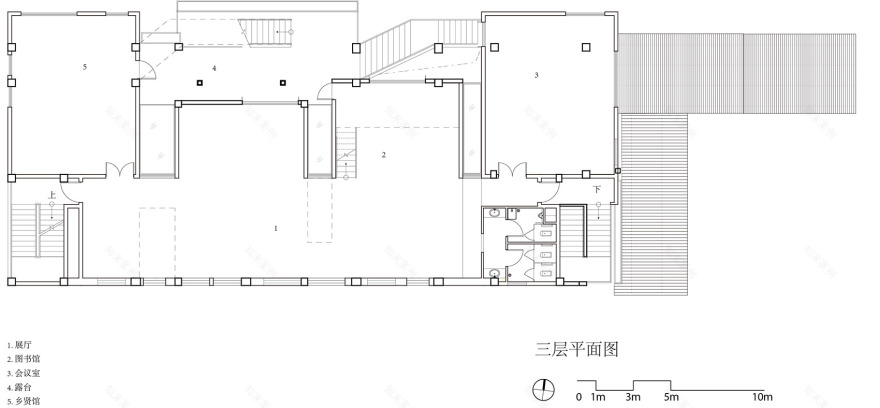
▼三层平面图,3F Plan© MOMENTUM 建筑设计事务所
▼阁楼平面图,Attic Floor Plan© MOMENTUM 建筑设计事务所
▼屋顶层平面图,RF Plan© MOMENTUM 建筑设计事务所
▼立面图,Elevations© MOMENTUM 建筑设计事务所
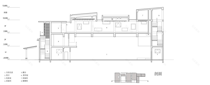
▼剖面图,Sections© MOMENTUM 建筑设计事务所
▼节点图,Details© MOMENTUM 建筑设计事务所
项目名称:青山文化礼堂
项目类型:公建
设计方:MOMENTUM 建筑设计事务所
项目设计:MOMENTUM 建筑设计事务所
完成年份:2024
设计团队:黄明健,何轶凌,孟凡奇,洪江溟,Haroon Ditta, 孙兴贤
项目地址:杭州市余杭区黄湖镇青山村
建筑面积:1544㎡
摄影版权:苏圣亮
施工图设计:上宸工程设计集团有限公司
客服
消息
收藏
下载
最近


















































































