查看完整案例

收藏

下载
为父母改造居所,堪称装修界的代际审美碰撞。年轻一代怀揣着改善父母生活品质的热忱,试图将先进智能的设备、新的生活方式与当代生活美学植入旧宅。而父母辈却困于节俭惯性与传统生活模式,在「没必要」与「怕麻烦」的踯躅中筑起藩篱。这场拉锯战往往以两败俱伤收场,直到设计师遇见这个浸润着理解与温情的改造范本。
Renovating a home for parents is a vivid collision of generational aesthetics in the world of interior design. The younger generation, driven by a passion to elevate their parents’ quality of life, strives to infuse aging homes with smart technology, modern lifestyles, and contemporary aesthetics. Yet the older generation, anchored in frugality and tradition, often resists with barriers of “unnecessary” and “too much trouble.” This tug-of-war typically ends in stalemate—until this heartwarming renovation project emerged as a model of empathy and compromise.
▼餐厅与展示墙,dining room and display wall© 方立明
该项目更像是年轻孩子给退休父母的一份礼物,少有争执,更多的是温暖和关怀。本案的特殊性在于——这是一场由儿媳领头的「孝心改造计划」,尽管平时工作很忙,她还是亲自参与了每一个环节,为了让公婆住得更舒服。为了用理性和事实说服老人,解决沟通矛盾,他们从制作专业 PPT 说服长辈,到多次开家庭动员会,再到全程参与设计和施工,年轻一代用行动诠释着:真正的孝顺,是让父母在舒适中拥抱新时代。
More than a remodeled space, this home became a gift from children to their retired parents: less about conflict, more about care. What makes this case unique? It was led by a daughter-in-law. Despite her demanding career, she immersed herself in every detail to ensure her in-laws’ comfort. To bridge generational gaps, the younger generation turned logic into action: persuasive PowerPoints, family meetings, and hands-on involvement in design and construction. Their message? True filial piety lies in helping parents embrace modernity “without sacrificing comfort”.
▼客厅概览,living space overview © 方立明
设计师仔细研究老人的习惯和家中用品,在 120㎡空间编织老人晚年的生活图景,重新建立房子动线和功能,做杂物入墙、轻量化的走廊、更空旷的空间以及合理安排老人书画喝茶等爱好,从而重新定义了这个兼具美观、高效、易用和安全的养老房!
1.传统智慧:保留长辈偏爱的木色与对称美学;
2.现代革新:植入日式 LDK 体系与智能化适老设施;
3.情感容器:为书画创作、茶道仪式、家族聚会定制专属场域。
最后,这个改头换面的新家,综合两代人的审美和生活,既保留了长辈喜欢的传统稳重,也融入了年轻人带来的现代温润,有传统的书香门第气质,也有现代木质的温柔包容,处处充满了爱和彼此关照的痕迹。沉甸甸的心意,就是这个家最触动人的地方。
By meticulously studying the seniors’ habits and belongings, the team reimagined the 120㎡ space into a blueprint for aging gracefully. Clutter vanished into built-in storage, corridors were streamlined, and open areas prioritized safety and ease. Dedicated zones for calligraphy, painting, tea ceremonies, and family gatherings transformed the house into a “retirement haven”—beautiful, functional, and safe.Three pillars defined the redesign:1. Honoring Tradition: Preserving warm wood tones and symmetrical layouts beloved by elders.2. Modernizing Thoughtfully: Integrating Japanese LDK (living-dining-kitchen) layouts and smart aging-friendly tech.3. Cultivating Connection: Crafting spaces for creativity (art), ritual (tea), and togetherness (family reunions).The result? A home that harmonizes generations. Traditional gravitas meets modern warmth; scholarly elegance blends with minimalist wood finishes. Every corner whispers of love and mutual respect. But the true soul of this home lies in its unspoken devotion.
▼从餐厅看向入户门,view from dining area to the entry door© 方立明
设计思路 Design Concept
这套 120m² 老房,平时只有两位老人居住。改造前是三居,虽然房子不小,但是住起来却比较逼仄。首先,南侧三间卧室有两间都是闲置,空间割裂导致采光浪费,平常不开南侧房门,阳光无法抵达客厅,昏暗又显小。原先的餐厅在厨房里面,妈妈平时画画只能在厨房餐桌上进行,每次画画、吃饭都要清理餐桌油污。进门也没有充足的收纳,日常的物品堆积如山,卫生间的使用体验也很差,功能缺失一直严重影响着这家人的生活品质。
▼原始结构图,original layout©7 Design
This 120m² old apartment was originally occupied by an elderly couple. Though the three-bedroom layout provided decent floor area, the compartmentalized spatial planning created a cramped and confined living experience.
Key issues before renovation:
1. Two of the three south-facing bedrooms remained unoccupied, while the fragmented layout prevented optimal daylight utilization.
2. The living room suffered from insufficient natural light – southern sunlight couldn’t penetrate through closed bedroom doors, leaving the space dim and cramped.
3. The kitchen-contained dining area forced the artistic mother to paint at the same table used for meals, requiring constant cleanup of oil stains before creative work.
4. Entryway lacked adequate storage solutions, resulting in cluttered daily items accumulation.
5. The poorly designed bathroom with functional deficiencies severely impacted their quality of life.
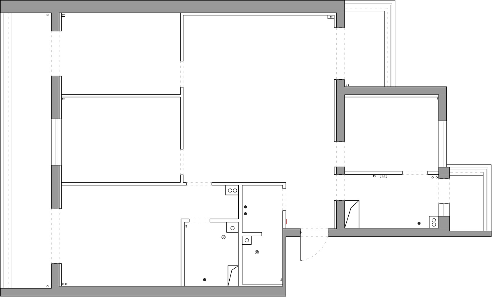
▼平面布局图,floor plan©7 Design
空间重组的改造策略:
1. 打通门口长条浴室与主卧之间的墙,实现分离式的卫浴体验,走廊两侧盥洗、家政、洗衣、淋浴、马桶一应俱全,互不干扰。
2. 主卧设置双入口,形成空气对流和环形动线。
3. 南侧的两间次卧打通拓宽客厅面积,利用配重墙和垭口,新增妈妈的绘画书桌和爸爸的书架。
4. 客餐一体,设置岛台把水吧放在餐区更方便,这样也能减轻厨房的压力。
5. 北阳台改成小次卧,方便孩子们偶尔小住。
6. 厨房隔了一部分面积设置土间,增加入户收纳量。
Space Reconfiguration Strategies:
1. Removed walls between the elongated bathroom and master bedroom to create a “compartmentalized bathroom system”, with washing, housekeeping, laundry, shower, and toilet facilities arranged along both sides of the corridor for independent use.
2. Added a second entrance to the master bedroom to establish “cross-ventilation”and a “circular circulation path” enhancing airflow and mobility.
3. Demolished two southern secondary bedrooms to merge with the living room, repurposing load-bearing walls and door openings to integrate:
– Mom’s painting desk
– Dad’s bookshelf
– Functional zoning
4. Designed an open-plan dining area with a **multipurpose island** housing a beverage station, reducing kitchen congestion while enabling seamless hosting.
5. Converted the northern balcony into a **compact guest room** with foldable furniture for occasional family stays.
6. Allocated part of the kitchen area to create a **dedicated entryway storage zone**, significantly boosting entrance organization capacity.
This redesign prioritizes spatial efficiency, multigenerational functionality, and harmonious circulation throughout the home.
▼空间轴测图,axon©7 Design
01玄关重生记
Rebirth of the Entryway
改造后,入户的适老动线加入了穿换鞋衣系统,可坐可扶。鞋柜旁边单独加入了储物小仓库,老年人进出门要随身携带很多东西,小仓库更适合老人的生活习惯,也更方便收发快递和囤货,仓库没有装门,以免小空间开关门绊倒老人。
The transformation is astounding – it’s hard to believe this was once an old house cluttered with belongings!
The doorway underwent major changes:
– Originally, the right side of the entrance had two doors leading to the kitchen/dining area and a built-in wardrobe, while the left side housed a narrow bathroom with a washing machine.
– The redesigned entry now features **senior-friendly mobility systems** with built-in seating and support for shoe-changing.
– A compact storage nook was added next to the shoe cabinet. Tailored to elderly lifestyles, this open storage area (doorless to prevent tripping) accommodates daily essentials, package deliveries, and bulk supplies.
▼入户门厅与换衣间,entry foyer space and change room© 方立明
02 卫浴革命 Bathroom Revolutio
原先两个闭塞的主客卫逻辑早已过时,四通八达的四分离卫浴适老系统更舒适好用。设计师把原来封闭的浴室直接打通了,可以直达老人的大卧室,全屋无高差过渡,安全方便。打通后的小走廊,左右配置了非常完善精致的清洁和收纳系统。
The original two enclosed main and guest bathrooms with outdated layouts have been replaced by a more comfortable and user-friendly four-separate bathroom system designed for elderly use, offering better accessibility and functionality. We completely opened up the previously enclosed bathroom, creating direct access to the elderly couple’s main bedroom. The entire house now features level transitions throughout, ensuring safety and convenience. The newly opened small corridor is equipped with a comprehensive and refined cleaning and storage system on both sides.
▼打通后的小走廊,opened small corridor © 方立明
紧挨门口的是独立马桶间,原先是这里管道丛生,见缝插针地设计了隐形家政柜和工具柜,隐藏管道。
For example, right next to the entrance is an independent toilet room. Previously, this area was cluttered with pipes, but we cleverly designed hidden housekeeping cabinets and tool storage to conceal the pipes.
▼独立马桶间,separate toilet © 方立明
隔壁是带洗衣房的淋浴间,含分类脏衣篓和毛巾区;浴室地面是日本进口的发泡塑料卷材,墙面还留了透光孔和坐浴台,洗澡时可以坐着借力,不开灯也不会太暗。
Adjacent to it is a shower room combined with a laundry area, featuring categorized laundry baskets and a dedicated towel storage zone. The bathroom wall also includes light-permeable openings and a built-in shower seat, allowing the elderly to sit and rest while showering. Even without turning on the lights, the space remains adequately bright. Furthermore, the bathroom floor is made of FRP resin base with a hardened resin layer, using a seamless plastic sheet material.
▼洗衣房淋浴间,shower room with laundry © 方立明
分离浴室对面是洗脸池和家政系统,家政台有不同功能的抽屉,比如分类洗衣篮、叠衣熨烫板和不同厚度的各种生活杂物柜等,这里还暗藏了扫拖机器人,自动上下水,解放家务,非常省事。
Opposite the separate bathroom is the washbasin and housekeeping system. The housekeeping console includes drawers with various functions, such as categorized laundry baskets, a folding and ironing board, and cabinets of different thicknesses for storing daily essentials. Hidden here is also a mopping robot with automatic water supply and drainage, greatly simplifying household chores.
▼家政系统,housekeeping console© 方立明
洗手池也在入口旁边,可以两人同时使用,内嵌杂物柜,不会磕碰,收纳增加了免弯腰壁龛抽屉和柜内电源等很多更省力的小设计。
The sink is also located near the entrance, allowing two people to use it simultaneously. It features built-in storage cabinets designed to prevent collisions, along with many labor-saving details such as waist-height recessed drawers and cabinet-embedded power outlets.
▼洗手池,sink © 方立明
03 洄游卧室 Circulatory Bedroom Design 往里走就是宽敞明亮的老人卧室。原来封闭的阳台拆进来后,仿佛换了套房,床区位置没变,改成舒适雅致的浅木色。
Continuing inward is the spacious and well-lit elderly bedroom. The previously enclosed balcony has been incorporated into the interior through demolition, transforming the space as if it were a completely new apartment. While the bed area retains its original position, it now features a comfortable and elegant light wood finish.
▼宽敞明亮的老人卧室,spacious and well-lit elderly bedroom © 方立明
浴室这里是有推拉门的,床尾对面还含一处双开门。洄游动线改变了原来转角开门的憋闷感,拆除隔墙打造的环形动线,主卧去客厅和门口都更方便,也让整个房子的阳光和空气自由流转。
The bathroom is equipped with sliding doors, while a set of double doors is installed opposite the foot of the bed. This innovative circular circulation path eliminates the previous cramped feeling caused by corner-door access. By removing partition walls to create a circular flow, the master bedroom now offers easier access to both the living room and the entrance, while allowing sunlight and air to circulate freely throughout the entire home.
▼卧室的双开门,double doors opposite the bed © 方立明
双开门左右对称添置两个宜家大衣柜,加上阳台柜,满足老人所有的衣物收纳。这组宜家柜孩子家自用很多年,原先老人房也有一个旧的实木衣柜,老人想留下来,为了说服老人,媳妇让长辈自己亲身体验,收纳分类和拿取都十分便利。
Flanking the double doors are two symmetrical IKEA wardrobes, complemented by a balcony storage cabinet, collectively meeting all the elderly couple’s clothing storage needs. This IKEA wardrobe system has been used by their children’s family for years. Though the elderly initially wanted to keep their old solid wood wardrobe from the original bedroom, the daughter-in-law invited them to experience the new system firsthand, which ultimately proved the convenience of organization and accessibility.
▼衣物收纳,wardrobe© 方立明
04 客厅涅槃 Living Room Reimagined
原先的客厅不大,设计师是把原来南向的两处小房间拆进公区来放大效果。南北打通后,整个餐客厅都是透亮舒畅的,又处处都是生活细节充满乐趣。
The original living room was not particularly spacious. To amplify the sense of space, we incorporated two small south-facing rooms into the public area. With the north and south areas now connected, the entire dining and living room is bright and comfortable, filled with delightful life details everywhere.
▼透亮舒畅的餐客厅,bright and comfortable LDK area© 方立明
拆掉的书房和孩子房,改造后的大客厅也包含了这两种功能。首先是把客厅北侧杂物阳台改成了一个开放式的小卧室,折叠门是可封闭的,并且还有完善的收纳和睡眠系统,孩子们可以偶尔过来住也很方便。
By removing the study and the children’s room, the newly transformed large living room now integrates both functionalities: First, we converted the north-facing utility balcony into an open-style small bedroom. Equipped with folding doors for privacy, along with a comprehensive storage and sleeping system, it provides a convenient space for children to stay occasionally.
▼开放式的小卧室,an open-style small bedroom © 方立明
老人退休后,爱上了国画,餐区海洋板墙面很自然的变成了展示区。
After retirement, the elderly developed a passion for traditional Chinese painting, and the marine plywood wall in the dining area naturally became a display zone.
▼展示区,display wall© 方立明
餐厅一侧加岛台+餐边柜陈列架的结构其实也更适合老人家使用。背景展架放老人收藏的贵重物品和各种茶道器皿,水吧台含咖啡机和嵌入式烧水区,更方便老人泡茶,泡茶的自动上水管链接到下面柜子里的水桶,再也不用一地桶磕磕绊绊。
The addition of an island counter + sideboard shelf structure on one side of the dining area better suits the elderly’s needs. The background display shelves hold the elderly’s cherished collectibles and various tea ceremony utensils. The water bar includes a coffee machine and an embedded water heating area, making it more convenient for the elderly to brew tea. The automatic water supply pipe for tea brewing connects to a water bucket in the cabinet below, eliminating the hassle of dealing with buckets on the floor.
▼岛台+餐边柜陈列架,island counter + sideboard shelf © 方立明
岛台的另一个好处是更方便洗茶器,设计师设计了更多抽屉,海量茶叶饮料、酒水、密封袋都能瞬间找到。
Another advantage of the island counter is its convenience for washing tea utensils. We designed additional drawers, allowing easy access to a vast collection of teas, beverages, alcohol, and sealed bags.
▼岛台细部,island details © 方立明
餐区往南就是沙发区和书画区。
To the south of the dining area lies the sofa zone and the painting and calligraphy zone.
▼沙发区和书画区,sofa and drawing zone © 方立明
这里的长阳台是原来就有的结构,隔墙含承重无法拆除,设计师将它一分为二,一部分作为木格栅窗归入主卧。另一半客厅区的阳台隔墙则安排了妈妈绘画的书桌、爸爸的书架和植物区,杂物阳台也能变功能大师。
The long balcony here is part of the original structure, and its partition wall, being load-bearing, could not be removed. We divided it into two parts, with one section serving as a semi-transparent window for the master bedroom. The balcony partition wall in the living room area accommodates the mother’s painting desk, the father’s bookshelf, and a plant zone. Even the utility balcony has been transformed into a multifunctional space.
▼书桌和书架,painting desk and bookshelf © 方立明
▼阳台植物角,balcony plant zone© 方立明
05 重组厨房 Reforming the kitchen 北侧设计师利用小卧室和厨房门的厚度差做了植物角,一进门就能看到视觉上增加了东方禅意。
On the north side, we utilized the thickness difference between the small bedroom and the kitchen door to create a plant corner. As soon as you enter, it adds a visual touch of Eastern Zen ambiance.
▼植物角区域轴测,a plant corner© 方立明
▼植物角,plant corner© 方立明
植物角旁边进来就是厨房,同样没装门,独立厨房即便隔了一部分面积给玄关,仍然保留了原来的两屋结构。
Next to the plant corner is the kitchen, which also has no door. Even though part of the space was allocated to the entryway, the independent kitchen retains its original two-room structure.
▼厨房,kitchen© 方立明
原来外侧方正的餐厅被释放出来作为主要厨房,面积更大更舒展,避免人多剐蹭绊倒,比窄厨房更安全。厨房左侧 L 形橱柜,把洗菜操作区靠窗放,吊柜和地柜之间的墙面,以及水槽旁边的柱子都包了磁吸的珐琅板,可以自由增加墙面收纳组件。
The previously square-shaped outer dining area has been repurposed as the main kitchen, offering a more spacious and open layout. This design helps avoid collisions and tripping hazards when crowded, making it safer than a narrow kitchen. On the left side of the kitchen, the L-shaped cabinets position the vegetable washing and preparation area by the window. The wall between the upper and lower cabinets, as well as the column next to the sink, are covered with magnetic enamel boards, allowing for flexible wall-mounted storage solutions.
▼宽敞的厨房,spacious kitchen© 方立明
厨房右侧墙上也用洞洞板做了开放格,可以分类收纳各种调料和五谷杂粮。开放格的下面也设计了折叠餐桌,平时用餐不想端菜去到外面餐区,就可以把它放下来,轻体的桌板老人自己可以轻松收放。
On the right side of the kitchen, pegboard open shelving is installed to categorize and store various condiments and grains. Below the open shelving, a foldable dining table is designed. When the elderly prefer not to carry dishes to the external dining area, they can simply unfold the table. The lightweight tabletop is easy for the elderly to handle independently.
▼折叠餐桌,foldable dining table © 方立明
设计后记 Afterwords 当阳光透过纱帘洒在母亲的画案上,当父亲在定制书格前摩挲珍藏的典籍,这个被爱意重新浇筑的空间,已然超越了物理意义的居所。它是一封用空间写就的家书,见证着两代人相互理解的温柔革命——最好的孝顺,是帮助父母优雅地走进新时代。
When sunlight spills through sheer curtains onto a mother’s painting desk, or a father traces weathered fingers over custom-built bookshelves holding lifelong treasures, this space transcends bricks and mortar. It becomes a “love letter written in walls and light”—a testament to a quiet revolution where two generations learn to see through each other’s eyes. Here, filial piety is redefined: not obligation, but a shared journey to help parents step gracefully into tomorrow.
▼温暖氛围,a warm atmosphere© 方立明
项目名称:退休宅
项目面积:120㎡
项目地点:北京海淀
项目完工时间:2015 年 2 月
主创设计:王冰洁、郑昊鸿
摄影:方立明
施工单位:一尺一界
装修主材:海洋板、木格栅、不锈钢
客服
消息
收藏
下载
最近














































