查看完整案例

收藏

下载

翻译
CASA ELKE
seaside private residence
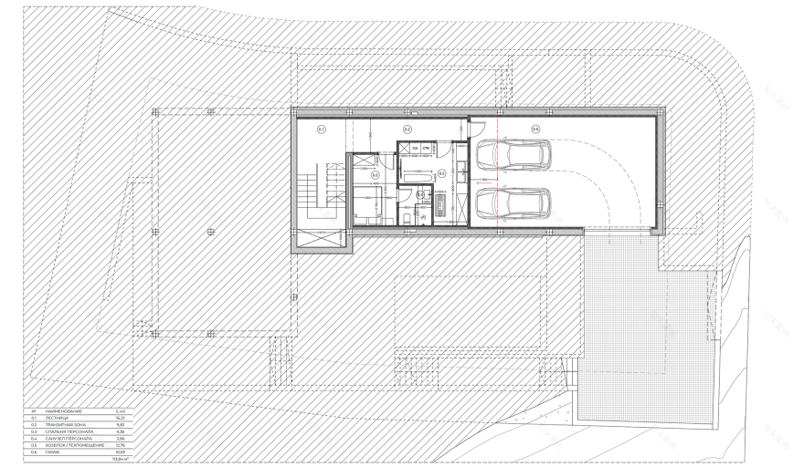
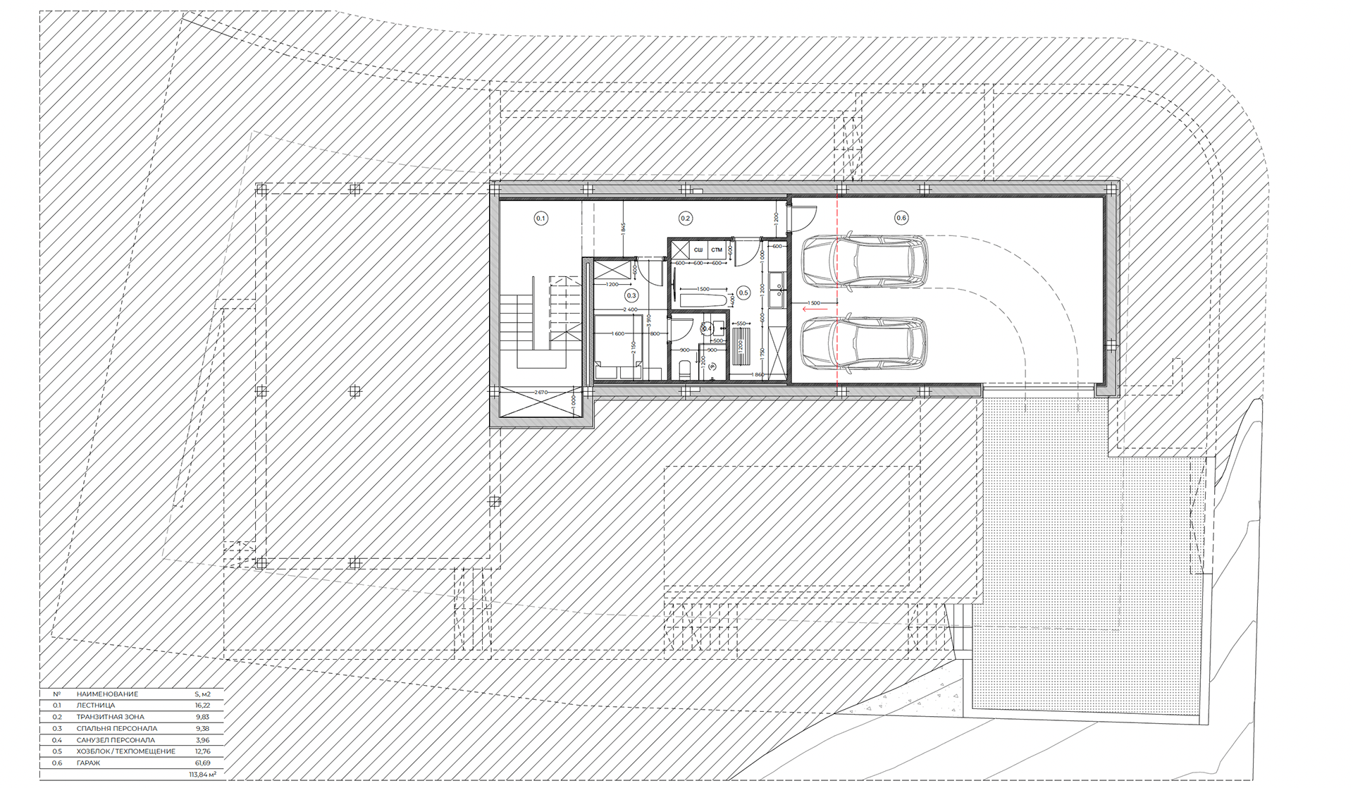
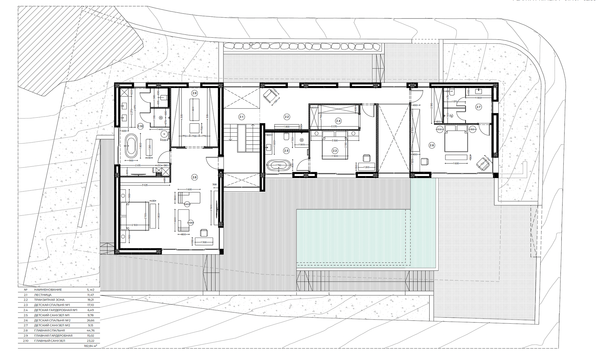
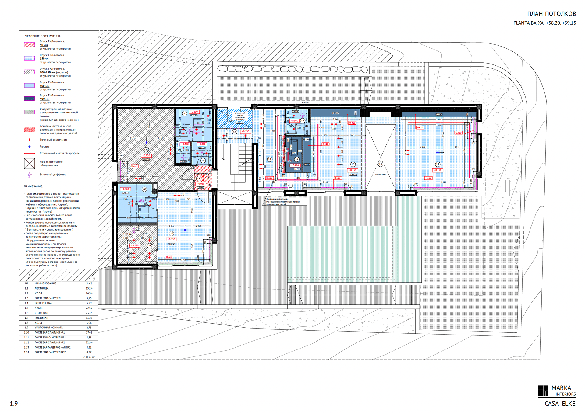
Project Area: 320 sq. mProject Year: 2021Location: Barcelona, SpainArchitect: Butrinova TanyaDesigner: Kovaleva NatashaDirector: Kashina Margo
Viz: Ekaterina Baevskaya
_The house was planned as a country residence for personal use. Then the concept changed and the project became an investment one. This prompted us to change the planning decisions and make the rooms more versatile.
_Proximity to the sea, local materials, speed of implementation and universal style formed the basis of the design concept.We used red facade brick for the exterior and also used it as a decorative solution in the interior. This helped make the design more coherent.
_We were looking for a balance between clean lines, correct proportions and simple coloring. It was important to keep the interior clear and cozy for any client, but at the same time not to lose its individuality.
Here we go!
And so on and so force...
DEVIL'S DETAILS
👹
PROJECTPROCESS
QUEEN of MANAGE EVERYTHING
The work is still in progress 💪
客服
消息
收藏
下载
最近


















































