查看完整案例

收藏

下载

翻译
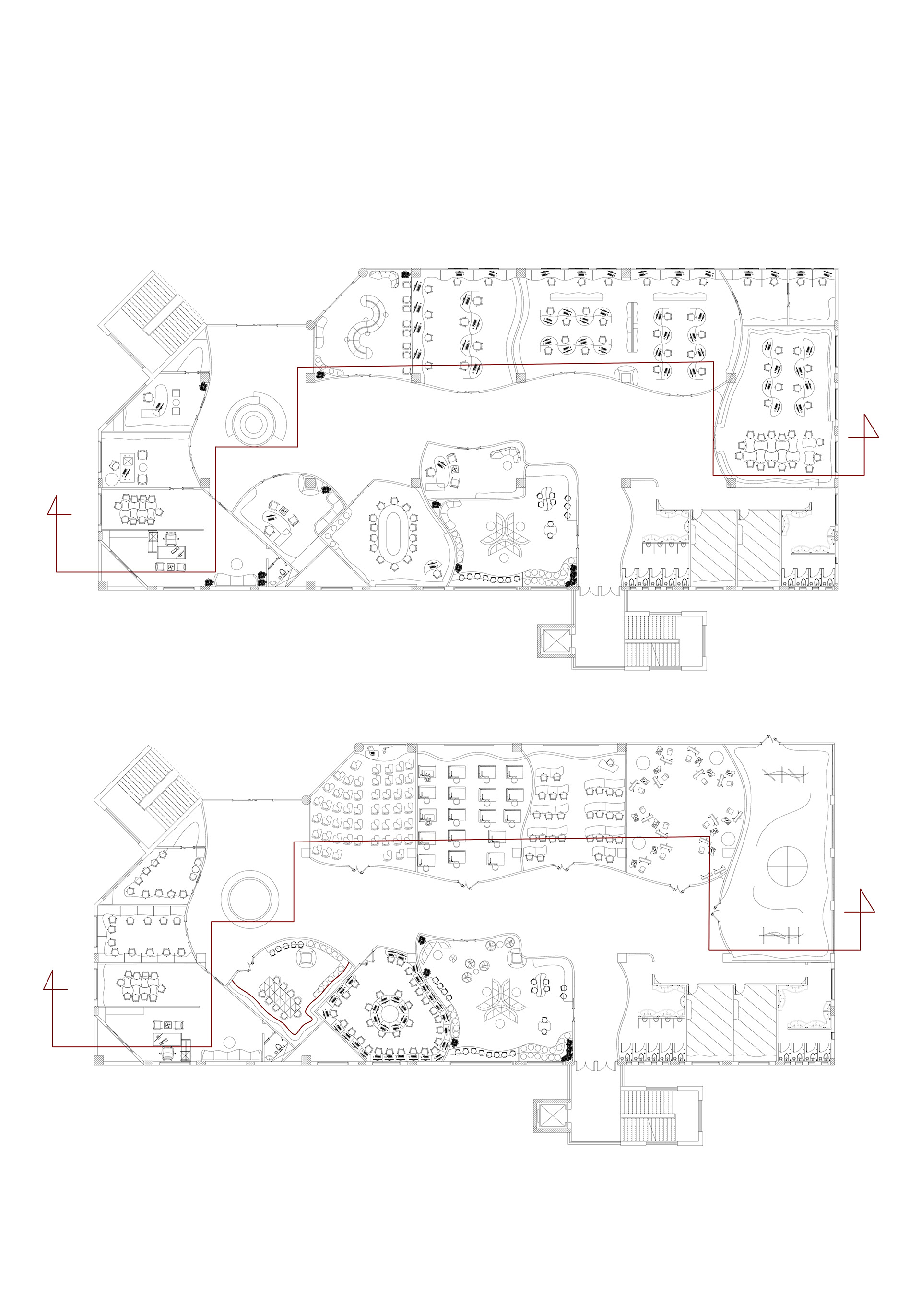
Redesigning part of the Faculty of Fine Arts at Mansoura University
The design emphasizes dynamic and activity.
Using modern creative design elements. Movement and design should reflect on furniture, walls, and colors.
The first floor contains the dean’s office, administrative affairs, the vice dean’s office, and some other administrative rooms.
The second floor is part of the Decor Department and includes the studios, rooms for professors, and assistants.
A design that suggests movement, activity, and colors, reflecting the overall atmosphere of fine arts.
HOPE YOU LIKE IT
DEAN'S ROOM
ENTRANCE
AFFAIRS ROOM
WAITING AREA & STUDENT REGISTRATION
HALLS
يجمع بين الطراز العصري والتصميم البيوفيلي لإنشاء بيئة ديناميكية ووظيفية وجذابة من الناحية الجمالية. يركز التصميم على الخطوط النظيفة والمرنة مع استخدام العناصر المنحنية في تصاميم الجدران والأسقف، مع دمج الألوان المحايدة مثل البيج والأبيض مع الألوان الدافئة كالأخضر والزيتوني والاصفر و البرتقالي، مما يخلق شعورًا بالدفء والراحة والتناغم البصري.
تظهر العناصر البيوفيليه بوضوح في التصميم، بما في ذلك النباتات الوفيرة والجدران الحية، التي تعزز الارتباط بالطبيعة. كما تم استخدام المواد الخشبية بشكل كبير، مما يضفي إحساسًا بالدفء الطبيعي، بينما تساعد النوافذ الكبيرة على زيادة الإضاءة الطبيعية، مع تكاملها مع الإضاءة الصناعية الناعمة والموزعة بشكل جيد.
يركز التصميم بشكل عام على الوظائف العملية، حيث يوفر مساحات ديناميكية متعددة الاستخدام تشجع على التعاون والإبداع، مثل مساحات العمل الجماعي. من خلال التركيز على البساطة والراحة والتكامل السلس بين العناصر الطبيعية والحديثة، يقدم المشروع بيئة ملهمة وجذابة.
客服
消息
收藏
下载
最近





















