查看完整案例

收藏

下载
三度被延续的空间,既是一场挑战,也是一种使命,我们顺其在然,寻找对空间形式的探索和对于几何形态的热情,我们不希望只是感动自身,更希望能够让使用者使用中完全融入进来,感受到前身给予后续的能量
项目信息
Information
项目坐标
| Location:河南.郑州
项目面积
| Square Meters:129㎡
设计主案
| Design Director:刘明帅
协作团队
| Team:申恒坤 / 毕宾华
主要用材
| Material:瓷砖、木饰面、乳胶漆、石材
设计时间
| Time:2024.12
BEAUTY OF BALANCE
建筑的平衡 01
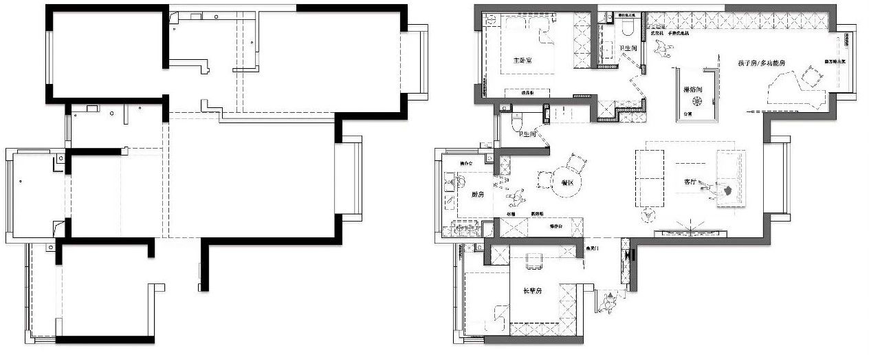
空间概况:
本案位于河南郑州,正常的三居室空间,接到这个案子的时候,它已经经历了两次的辗转设计,所以我们是三度重塑的空间,何为三度:面临委托人之前经历的心态、要在施工一部分的状态下重新思考、要面临网络风波下被审视的状态。基于以上情况,我们对空间重新做了分析和委托人以后的生活状态也重新做了梳理,当下的状态是和未来的可能性会有个断层,这个断层是委托人的工作状态和生活状态下两者交叉所出现的,时间基本在五到七年,在这期间我们不可能为了虚无,把空间闲置浪费,所以要适配出每一阶段所出现的和所能应对的场景是本方案的重点。
空间思路:
整个设计中,房屋的高度和众多梁体及光线的问题,如果按照常规包梁,在我这个空间欠妥,考虑到光线和上述的时间断层,我们把主卧的位置做了位移,让整个光线从南向完全的进来,建立空间之间的光线关系和流向性的动线,释放空间的同时,满足足够的储物和视觉通透,整个色系上以米白为主,切入几何形体的盒子作为颜色的制衡,处理视觉的平衡点,这样南向的空间充满趣味,休闲的场景不在只是单独的某一个固定区域。
O N T O L O G I C A L
本体性建造 02
盒子与格子,除了延续空间,框架式结构和隐藏的开窗形成视觉的上扬,也在围合之中出现光影的微妙张力。
功能概况
借助区域之间的功能划分产生逻辑,基于这样的空间,让自然光线,形塑主体和结构之间诗性的互动,至少能感受到天空的变化,片段微妙的那些浮现于日光的量度,所以结构的秩序,充满外显的力量。
客服
消息
收藏
下载
最近





























