查看完整案例

收藏

下载
星纪园学校
01
项目概况PROJECT OVERVIEW__
星纪园学校是网龙网络公司出资设立的私立学校,现设有小学部,筹设初中部和高中部,是一所小班化、个性化、国际化的高端精品全日制学校。校区位于福建省福州市长乐区湖南镇的海西动漫城。现已拥有现代教室、趣味多彩的分学科功能室和完善的文体设施。
项目总建筑面积25175.78㎡,其中地上24970.37㎡,地下205.41㎡。建筑地上五层,地下一层,建筑高度21.1m,包含了教学区、运动区、图书馆、报告厅、食堂,舞蹈教室等多个功能。项目以用地条件、地域气候、自然景观等现实难点和条件出发,通过立体海景、模块方盒、多维中庭和信息模型等朴实的设计手法,打造出一个既能供师生全天候使用,同时又能与大海亲近相融的现代校园。
项目使用至今,收到了包括业主、校方等的多方好评,成为了福建数字教育小镇的重要部分。
02
设计理念DESIGN CONCEPT__
立体海景——从通廊到天空,从内向到开场,模糊学习与交流,模糊室内与大海
为了充分利用海景优势,我们把建筑错位搭接,把原本属于首层的活动场地,铺贴在错落的方盒顶部,使得海浪、海风和海景,通过这层介质渗透进入建筑,同时,学生通过这层介质,回归到大自然。中央多功能通廊串接动静相间的不同功能用房,延伸到户外上天面,天面分层设置不同类型的活动,学习与交流之间,室内与户外之间都变得模糊。
模块方盒——功能集聚串联,节约用地,缩短步行距离
项目用地紧张,同时建筑包含了了教学、图书馆等多种教学活动等功能。方案把多个模块化方盒集聚,以中央多功能通廊串联。模块化方盒根据教学要求,赋予了教学区、运动区、图书馆、报告厅、食堂,舞蹈教室等多个功能。模块化方盒的不同色彩,代表不同的功能区,增强识别性。项目在有限的土地上安排了多样化的功能,集约的布置也缩短了师生日常使用的步行距离,风雨无阻。
多维中庭——舌应海边大风和风沙气候,保证全天候使用
为应对长乐海边大风和风沙气候,项目除采用室内中央多功能通廊串联各功能外,在教学区采用了内廊+中庭布局,在保证师生能全天候使用的同时,提供了多个室内公共活动空间。中庭上下分开两部分,上部为初中区使用,下部为小学区使用,互不干扰。不同尺度的中庭,宽窄不同的线性廊道连接不同标高的室内外平台,给小学生多变新奇的空间体验。
信息模型——管线和结构可视化分析,提前预判,节省投资
项目借助计算机模拟,在施工图阶段,把管线和结构系统进行可视化分析,从而提前预判可能打架或影响净空的位置。各专业设计协同配合,通过避让和穿梁等常规手段,为项目争取了最大净空,节省了投资。
03
设计图纸DRAWINGS__
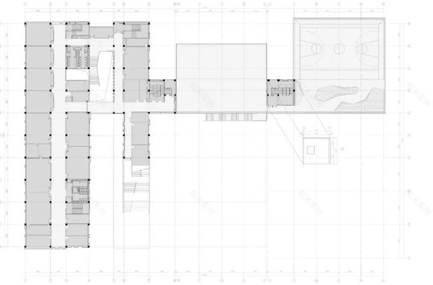
一层平面图 FIRST FLOOR PLAN
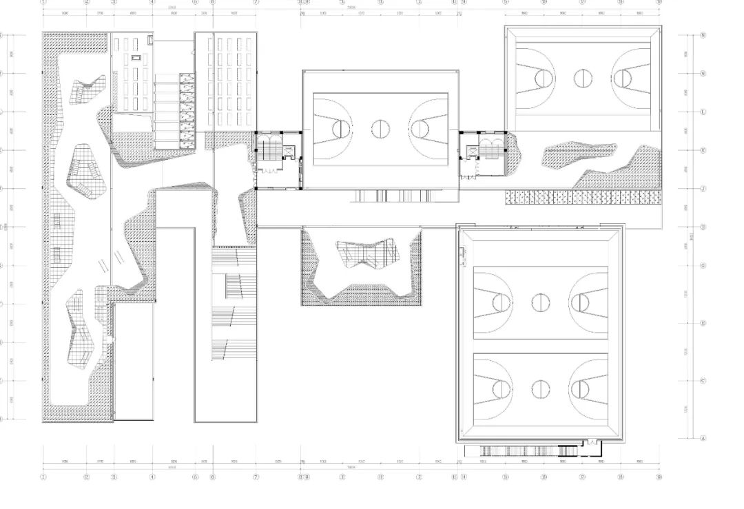
二层平面图 SECOND FLOOR PLAN
三层平面图 THIRD FLOOR PLAN
四层平面图 FOURTH FLOOR PLAN
五层平面图 FIFTH FLOOR PLAN
屋顶平面图 ROOF PLAN
立面图 ELEVATION
剖面图 SECTION
▎项目档案项目名称:星纪园学校项目位置:福建省福州市总建筑面积:25175.78 ㎡设计时间:2016.09-2019.03竣工时间:2020设计单位:华南理工大学建筑设计研究院有限公司项目总负责:杨勐建筑:李晖浩、刘凯、高浩、朱晓平、李睿、陶萍、荣长青、李斌、祖延龙结构:谢灿东、徐振楠给排水:岑洪金、陈燕桃电气:俞洋、张云峰智能化:符文彬暖通:彭蓉、王钊节能:赵立华▎项目获奖· 2023年度教育部优秀工程勘察设计奖 建筑设计二等奖
客服
消息
收藏
下载
最近





























