查看完整案例

收藏

下载

翻译
Architects:HGA
Area:13200ft²
Year:2024
Photographs:Albert Vecerka/Esto
Manufacturers:Lutron,Interface,Sherwin-Williams,Armstrong,Blue Mountain,Corian,Daltile,Forbo,Maharam,Marvin,Milliken,YKK AP
Lead Architects:Joan Soranno, John Cook, David Wilson
Civil Engineering:Nelson Engineering
General Contractors:ACM
Design Principal And Project’s Lead:Joan Soranno
Senior Project Designer:David Wilson
Senior Project Architect And Museum Technical Specialist:John Cook
Leed Ap And Principal Project Manager:Roxanne Nelson
Senior Interior Designer:Natalie Pullen
Exhibit Designer:Gallagher & Associates
Owner's Rep:Jason Berning Project Management
City:Jackson
Country:United States
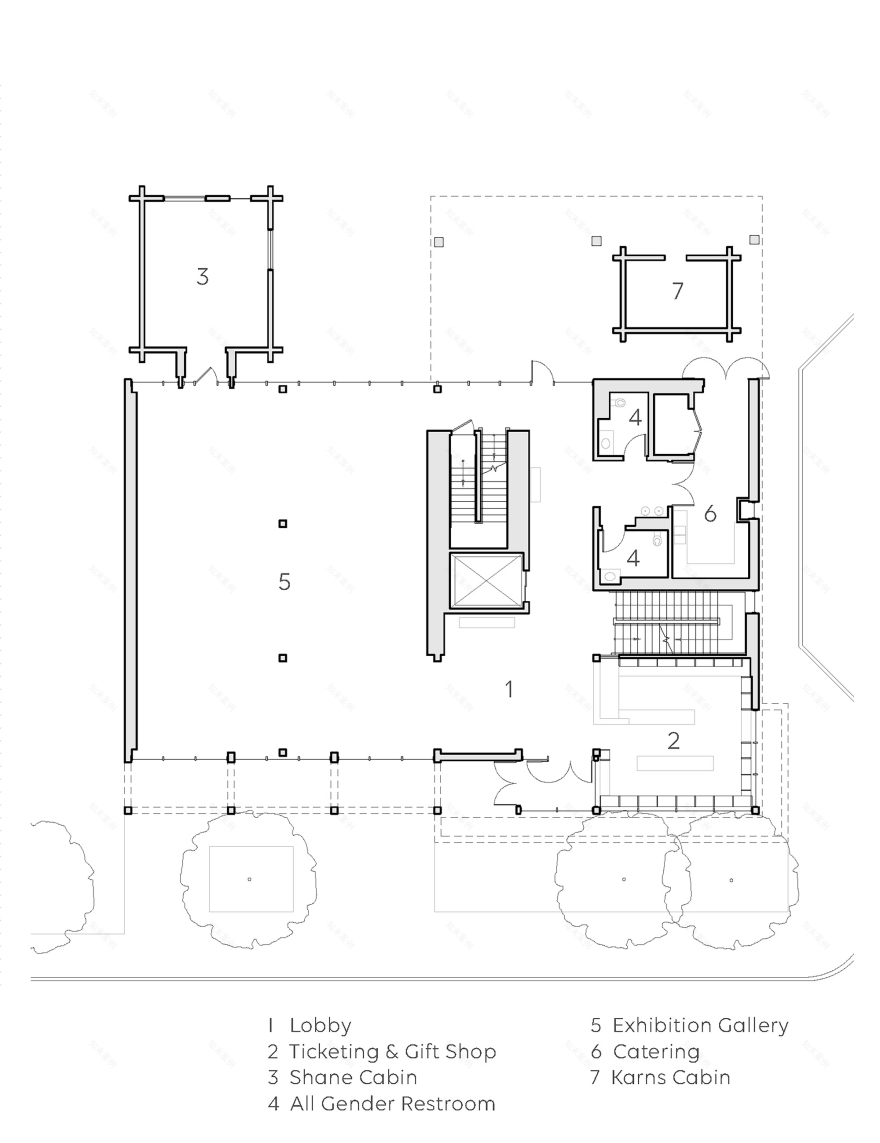
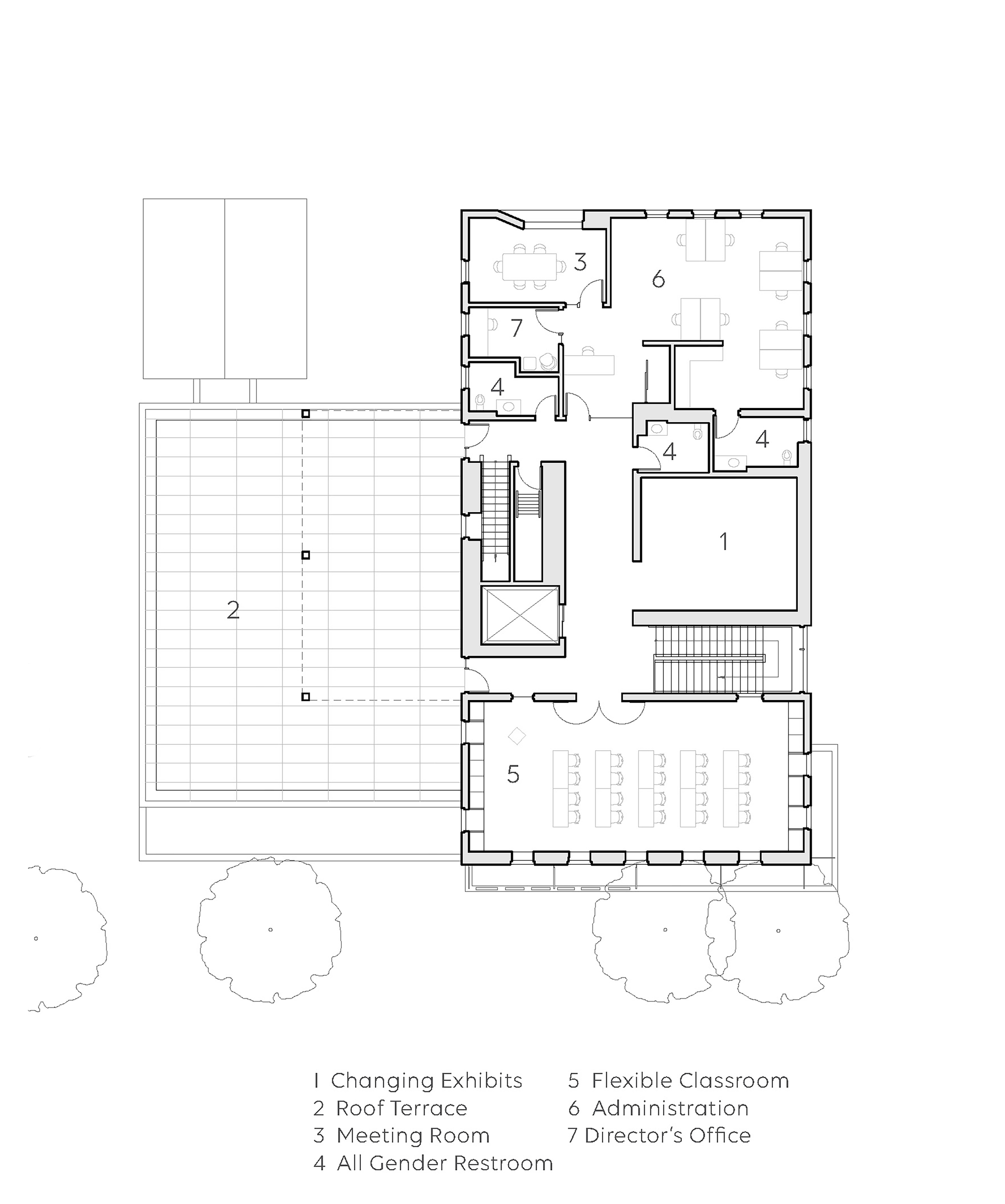
Text description provided by the architects. The Jackson Hole History Museum establishes a new site for History Jackson Hole (HJH) as a cultural destination and local fixture for education as well as community gathering. The campus effectively puts on display HJH's robust collection in a permanent home for the museum's interactive exhibits, educational programming and events, designed so that locals and visitors alike can form a meaningful connection to the region and those who have inhabited it for millennia. In total, the quarter-acre campus features the new three-story museum, two historic cabins and integrated outdoor space within a design framework that highlights the natural, cultural and architectural past of Jackson Hole while leveraging modern-day building performance and technology.
The campus is situated within a prominent, historic downtown Jackson block, partially protected by conservation easements and revered for its deep history, public greenspace and thriving local businesses. HGA worked closely with the HJH team to conduct a thorough community engagement process, communicating design and sustainability strategies early and often to build consensus across residents, indigenous communities and others. This stakeholder engagement informed various aspects of the design, particularly as it tells the comprehensive narrative of the history of Jackson. Furthermore, HJH's goal of preservation through sustainable design was also achieved as stakeholders and the design team prioritized ecological concerns throughout the project's course.
HGA's design of the new campus started with an evaluation of the existing museum which was dark, opaque and relatively closed off to the town. The final design achieves HJH's goal of opening the campus to the broader community with an inviting and transparent museum building. Exhibit areas have two glass walls—one linking to a new public park and one linking to the rest of downtown—so that passersby can see inside toward living history. The design prioritizes and maximizes interactivity for HJH and its visitors, with multiple flexible spaces for programs, events, conversations and presentations. A connection to the outdoors is achieved via a groundfloor patio that houses log cabins that have been integrated into the overall circulation path as well as a second-floor rooftop terrace for visitors to enjoy views of Snow King Mountain Resort and the surrounding rolling hillside. Visitors can also see through museum exhibit areas to the cabins outside.
Due to existing guidelines for the town square area, the collaborative design effort struck a delicate balance between contextual and contemporary design, integrating both the Western character and historic relevance of downtown Jackson alongside a modern museum reflecting Jackson Hole's present and future. Drawing from Jackson's signature Western aesthetic, the overall design of the new museum building mirrors typologies of legacy stores on the block with glassy ground floor frontage and punched windows on the second level. The museum's footprint holds its scale with a two-story town building across the street and shifts down to match more intimately scaled properties on its other side. The design also features a covered boardwalk in sync with iconic town boardwalks, seamlessly connecting the museum to the rest of the central square. A rustic materiality is achieved through warmth and character in materials, even down to rougher finishes on wood, where appropriate, warmer metals, woven textures and more. There is a nod to the Jackson "Old West" style, but through an authentic approach that feels both modern and timeless.
Project gallery
客服
消息
收藏
下载
最近




























