查看完整案例

收藏

下载
n2 大厦于 2024 年竣工,是一座 18 层的钢框架办公楼,位于伦敦市中心 SW1 的西敏市(The City of Westminster),靠近白金汉宫、西敏寺和国会大厦。这座建筑是 Lynch Architects 为英国开发商 Landsec 在维多利亚区设计的一系列项目之一,过去 18 年里,包括 2016 年的 Kings Gate 公寓楼(14 层,100 套公寓),这座石质公寓楼紧邻西敏市政厅(2010-2016);以及其邻近的 Zig Zag 大楼,一座 12 层的办公楼(2010-2015)。n2 本身是由两栋互补的建筑组成的一部分,另一半是邻近的 n3(计划于 2029 年开业)。它们将共同完成当地人所称的“老维多利亚”区域的改造,这一城市街区由乔治时代贝尔格雷维亚区最东端的杜克·约克酒吧(The Duke of York public house)和弗兰克·马查姆设计的维多利亚宫剧院(Victoria Palace Theatre,1911 年)构成。n2 和 n3 是一个非常复杂的城市拼图的最后组成部分,这一拼图包含了过去 20 年来该地区的重大交通基础设施建设,最终以维多利亚车站升级(2018 年)为终点,包括为维多利亚地铁站新建的票务大厅,该大厅位于 n3 所在的地点正下方,紧邻 n2 的南侧。
Completed in 2024, n2 is an 18-storey steel-framed office building situated in central London SW1, in The City of Westminster, close to Buckingham Palace, Westminster Abbey, and The Houses of Parliament. It is one of a series of projects that Lynch Architects have designed for the British developer Landsec at Victoria over the past 18 years, including the apartment building Kings Gate (2016), a 14-storey stone apartment building housing 100 flats sat beside Westminster City Hall (2010-16); and its neighbour, The Zig Zag Building, a 12-storey office building (2010-15). n2 itself is part of a pair, one half of two complementary buildings comprising also its neighbour n3 (which is planned to open in 2029). In tandem, they will complete what is known by locals as “Old Victoria”, a city block made up of The Duke of York public house – the eastern-most part of The Cubitt Brother’s Georgian Belgravia – and Frank Matcham’s Victoria Palace Theatre (1911). n2 and n3 are the final parts of a very complex urban jigsaw comprising a series of buildings resulting from major transport infrastructure work in the area over the past 20 years or so, culminating with The Victoria Station Upgrade (2018) comprising a new ticket hall for Victoria Tube station sat directly below the site for n3 to the immediate south of n2.
▼项目街景,street view of the project©Johan Dehlin
▼项目立面,facade of the project©Andy Stagg
周围地下基础设施的复杂性使得施工条件非常具有挑战性:n2 建于地铁隧道和两条污水管道之上,其中一条下水道需要从街道层全天候接入,因此基础的选址非常有限。支撑办公楼层的结构桁架仅在地块的四个位置延伸至地面,这些桁架由巨大的混凝土包覆钢结构构成。最大的桁架尺寸为 45 米×9.5 米,跨越建筑物的南侧面,并延伸至建筑的 1 楼部分,这里是大部分设备的所在地。这些桁架连接到 4 根深达 65 米的桩基,穿过众多地下隧道,深达伦敦的地下粘土层。钢桁架的设计使得接待大厅没有立柱。接待大厅内设有咖啡吧和休闲座位,且大面积的滑动门通向朝南和朝东的柱廊。在建筑底层,钢桁架位于现浇混凝土外壳内,其表面经过人工打磨,光滑如绸。
▼结构轴测,structure axonometric©Lynch Architects
The extent of subterranean infrastructure in the immediate area meant that site conditions were challenging: n2 sits above tube tunnels and two sewers, one of which requires 24-hour emergency access from street level, and foundation locations were therefore very restricted.
The structural truss supporting the office floors has been brought to ground along the edges of the plot in only four locations via gigantic concrete-clad steel trusses. The largest, 45m x 9.5m, spans the whole of the southern face of the building and also extends into the fabric of the building at 1st floor, where the majority of the plant is situated.
These trusses connect to 4 piles that thread in-between the plethora of underground tunnels, running 65m deep into the London clay. The steel trusses allows for a column free reception lobby. The lobby itself houses a coffee bar and informal seating with large sliding doors opening to the south and east facing colonnades.
At street level, the steel truss sits within an insitu cast concrete carapace, it’s surface ground down by hand until it is smooth to the touch.
▼支撑办公楼层的结构桁架,The structural truss supporting the office floors©Johan Dehlin
▼巨大的混凝土包覆钢结构,gigantic concrete-clad steel trusses©Andy Stagg
这些桁架形成了一条被大型混凝土 V 形柱支撑的公共通道。这座拱廊式的廊亭是一个混合体:它既是技术性、类型学性的城市遗物,又让人联想起战后米兰的重建项目。这种新旧融合的现代建筑解决方案本质上是具有市民特征的(而非军事工业或高科技特征)。特别的是,在西南角设计了一座花园,这是由新建通道坡道的起伏几何形状所决定的,坡道由 Muf 和 J&L Gibbons 设计。植被和长椅的引入为该区域创造了一个休息的地方,使这一必要空间变成了一种愉悦的体验。8 米高的柱廊有一个裸露的木质天花板,贯穿整个接待大厅。
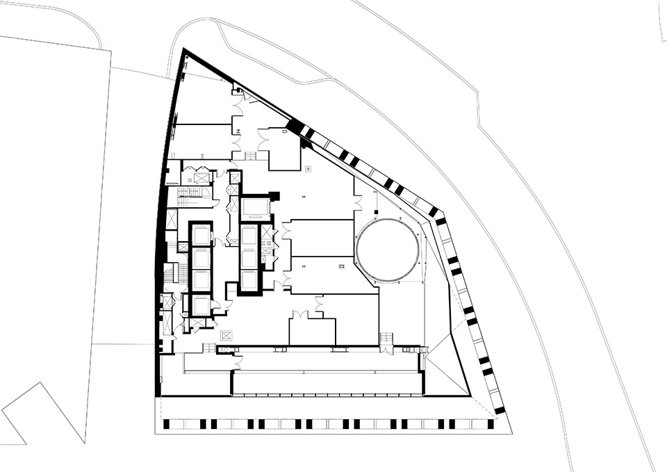
▼一层平面,ground floor plan©Lynch Architects
The truss creates a covered public thoroughfare made up of massive concrete V columns. This portico-loggia forms a hybrid: a technological-typological urban artefact reminiscent of the reconstruction projects of post-war Milan. This new-old solution to the problems of modern construction is fundamentally civic though (rather than military-industrial or Hi-Tech in character). Specifically, a garden is formed at the south-western corner as a consequence of the undulating geometry of a new access ramp, designed alongside Muf and J&L Gibbons. Planting and benches are introduced creating place to sit, turning a necessity into a pleasurable virtue. The 8m tall colonnade has an exposed timber ceiling that runs inside the lobby.
▼被大型混凝土 V 形柱支撑的公共通道
a covered public thoroughfare made up of massive concrete V columns©Rory Gaylor
▼拱廊式的廊亭,portico-loggia ©Andy Stagg
▼裸露的木质天花板,an exposed timber ceiling ©Andy Stagg
▼西南角形成了一座花园,a garden is formed at the south-western corner©Rory Gaylor
▼扶手细部,railing detail©Andy Stagg
▼立面细部,facade detail©Andy Stagg
木质天花板上设计有巨大的圆形天窗,位于入口大厅的西侧,提供了进入地下隧道的通道,也成为该空间的一个新的焦点——一个办公大厅向城市延伸的延续。混凝土核心与裸露的钢柱和梁配合,创造了高效且经济的结构。位于南侧立面 500 毫米厚的外部太阳遮阳板有节奏地框住了朝南的景观,同时限制了太阳辐射的进入。住户可以使用 15 层的共享俱乐部室和露台,墙面内饰和特别设计的定制门把手中又一次出现木材元素。每层办公楼都有户外空间,北侧有小型露台,可以俯瞰皇家公园和白金汉宫,较高层的露台则提供了伦敦的全景。
This timber soffit is punctuated by a large circular oculus situated to the west of the entrance lobby, necessary to provide access down into the tunnels below at all times, and forming a new focus to this space – an extension of the office lobby into the city.Concrete cores work in concert with exposed steel columns and beams, to create an efficient and economic structure.To the south, the rhythmic quality of the 500mm deep external solar-fins frame the view to the south whilst limiting solar gain.Occupants have access to a communal clubroom and terrace at Level 15, where timber reappears in the wall linings, and in the specially designed bespoke door handles.There is outdoor space on each office floor, with smaller terraces to the north overlooking the Royal Parks and Buckingham Palace, and larger terraces on the higher levels giving panoramic views across London.
▼木质天花板上设计有巨大的圆形天窗,This timber soffit is punctuated by a large circular oculus©Andy Stagg
▼圆形天窗夜景,large circular oculus at night©Andy Stagg
▼木质天花板延伸进室内空间,Wooden ceilings extend into the interior space©Rory Gaylor
▼办公空间,office space©Rory Gaylor
▼日照充足的办公空间,Well-lit office space©Andy Stagg
Lynch Architects 认为,今天建筑师的任务是持续修复和改善城市领域,正如美英建筑师尼夫·布朗(Neave Brown)的名言:“我不是在做住房…”,他们相信自己不仅仅在做办公楼和住宅,而是在“创造城市的一部分。”
Lynch Architects see the task of architects today as the ongoing repair and improvement of the civic realm, and like the American-English architect Neave Brown, who famously said that he “wasn’t doing housing…”, they believe that they aren’t just doing offices and housing, but making “part of a city.”
▼南侧的外部太阳遮阳板,external solar-fins frame©Rory Gaylor
n2 旨在理清伦敦维多利亚车站前广场上那些规模、时期、风格、材料和质量极为不同的建筑杂乱无章的局面。我们的目标是打造一个优雅而庄重的结构,调和周围建筑的“过高”和“过小”的对比,寻求一种看似毫不费力的统一感和与都市环境的和谐。——工作室创始人 Patrick Lynch 表示
N2 seeks to make sense of the mess of buildings of wildly differing scales, periods, styles, materials and quality that typify the forecourt of London’s Victoria Station. Our aim has been to craft a gracious and elegant structure that mediates between the ‘too tall’ and ‘too small in contrast’ character of its immediate neighbours, seeking a kind of effortless-seeming unity and urbane harmony. ——studio founder Patrick Lynch states
▼傍晚景象,view at dusk©Rory Gaylor
▼模型,model©Lynch Architects
▼细部模型,detail model©Lynch Architects
▼轴测图,axonometric©Lynch Architects
▼场地平面,site plan©Lynch Architects
▼地下用地限制,underground constraints©Lynch Architects
▼二层平面,first floor plan©Lynch Architects
▼三至十二层平面,level 3 to level 12 plan
©Lynch Architects
▼十三层平面,level 13 plan©Lynch Architects
▼十五层平面,level 15 plan©Lynch Architects
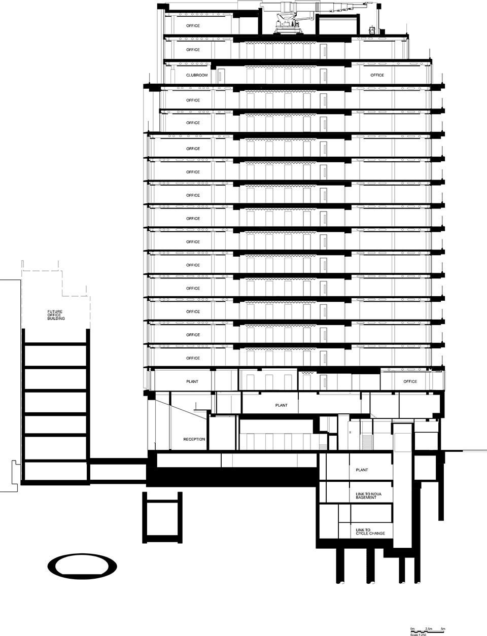
▼剖面,section©Lynch Architects
▼草图,sketch©Lynch Architects
Architect:Lynch Architects
Client:Landsec
Structural Engineer:Robert Bird Group
MEP Engineer and QS:Aecom
Landscape Architect:Muf architecture/art, J&L Gibbons
Project Manager:Gardiner & Theobald
Transport Engineer:Momentum Transport Consultancy
Facade Engineer:Thornton Tomasetti
Lighting Design:Studio Fractal
Planning Consultant:Gerald Eve
Townscape Consultant:Richard Coleman
Contractor:Mace
Contractor’s Architect:Veretec
Key Suppliers:J Coffey Construction (Concrete superstructure), William Hare (structural steelwork), Lonsdale (MEP installation ), BCL (Ceilings),Izé (Ironmongery),Sheldebouw (Facades),Modular Interiors, etc.
n2 is rated BREEAM Outstanding, and WELL Core certification Gold.
客服
消息
收藏
下载
最近





































