查看完整案例

收藏

下载
项目位于北京市中心西北方约 70 公里处的延庆区,业主租下一座现有的农村民房,并委托建筑师将其改造成为周末休闲放松的居所。
The project is located in Yanqing District, about 70 kilometers northwest of the center of Beijing. The owner rented an existing rural house and commissioned an architect to transform it into a weekend leisure and relaxation residence.
▼项目概览,Project Overview© 积木盒子建筑设计事务所
基地位于村子东侧,占地约 600 平米。南侧、北侧和西侧均为道路,东侧紧邻民房。院内原有建筑是北方典型农村坡屋顶砖瓦房,包括不同时期修建的八间北房和东侧的三间厢房。西侧是一排临时搭建的半开敞储物间。
The base is located on the east side of the village, covering an area of about 600 square meters. The south, north, and west sides are all roads, and the east side is adjacent to residential buildings. The original building in the courtyard is a typical rural sloping roof brick and tile house in the north, including eight north rooms built in different periods and three wing rooms on the east side. On the west side is a row of temporarily constructed semi open storage rooms.
▼原始场地,Original site © 积木盒子建筑设计事务所
▼概念草图,Conceptual sketch © 积木盒子建筑设计事务所
受限于改造成本较低,这次设计我们采用“微创手术”这种轻介入的方式——新置入的体块像是不同的“容器”,根据不同的功能属性被安置在院子不同的方位,来满足入口、居住和观景的需求。
Due to the low cost of renovation, we adopted a minimally invasive surgical approach in this design – the newly inserted blocks act as different “containers” and are placed in different directions of the yard according to their functional attributes to meet the needs of entrance, living, and viewing.
▼鸟瞰,Aerial view © 积木盒子建筑设计事务所
▼局部鸟瞰,Aerial view © 积木盒子建筑设计事务所
▼庭院向西视角,View from the courtyard towards the west © 积木盒子建筑设计事务所
▼东厢房和入口,East wing room and entrance © 积木盒子建筑设计事务所
▼嵌入室内的空间,Embedded indoor space © 积木盒子建筑设计事务所
入口空间
Entrance space
遵循北方四合院大门在东南的方位要求,在原有大门的位置放置了第一个盒子。同时将影壁、雨棚和台阶以现代的手法结合在一个体块内。
Following the southeast orientation requirement of the northern courtyard gate, the first box was placed in the original gate position. Simultaneously combining the screen wall, canopy, and steps in a modern manner within a single block.
▼主要出入口,Main entrance © 积木盒子建筑设计事务所
▼东厢房和入口,East wing room and entrance © 积木盒子建筑设计事务所
▼入口空间,Entrance space © 积木盒子建筑设计事务所
▼大门局部,Partial entrance © 积木盒子建筑设计事务所
庭院
Courtyard
庭院不仅是居住空间的延伸,更是一种生活态度。我们希望庭院能承载更多的生活和记忆。新置入的体量在扩展室内空间的同时,也形成了内观与外观的互成关系。内凹的空间不仅能遮风挡雨,同时也丰富了院内的空间层次。院内原有树木不再是孤立的存在,不仅让景观造型找到形式来源,同时也为在树下发生不同事件提供了舞台。
The courtyard is not only an extension of living space, but also a way of life attitude. We hope the courtyard can carry more life and memories. The newly added volume not only expands the indoor space, but also creates a symbiotic relationship between the interior and exterior. The concave space not only provides shelter from wind and rain, but also enriches the spatial hierarchy within the courtyard. The original trees in the courtyard are no longer isolated entities, not only providing a formal source for landscape design, but also providing a stage for different events to occur under the trees.
▼北房,North room © 积木盒子建筑设计事务所
▼露台与北房,Terrace and North Room © 积木盒子建筑设计事务所
▼庭院和远山,Courtyard and distant mountains © 积木盒子建筑设计事务所
▼露台看向庭院,Looking towards the courtyard from the terrace © 积木盒子建筑设计事务所
▼庭院向西看视角,View from the courtyard towards the west © 积木盒子建筑设计事务所
▼夕阳下的露台,Terrace under Sunset © 积木盒子建筑设计事务所
院内的露台是抽象的假山,走上露台的过程更像是“登山”。
The terrace inside the courtyard is an abstract rockery, and the process of walking up to the terrace is more like climbing a mountain.
▼庭院局部,Partial courtyard © 积木盒子建筑设计事务所
▼庭院夜景,Courtyard night view © 积木盒子建筑设计事务所
▼露台局部,Partial terrace © 积木盒子建筑设计事务所
▼露台与远山,Terrace and distant mountains © 积木盒子建筑设计事务所
内部空间 Internal Space 为了保证室内外风格的一致,模糊室内外的界限,内部空间延续了外部空间的风格和材料。
In order to ensure consistency in indoor and outdoor styles and blur the boundaries between indoor and outdoor spaces, the internal space continues the style and materials of the external space.
▼室内看向庭院,Indoor view towards the courtyard © 积木盒子建筑设计事务所
▼卧室局部,Partial bedroom © 积木盒子建筑设计事务所
▼局部,Partial © 积木盒子建筑设计事务所
▼总平面图,Master plan © 积木盒子建筑设计事务所
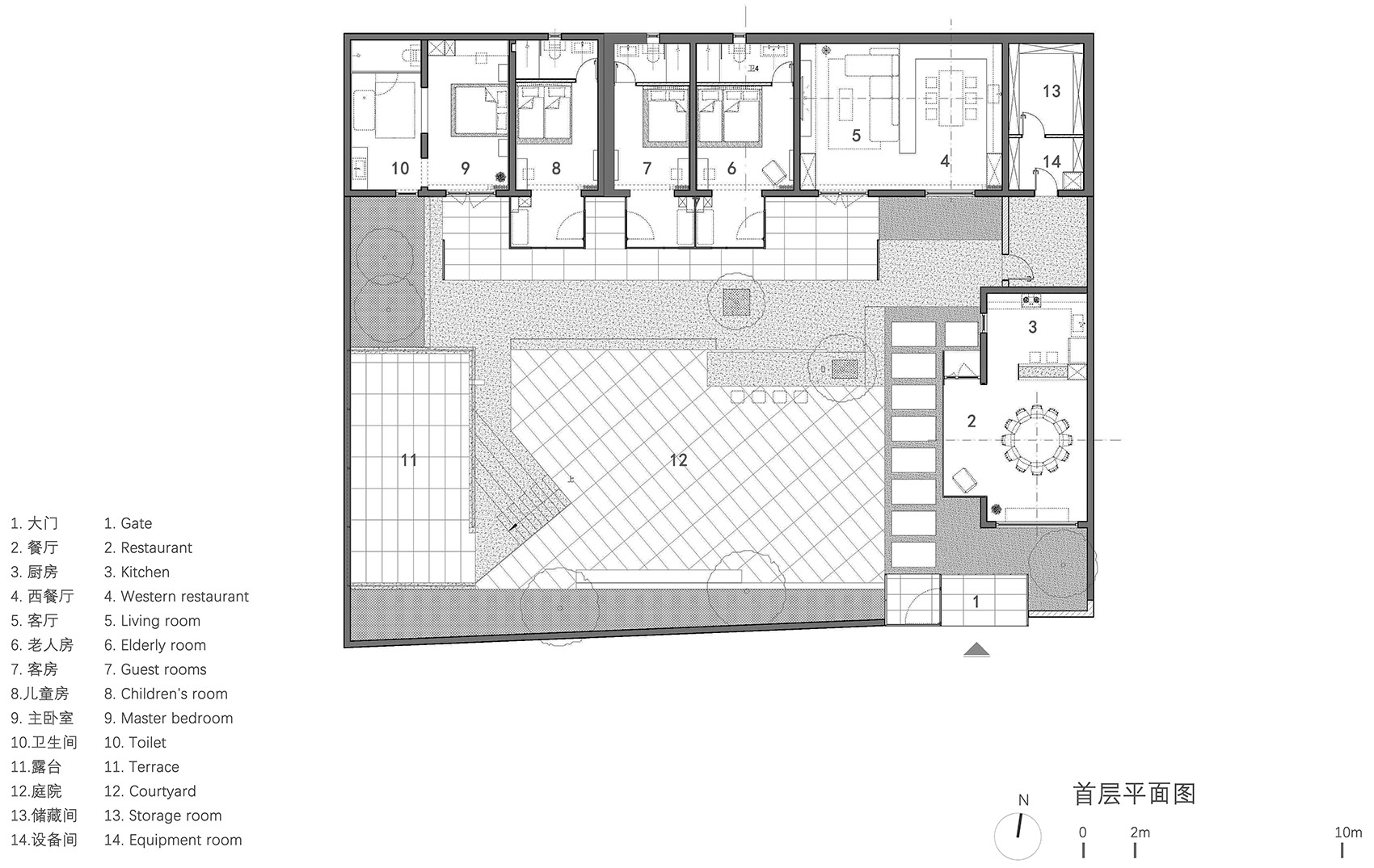
▼一层平面图,First floor plan © 积木盒子建筑设计事务所
▼屋顶平面图,Roof plan © 积木盒子建筑设计事务所
▼剖面图,Sections © 积木盒子建筑设计事务所
项目名称:延庆私宅
项目类型:建筑改造
设计方:积木盒子建筑设计事务所
项目设计:2023
完成年份:2024
设计团队:申明、马妍妃、白焱飞
项目地址:北京
建筑面积:310㎡
摄影版权:积木盒子建筑设计事务所
合作方:李根 (结构顾问)
材料:玻璃、铝板、砖
客服
消息
收藏
下载
最近



































