查看完整案例

收藏

下载
这个文化中心诞生的环境既壮丽又复杂。建筑坐拥 Saint-Jean-de-Luz 海湾的壮观景致,距离海湾仅 500 米。
The environment in which this cultural centre emerged is both magnificent and complex. The building enjoys splendid views of Saint-Jean-de-Luz Bay, only 500 metres away.
▼建筑外观,Exterior view© Eugeni Pons
▼立面,Facade© Eugeni Pons
▼立面近景,Facade closeview© Eugeni Pons
该建筑并非被视为一个单一整体,而是由一系列片段组成,每个片段承载着建筑规划中的不同功能。这种空间设计原则呼应了场地的尺度,使得建筑各部分的体量能够灵活调整,从而实现恰到好处的平衡。
The structure is not considered a single unit, but rather a series of fragments in which the different functions of the architectural programme are based. This spatial principle reflects the site’s dimensions. It made it possible to freely play around with the sizes of the building’s different parts and to reach the right balance.
▼室外休闲空间,Outdoor leisure space © Eugeni Pons
▼入口处,Entrance space© Eugeni Pons
▼首层大厅,Ground floor lobby© Eugeni Pons
▼通高的空间,Full-height space © Eugeni Pons
▼楼梯,Stairs© Eugeni Pons
一个中庭如同自然而然的特征,纵向贯穿于建筑的两部分之间:东侧是一座宽敞的剧院;西侧则是三层叠置的功能区,分别为音乐学校、剧场空间和舞蹈工作室。这个三层通高的空间赋予场所一种庄重感。中庭突显为中心的“心脏”,将建筑规划中的所有功能统一在一个集体结构之中,成为一个共享与共存的空间。自然光充盈其间,玻璃幕墙部分仿佛在邀请人们探索不同的空间。
An atrium stretches up, like a self-evident feature, between two parts: to its east, a vast theatre; to its west, three levels that contain superimposed sections – a music school, theatre rooms and dance studios. This triple height gives the place a noble aspect. The atrium stands out as the centre’s beating heart that unites all the functions of the architectural programme within a collective structure and a site for sharing – a centre for togetherness and coexistence. Natural light floods the interior. The glazed portions are invitations to discover the different spaces.
▼舞蹈工作室,Dance Studio © Eugeni Pons
▼音乐学校,Music School © Eugeni Pons
▼剧场,Theater
© Eugeni Pons
▼剧场舞台,Theater stage © Eugeni Pons
▼剧场观众席,Theater auditorium © Eugeni Pons
这座文化中心的设计旨在促进人与人之间的联系,并提供花园的优美景观。实际上,这座花园为文化中心增添了独特魅力,并将其完美呈现。室外空间中还设有一个小型露天剧场,而两间宽敞的集体活动室则开敞通向户外,形成了大气开放的布局。这种兼具简洁与精巧的布局方式使得整个场所以一种令人愉悦的方式紧凑而有序。
This place is designed to create bonds. And it offers beautiful views of its garden. Indeed, this garden embellishes the cultural centre, showcasing it wonderfully. A small open-air theatre has been made in this outdoor space and two large rooms for collective practice lead outside generously. The layout, at once simple and elaborate, has the advantage of making the whole place, organised in this particular way, pleasantly compact.
▼彩色化妆间,Dressing Room © Eugeni Pons
该文化中心在实用性与诗意表达之间达成了完美平衡。建筑的紧凑性确保了室内的流畅动线:在自然光充盈的走廊中,人们可以通过短距离的行进在各个空间之间自由穿梭。通过对空间的巧妙布局与光线的丰富运用,这座文化中心引导人们在其中探索旅行,突显其丰富多元的建筑功能与空间特质。
The centre combines practicality with poetic expression and the building’s density ensures wonderful fluidity inside: to get around the interior, you cover short distances in hallways bathed in natural light. With its arrangement of rooms, put together in an abundance of light, this centre invites you to journey through it and underlines the different aspects of its rich architectural programme.
▼夜览,Nightview© Eugeni Pons
▼项目区位,site plan© Dominique Coulon & Associés
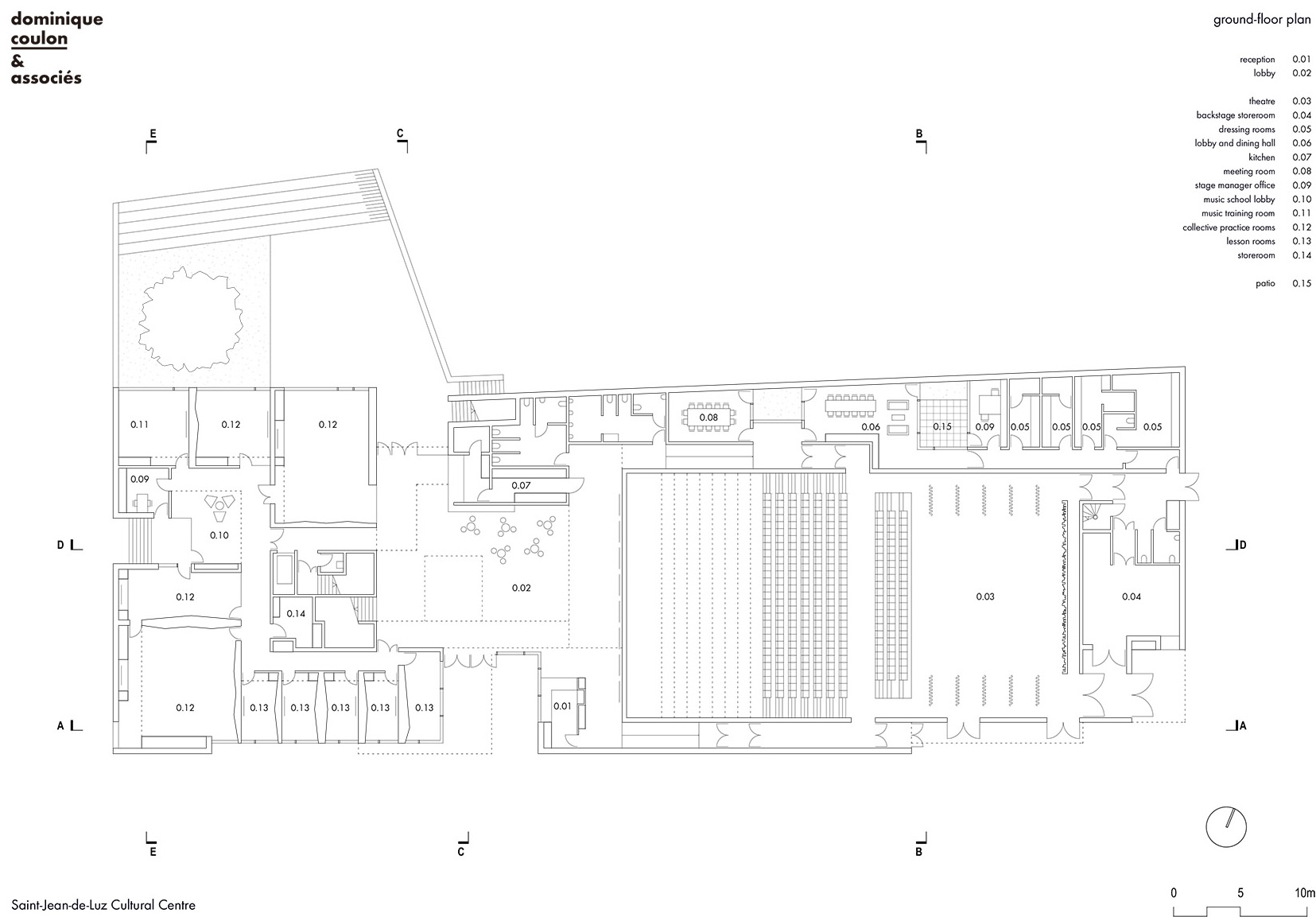
▼首层平面图,ground floor plan© Dominique Coulon & Associés
▼二层平面图,first floor plan© Dominique Coulon & Associés
▼三层平面图,second floor plan© Dominique Coulon & Associés
▼立面图,elevation© Dominique Coulon & Associés
▼剖面图,section© Dominique Coulon & Associés
Contracting owner: Saint-Jean-de-Luz Town Council
Project manager: Dominique Coulon & Associés
Architect: Dominique Coulon
Project supervision: Jean Scherer
Worksite supervision: Jean Scherer, Hugo Maurice
Engineering consulting firm (Structure): Batiserf Ingénierie
Engineering consulting firm (Electricity): BET Gilbert Jost
Engineering consulting firm (Fluids): Solares Bauen
Economics: E3 Économie
Acoustics: ESP-DB Silence
Roads and utilities infrastructure: Lollier Ingénierie
Scenographic design: Changement à Vue
Programme: theatre (900m2of usable floor area), music school (450m2of usable floor area), associations space (660m2of usable floor area), reception space (360m2of usable floor area)
Location: 12 rue Duconte, 64500 Saint-Jean-de-Luz, France
Floor area: 3,250m2
Tanka Theatre floor area:830m2
Open-air theatre seating capacity:150
Floor area of west section for associations: 660m2
Cost of work: €8,356,263 excl. VAT
Schedule
Competition: April 2018
Studies: October 2018 to June 2020
Project execution: July 2021 to July 2023
Firms: Sobamat (road earthworks), Etchart Construction (special foundations, structural works, metal frameworks, masonry, screeds, mineral floor finishes), SAE (watertightness), Labastère 64 (external door and window frames, aluminium, glazing), Aquitaine Rénovation Peinture (external paintwork, external insulation, outdoor scaffolding), Goyty (partitioning, lining, ceilings), Etchenausia (internal door and window frames, wood, wood-strip flooring, furniture, signage), Housset (locks), Buso (facing, tiling, stone), Pau Peintures (glued-down floors, indoor paintwork, indoor scaffolding, cleaning), CFA (lift, hoist), INEO Aquitaine (electrics – strong and weak currents), Bobion et Joanin (heating, ventilation, plumbing, sanitary installations), Dubos (outdoor underground networks), Leblanc Scénique (stage metal structures, stage fabric hangings), Tambe (stage machines), VTI (stage woodwork), Master Industrie (seats and terraced seating structures), DCI Event (stage networks and materials), Mateo Équipements (kitchen fittings and installations)
Photographer: Eugeni Pons
客服
消息
收藏
下载
最近








































