查看完整案例

收藏

下载
Fitzroy砖砌小住宅,由Kerry Kounnapis建筑事务所(KKAP)设计,精心回应了墨尔本的住房危机。项目巧妙平衡了经济制约与大胆的建筑理念,提供了紧凑而可持续的城市居住范式。
Fitzroy Brick Studio House by Kerry Kounnapis Architecture Practice (KKAP) is a carefully considered response to the city’s housing crisis. Balancing economic constraints with bold architectural ideas, the project offers a model for compact, sustainable urban living.
▼街景,street view © Common Room Images
Fitzroy,作为墨尔本首个规划的郊区,一直是许多与社区保持紧密联系的家庭的居住地。然而,随着住房危机的加剧和房地产市场对可负担性的影响,越来越多的人不得不向更远的地方寻求住所。这个项目提供了一个替代方案——在备受青睐的市中心郊区打造一个设计精巧的小型住宅。
Fitzroy, Melbourne’s first planned suburb, has long been home to families who maintain strong ties to the area and its community. However, as the housing crisis worsens and the real estate market continues to impact affordability, many are forced to look further afield. This project presents an alternative – creating a well-designed, small-scale residence within a highly desirable inner-city suburb.
▼沿街入口,entrance from the street © Common Room Images
Fitzroy砖砌小住宅位于一座双前院维多利亚式排屋的后部,取代了废弃的车库,创造出一个紧凑且功能齐全的住宅。新住宅通过后巷进入,设有独立入口和私人砖砌庭院,既确保隐私,又与周围的城市环境相连。
▼轴测图,axonometric drawing © KKAP
Located at the rear of a double-fronted Victorian terrace, Fitzroy Brick Studio House replaces a disused garage with a compact yet functional residence. Accessed via a rear laneway, the new dwelling features its own independent entry and a private bricked courtyard, ensuring both privacy and connection to its urban surroundings.
▼庭院立面,courtyard facade © Common Room Images
KKAP的创始人Kerry Kounnapis表示:“该项目展示了如何将规划法规、创意与对环境的深刻理解结合,创造出具有韧性的建筑回应。新建筑形式巧妙融入巷道,既回应周围环境,又提供了对迫切问题的现代解决方案。”
“The project is an example of how planning laws, imagination, and a deep understanding of context can come together to create a robust architectural response,” says KKAP director Kerry Kounnapis. “The new form sits comfortably within the laneway, responding sensitively to its surrounds while offering a contemporary solution to a pressing issue.”
▼外观细部,details of exterior © Common Room Images
建筑结构使用了压制米色砖、俄勒冈木材和镀锌钢材,注重耐用性和低维护性,这在动态且有时混乱的巷道环境中尤为重要。带有间隙的砖砌屏风既能过滤光线,又能保持隐私,增强了室内体验,并改善了建筑与邻里之间的互动。
Through the use of pressed beige brick, Oregon timber, and galvanized steel, the structure is designed for durability and low maintenance – an intentional choice given the dynamic and sometimes chaotic nature of laneway living. The use of hit-and-miss brick screening allows for filtered light while maintaining privacy, enhancing both the interior experience and the building’s relationship with its neighbours.
▼室内概览,overall of interior © Common Room Images
东南角的烟囱形状设计具有双重功能:“功能上,背后的可操作玻璃窗能够排出热空气,起到热烟囱的作用。”Kounnapis解释道,“诗意上,它呼应了Fitzroy维多利亚式排屋常见的砖烟囱,成为访客眼中的标志性符号。”
A distinctive chimney-like corner on the northeast serves a dual purpose: “Functionally, the operable glazing behind allows for hot air to be drawn out, acting as a thermal chimney,” explains Kounnapis. “Poetically, it references the brick chimneys so common in Fitzroy’s Victorian terraces, becoming a recognisable marker for visitors.”
▼室内细部,details of interior © Common Room Images
Fitzroy砖砌小住宅不仅是一个精心设计的住所,更是面对日益严峻的住房危机时,对市中心生活的一种前瞻性解决方案。通过创新设计,KKAP展示了如何通过精细的建筑思维,推动城市住宅的未来发展。
Fitzroy Brick Studio House is more than just a well-crafted home – it is a forward-thinking solution to inner-city living amid shifting economic realities. By addressing the housing crisis with innovative design, KKAP demonstrates how thoughtful architecture can play a role in shaping the future of urban dwellings.
▼草模,models © Studio Tekni
▼模型,model © Studio Tekni
▼区位图,location © KKAP
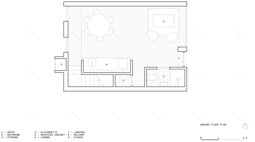
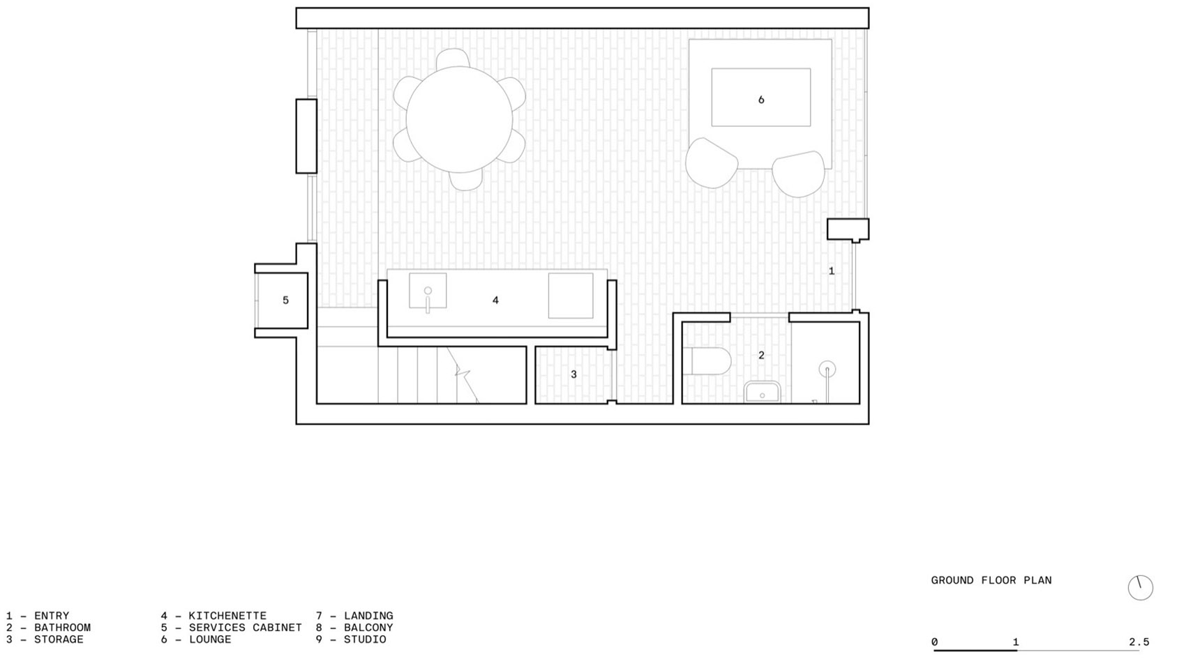
▼底层平面图,ground floor plan © KKAP
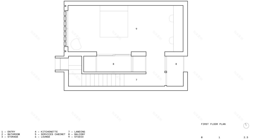
▼二层平面图,upper floor plan © KKAP
▼立面图,elevations © KKAP
客服
消息
收藏
下载
最近



























