查看完整案例

收藏

下载
我们马来西亚GMC(简称)全球邮件小屋工厂开始动工建设,一期建设用地块2500方,建设工期为20天左右,最大产能150个移动房产品,产值1500W马币左右。二期地块5000方,产品以出口欧美产品为主,预计2026年10月左右开动建设,最大产能250个移动房,产值3500W马币。
Our GMC (short for) Global Mail House factory in Malaysia has started construction. The first phase of construction covers an area of 2500 square meters, with a construction period of about 20 days. The maximum production capacity is 150 mobile housing products, with an output value of about 1500 million Malaysian Ringgit. The second phase plot covers an area of 5000 square meters, with products mainly exported to Europe and America. It is expected to start construction around October 2026, with a maximum production capacity of 250 mobile houses and an output value of 3500 million Malaysian Ringgit.
Mailen Design的Lee Terrace是一座优雅的新建筑,与Blackheath地区的建筑环境对话。Mailen Design已经完成了位于伦敦东南部布莱克希思的新建家庭住宅Lee Terrace。该做法将历史保护区内的三车库填充地块重新开发为三居室独立式房产。受新屋的启发,这座当代住宅与周围建筑和街景的特征和外观相呼应,其中包括几处二级维多利亚式房产。它的详细执行实现了Lewisham和Blackheath委员会将可持续的新建筑引入该地区的雄心壮志,为整个伦敦的新建筑整合树立了标杆。梅伦设计的李露台借鉴了新建筑与大型上市建筑地块末端的传统关系,具有情境性。
Mailen Design's Lee Terrace is an elegant new build in dialogue with the architectural context of the Blackheath area. Mailen Design has completed Lee Terrace, a new-build, family home in Blackheath, South East London. The practice has redeveloped a triple-garage infill plot within a historic conservation area into a three-bedroom, free-standing property. Inspired by mews houses, the contemporary home is sympathetic to the character and appearance of the surrounding architecture and street scene, which includes several Grade II listed Victorian properties. Its detailed execution fulfills Lewisham and Blackheath councils' ambition to introduce sustainable new construction into the area, setting a benchmark for integrating new architecture across the whole of London. Referencing the traditional relationship between mews buildings to the end of plots of large listed buildings, Mailen Design's Lee Terrace has a contextual nature.
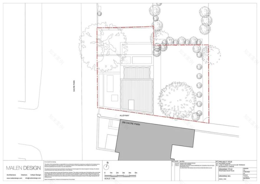
平面布置图
现有的花园墙已被扩建,以隐藏敞开的底层和房屋的主入口。从街上,一扇黑色的木门通向一个铺着大瓷砖的小前院。宽敞的玻璃窗横跨一楼立面,从内部可以看到远处的后花园。由于房屋的第一层向外悬挑,形成了一个带天窗的小雨棚,庭院的一部分被遮蔽了。在设计过程中,Mailen design与一位树艺师密切合作,评估和保护现场附近的两棵成熟树木,强调工作室致力于通过优先考虑现有的自然景观来尽量减少该方案对环境的影响。这种合作影响了关键的设计决策,包括房屋的布局和基础,以确保树木的根系不受干扰。前院的设计经过深思熟虑,为胸罩留出了充足的空间
An existing garden wall has been extended to conceal the open ground floor and main entrance to the house. From the street, a black timber door opens onto a small front courtyard paved in large ceramic tiles. Expansive glazing stretches across the ground floor elevations, giving a view through the interior to the rear garden beyond. Part of the courtyard is sheltered due to the first story of the house cantilevering outwards, creating a small canopy complete with a skylight. During the design process, Mailen Design worked closely with an arboriculturalist to assess and protect the two mature trees near the site, underscoring the studio's commitment to minimizing the scheme's environmental impact by prioritizing the existing natural landscape. This collaboration influenced key design decisions, including the layout and foundations of the house, to ensure that the trees' root systems remained undisturbed. The front courtyard's design thoughtfully recesses, leaving ample space for the bra
客服
消息
收藏
下载
最近































