查看完整案例

收藏

下载
这座房屋位于索托格兰德高尔夫球场前,设计布局让我们体验到地面和延伸至其上的屋顶之间的阴影。宽大的屋顶悬挑,不仅为房屋遮挡了强烈的加的斯阳光,还能有效抵御来自格拉萨莱马山脉的丰沛降雨——这是伊比利亚半岛降水量最多的地方。
©Jesús Orrico
Located in front of the Sotogrande golf course, the layout of this house invites us to experience the shadow between the ground plane and the roof that extends over it. A generous roof cantilever that not only offers shelter from the intense sun of Cadiz, but also protects from the copious rains that descend from the Sierra de Grazalema, the place with the highest rainfall in the Iberian Peninsula.
▼项目概览,overview of the project©Fernando Guerra
▼项目鸟瞰,aerial view of the project©Fernando Guerra
▼建筑外观,exterior of the building©Fernando Guerra
▼巨大的屋顶挑檐,overhang cantilever©Fernando Guerra
▼高低错落的景观,Landscapes of varying heights©Fernando Guerra
建筑的深处形成了一个木质体量,为房间提供了必要的隐私,同时也为每个角落带来温暖。四条边界定义了房屋的空间感:地面平面、建筑悬挑屋顶投下的阴影、能够高效调节室内气候的玻璃,以及最终增添温馨氛围的木质界限。
In the deep interior of the building, a wooden volume is generated, giving the rooms the necessary privacy while providing the desired warmth in every corner. Four different limits emerge that define the spatiality of the house: the ground plane, the shadow generated by the architectural cantilever, the glass that allows efficient climatic conditioning of the interior, and finally, the cozy limit of the wood.
▼边界定义了房屋的空间感,different limits emerge that define the spatiality of the house©Fernando Guerra
▼四条边界定义了房屋的空间感,Four different limits emerge that define the spatiality of the house©Fernando Guerra
▼建筑内部的木质体量,wooden volume inside the house©Fernando Guerra
▼界定空间的玻璃边界,the glass boundary that defines the space©Fernando Guerra
▼界定空间的玻璃边界,the glass boundary that defines the space©Fernando Guerra
房屋的入口位于上方的街道,这一战略位置提供了水面和周围景观的绝佳视角。屋顶的设计起到了热隔离和声学隔音的作用。水层调节建筑的温度,白天吸热,夜间缓慢释放,减少了对供暖和空调的需求。
Access to the house is from the upper street, a strategic point that offers a privileged view of the water mirror and the landscape. This feature in the roof works as thermal and acoustic insulation. The layer of water regulates the temperature of the building, works as an insulator, absorbs heat during the day and slowly releases it at night, reducing the need for heating and air conditioning.
▼周围景观和水景的绝佳视角,offers a privileged view of the water mirror and the landscape©Fernando Guerra
▼周围景观的绝佳视角,offers a privileged view of the landscape©Fernando Guerra
▼厨房视角,kitchen view©Fernando Guerra
▼走廊视角,corridor view©Fernando Guerra
▼卧室视角,bedroom view©Fernando Guerra
房屋的一个要求是使用温暖色调的材料。在内部,紧凑的空间通过一个中央交通核心进行布局,核心部分包含天窗,为中央空间提供自然光照,同时通向上方的水面。
One of the requirements of the house was that the materials used in the house had a warm tone. Internally, the compact program is distributed through a central communication core that encompasses the skylights that illuminate the central spaces and allow access to the upper water mirror.
▼客厅的温暖的氛围,living room with warm atmosphere©Fernando Guerra
▼客厅的温暖的氛围,living room with warm atmosphere©Fernando Guerra
▼厨房的温暖的氛围,kitchen with warm atmosphere©Fernando Guerra
▼厨房的温暖的氛围,kitchen with warm atmosphere©Fernando Guerra
屋顶平面和地面经过精心设计,形成了一个遮蔽的入口,既能引导人们进入,又有一个延伸至高尔夫球场的无边泳池。设计的目标是尽可能减少对环境的影响,在两个平面之间生活,带来在索托格兰德体验栖居阴影的简单与宁静。
The roof planes and the ground level plane are carefully moved to generate a covered access that invites to enter, as well as an endless pool that extends over the golf course. The aim is to have the minimum impact on the environment, to live between two planes, promoting the experience of something as simple as an inhabited shadow in Sotogrande.
▼傍晚景象,view at dusk©Fernando Guerra
▼傍晚灯光,lights at dusk©Fernando Guerra
▼夜景,night view©Fernando Guerra
▼夜景鸟瞰,aerial view at night©Fernando Guerra
▼模型,model©Fran Silvestre Arquitectos
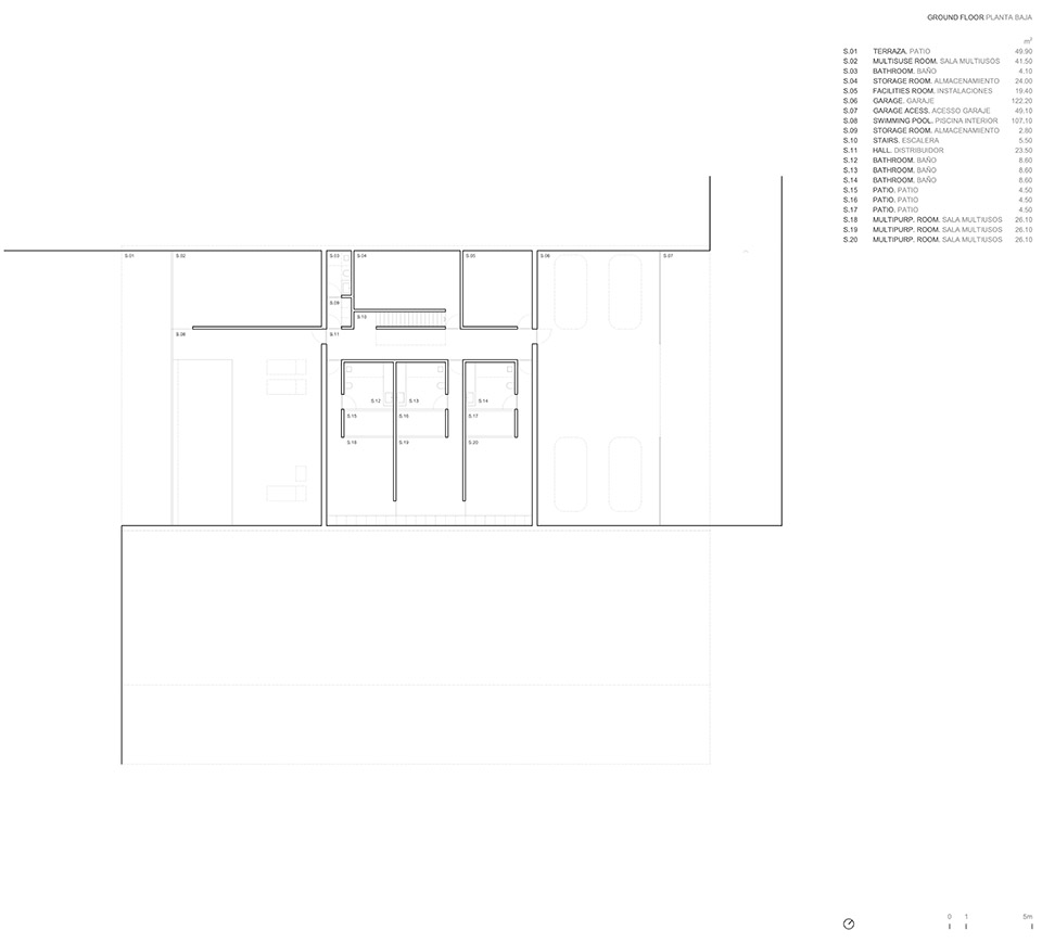
▼一层平面,ground floor plan©Fran Silvestre Arquitectos
▼二层平面,first floor plan©Fran Silvestre Arquitectos
▼剖面,section©Fran Silvestre Arquitectos
Architecture: Fran Silvestre Arquitectos
Project Team:
Fran Silvestre | Principal In Charge
Carlos Lucas | Principal In Charge
Paco Chinesta | Principal In Charge
Neus Roso | Principal In Charge
Interior Design: Alfaro Hofmann
Building Engineer Consultants: Agustín Jiménez Suárez
Structural Engineers: Estructuras Singulares
Project Manager: Adán Bolaños
Photography: Fernando Guerra
Video: Jesús Orrico
Collaborators María Masià | Collaborating Architect
Pablo Camarasa | Collaborating Architect
Ricardo Candela | Collaborating Architect
Estefania Soriano | Collaborating Architect
Sevak Asatrián | Collaborating Architect
Andrea Baldo | Collaborating Architect
Angelo Brollo | Collaborating Architect
Paloma Feng | | Collaborating Architect
Javi Herrero | Collaborating Architect
Gino Brollo | Collaborating Architect
Facundo Castro | Collaborating Architect
Anna Alfanjarín | Collaborating Architect
Laura Bueno | Collaborating Architect
Toni Cremades | Collaborating Architect
Susana León | Collaborating Architect
David Cirocchi | Collaborating Architect
Nuria Doménech | Collaborating Architect
Andrea Raga | Collaborating Architect
Olga Martín | Collaborating Architect
Víctor González | Collaborating Architect
Pepe Llop | Collaborating Architect
Alberto Bianchi | Collaborating Architect
Lucía Domingo | Collaborating Architect
Pablo Simò | Collaborating Architect
Andrea Blasco | Collaborating Architect
Laura Palacio | Collaborating Architect
Carlos Perez | Collaborating Architect
Jovita Cortijo | Collaborating Architect
Claudia Escorcia | Collaborating Architect
Ana Bono | Collaborating Architect
Andrea García | Collaborating Architect
Diana Murcia | Collaborating Architect
Fran Ayala | Collaborating Architect
Ana De Pablo | Financial & Administration Dept. Director
Sara Atienza | Marketing & Pr Dept. Director
José María Ibañez | Business Developer Ccg Y México
Valeria Fernandini | Financial Department
Sandra Mazcuñán | Management Department
Localización: Sotogrande
Superficie Construida: 802 M2
Superficie De Parcela: 3520 M2
General Contractor: Mar State Construction
Tipología De Producto: Vivienda Unifamiliar
Facilities :Air Conditioning Aerothermal, Radiant Floor, Fan Coil.
Mechanisms Mechanisms Jung
Lighting False Ceiling Recesses. Linear Luminaire
Finishes:
Interior Flooring Porcelanosa. Porcelain Tile 120×120 Mod. Nantes Limestone
Exterior And Pool Porcelanosa. Porcelain 120×120 Mod. Nantes Limestone
Coatings Lacquered Wood Paneling. Local Carpenter.
Laminated Wood Paneling. Local Carpenter.
Solid Surface Creations Parma
Carpentry And Locksmithing Carp. Interior Custom Made Wood Carpentry. Local Carpenter
Interior Doors Sensem. Custom-Made Pivot Doors
Exterior Carp. Carpintería Metálica Cacela Marín S.L.
Furniture Hamilton 2 Sofa Nattè Finish: 01 Bianco Minotti
Hamilton 1 Sofa Nattè Finish: 01 Bianco Minotti
Hope Side Table Matt Stone Grey Finish Minotti
Leger Side Table Minotti
Yang Ottoman Nattè Finish: 01 Bianco Without Upholstery Upper Cambre. Completely Smooth Minotti
Linha Fina Table Palissander Finish Santos Minotti
Hamilton Sofa Shibuya 08 Moka Finish Minotti
Hamilton 3 Sofa Nattè Finish: 01 Bianco Minotti
Atollo Vetro Lamp. Oluce
Tab F Led 2700k Floor Lamp By Flos
Aphrodite Sculpture. Fran Silvestre Arquitectos
The Swivel Chair – Vipp452 Desk Chair. Vipp
Viccarbe Cup Stools
Bathrooms Sanitary Roca Inspira Round White Wall Hung Toilet
Roca In-Wash In-Tank Toilet
Carpentry Custom Made Furniture In Lacquered Mdf
Kitchen Furniture Bulthaup
Household Appliances Siemens Oven
Show Cooking. Bulthaup
客服
消息
收藏
下载
最近






























































































