知末
知末
创作上传
VIP
收藏下载
登录 | 注册有礼

住宅别墅房间及浴室改造设计

2025/02/27 06:32:57
查看完整案例
微信扫一扫
收藏
下载
翻译
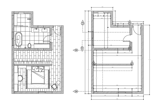
Type of project : residential (villa)
Project description: Redesigning a room and bathroom in a residential villa
Users: who own the villa
Plans and  Executive drawings :
住宅别墅房间及浴室改造设计-4
住宅别墅房间及浴室改造设计-5
住宅别墅房间及浴室改造设计-6
住宅别墅房间及浴室改造设计-7
住宅别墅房间及浴室改造设计-8
住宅别墅房间及浴室改造设计-9
住宅别墅房间及浴室改造设计-10
3D SHOTS:
住宅别墅房间及浴室改造设计-12
住宅别墅房间及浴室改造设计-13
住宅别墅房间及浴室改造设计-14
南京喵熊网络科技有限公司 苏ICP备18050492号-4知末 © 2018—2020 . All photos and trademark graphics are copyrighted by their owners.增值电信业务经营许可证(ICP)苏B2-20201444苏公网安备 32011302321234号
客服
消息
收藏
下载
最近