查看完整案例

收藏

下载
17 Cinco Zero 大楼位于亚马逊州贝伦市的传统佩德雷拉社区,巴拉州作家埃内达·德·莫赖斯曾将其称为“桑巴与爱的社区”,这一名称源自该地区历史悠久的狂欢节庆祝活动。该项目旨在实现实用性与高效性,采用低成本的销售标准,同时在保证质量和独特美学的基础上进行设计。
©Júlio Lobo
The 17 Cinco Zero Building is located in Belém, in the Amazon, in the traditional neighborhood of Pedreira, named by the Pará writer Eneida de Moraes as the “neighborhood of samba and love,” in reference to the Carnival celebrations that mark its history. The project was designed to be practical and efficient, with a low-cost sales standard, without compromising quality and a distinctive aesthetic.
▼项目概览
overview of the project
©Victor Estácio e Júlio Lobo
▼项目鸟瞰,aerial view of the project©Victor Estácio e Júlio Lobo
大厦占地 590 平方米,其中一个主要挑战是如何在市政法规的限制下,最大化建筑的开发潜力,从而使项目在经济上具有可行性。大厦包括一层底楼、两层停车场、九层标准住宅楼层以及一个屋顶休闲区。共有 36 个公寓,每层 4 个单元:其中两间为两居室,一间为一居室,一间为三居室。所有公寓均配有一个停车位,符合相关法律要求。
Occupying a 590m² plot, one of the main challenges of the project was maximizing its construction potential within the limits of municipal legislation to make the development economically viable. The building consists of a ground floor, two parking levels, nine standard floors, and a leisure area on the rooftop. There are 36 apartments, distributed in four units per floor: two with two bedrooms, one with one bedroom, and one with three bedrooms. All apartments have a parking space, as required by law.
▼项目街景,street view of the project©Victor Estácio e Júlio Lobo
项目的构思分为两个部分:
第一阶段是经济可行性,重点是平面图,采用市场标准的计算工具进行开发;
第二阶段是大量的立面研究,采用传统方法,使用钢笔和描图纸进行创作,力求达到手绘图的速度和轻便。
The project was conceived in two parts: the economic feasibility, which focused on the floor plans and was developed using market-standard computational tools, while the second stage involved numerous facade studies, created in an old-fashioned way, using pens and tracing paper, aiming for the speed and lightness of freehand drawing.
▼项目街景,street view of the project©Victor Estácio e Júlio Lobo
停车层的外立面采用威尼斯玻璃砖,巧妙设计以确保自然采光和通风。建筑还配备了自然空气更新系统,并通过格栅增强地面的透水性,允许空气流通,雨水也能在底层、第一层和第二层之间流动,从而改善这些区域的热舒适性。
The exterior of the parking levels was designed with Venetian glass bricks, strategically positioned to ensure natural lighting and ventilation. The building also features a natural air renewal system and ground permeability through grates that allow air circulation and rainwater flow between the ground floor, first, and second floors, improving the thermal comfort in these areas.
▼停车层的外立面采用威尼斯玻璃砖
The exterior of the parking levels was designed with Venetian glass bricks©Victor Estácio e Júlio Lobo
建筑外观设计以方块的运动感为特色,赋予外立面独特的个性。然而,标准楼层的平面布局在所有楼层中保持一致,唯一的区别是 01 号和 03 号立面的窗户,沿着方块的运动方向排列。这一设计不仅使建筑实现标准化,简化了施工过程,也赋予建筑独特的动感效果,所有这些效果仅通过阳台的细节来体现。
The building’s architecture stands out for the sensation of moving cubes, giving personality to the façade. However, the standard floor plan is repeated identically on all floors, except for the windows on Facade 01 and 03, which follow the movement of the cubes. This allowed for standardization and, consequently, ease of construction. The movement effect is achieved solely through the detail of the balconies.
▼通过阳台的细节赋予建筑独特的动感效果,
the movement effect is achieved solely through the detail of the balconies©Victor Estácio e Júlio Lobo
外墙采用 10×10 厘米的瓷砖,既便于安装,又能抵御该地区的暴雨,还能唤起人们对这座以丰富的 18 和 19 世纪瓷砖工艺而闻名的城市的历史渊源的回忆。
The facade is clad with 10×10 cm tiles, which facilitate installation and provide protection against the region’s heavy rains and evoke the historical roots of the city, known for its rich 18th and 19th-century tilework.
▼外墙局部,facade©Victor Estácio e Júlio Lobo
屋顶上的休闲区包括一个游泳池、烧烤架和一个多功能厅,还可以 360°饱览城市美景。城市中心的建筑与郊区的小型建筑和环境保护区形成鲜明对比,加强了项目与城市和自然环境的联系。
On the rooftop, the leisure area includes a pool, barbecue grill, and a multipurpose room, as well as a 360° view of the city. The view contrasts the urban center, with its buildings, and the outskirts, with small-scale constructions and environmental preservation areas, reinforcing the project’s connection to its urban and natural context.
▼屋顶的休息区,the leisure area on the rooftop©Victor Estácio e Júlio Lobo
▼饱览城市美景,enjoy a 360° view of the city©Victor Estácio e Júlio Lobo
▼夜景,night view©Victor Estácio e Júlio Lobo
▼场地平面,site plan©Ari Arquitetos
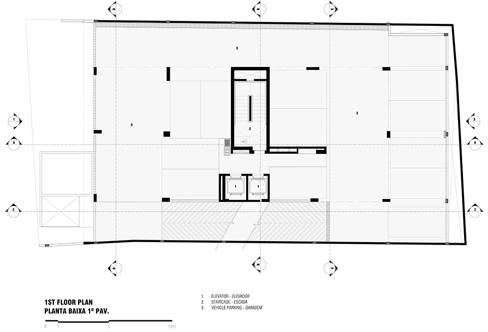
▼一层平面,ground floor plan©Ari Arquitetos
▼二层平面,first floor plan©Ari Arquitetos
▼三层平面,second floor plan©Ari Arquitetos
▼住宅一层平面,1st homefloor plan©Ari Arquitetos
▼住宅二层平面,2nd home floor plan©Ari Arquitetos
▼住宅三层平面,3th home floor plan©Ari Arquitetos
▼住宅四层平面,4th home floor plan©Ari Arquitetos
▼住宅五层平面,5th home floor plan©Ari Arquitetos
▼住宅六层平面,6th home floor plan©Ari Arquitetos
▼住宅七层平面,7th home floor plan©Ari Arquitetos
▼住宅八层平面,8th home floor plan©Ari Arquitetos
▼住宅九层平面,9th home floor plan©Ari Arquitetos
▼住宅屋顶平面,roof plan©Ari Arquitetos
▼立面,elevation©Ari Arquitetos
▼剖面,section©Ari Arquitetos
Project Name: Building 17 Cinco Zero.
Firm: Ari Arquitetos
Office Location: Belém – Pará – Brazil – Amazon
Year of Project Completion: 2021
Gross Built Area: 4.636,08
Project Location: Rua Alferes Costa, 1750, Pedreira, Belém – PA, 66083-108
Lead Architect: Ari Tomaz
Photo Credits: Victor Estácio e Júlio Lobo
Video Credits: Júlio Lobo
Responsible Architect: Ari Tomaz
Project Team: Renata Godinho e Nayara Raiol
Developer and Builder: Cabral Engenharia
Structural Design: Solest Engenharia Estrutural
Electrical Design: Projeção Engenharia
Plumbing Design: Enplac Engenharia
Landscaping: Margareth Maroto Paisagismo
Lighting Design: Ari Arquitetos
Consultants: Marcelo Otaviano – Façade
Suppliers: Biancogres, Eliane, Tramontina, Celite, Vidro temper, ArtLuz, Eletro transol. Tabalmix
客服
消息
收藏
下载
最近



































