查看完整案例

收藏

下载
数字化灯塔
A Digital Lighthouse
在建筑师 Gallister 和 Vasko+Partner 的合作下,Kronaus Mitterer Architekten 在图尔恩(Tulln)实现了“数字化之家(House of Digitalization)”项目——一座连接数字世界与物理世界的创新建筑。该建筑体现了下奥地利州的数字化战略,并作为迈向高度数字化时代的象征性标志。凭借卓越的建筑品质,“数字化之家”荣获了 2023 年 BIG SEE 建筑奖。
In cooperation with architect Gallister and Vasko+Partner, Kronaus Mitterer Architekten have realized the “House of Digitalization ” in Tulln, a project at the intersection of the digital and physical worlds. This innovative building embodies the digitization strategy of the state of Lower Austria and serves as a visible sign of the paradigm shift towards an increasingly digitized world. For its architectural quality, the House of Digitalization was awarded the prestigious BIG SEE Architecture Award in 2023.
▼项目概览
Overall view© David Schreyer
创新与知识交流的场所 A Place for Innovation and the Exchange of Knowledge
自 2022 年 12 月正式开放以来,总面积 4,200 平方米的“数字化之家”已成为数字化领域内企业与专家的重要聚集地。建筑的多功能性凸显了其包容性理念:展厅与活动空间为演示和会议提供场所;维也纳新城应用技术大学(Wiener Neustadt University of Applied Sciences)的讲堂与“FabLab”科学实验室,促进了科学、商业和社会之间的交流;设施还包括餐饮区与露天花园以及灵活的办公单元,为专业人士提供理想的工作环境。其中,一大亮点是每年更换主题的多媒体展览,通过沉浸式体验,让各个年龄段的访客直观感受数字化的魅力。
Since its opening in December 2022, the 4,200 m² House of Digitalization has established itself as an important location for companies and specialists in the field of digitalization. The wide range of possible uses underline the integrative approach of the project: a showroom and event areas offer space for presentations and events, while the Wiener Neustadt University of Applied Sciences with its lecture halls and the “FabLab” science laboratory contribute to an inspiring exchange between science, business and society. The offer is complemented by an inviting catering area with a guest garden and flexible office units. A special highlight is the annually changing, multimedia themed presentation in the showroom, which brings digitalization to life in a fascinating way for visitors of all ages.
▼建筑立面,Transparent ground floor zone © David Schreyer
建筑设计:数字化的镜像
Arcitecture as a Mirror of Digitalization
这座建筑不仅具备功能性,更承载象征意义。其核心设计元素之一是智能媒体立面:外立面由一层悬挂式玻璃幕墙组成,内部嵌入 LED 模块,可动态显示信息,将数字化主题与艺术性的视觉元素相结合。玻璃幕墙映照着流动的云层,营造出独特的美学效果,象征着数字世界的持续变化与复杂性。建筑设计巧妙地融入了应用技术大学校园,其通透的首层空间使建筑与城市环境自然融合,而共享的绿色内庭院则成为学生、教职人员和访客的交流中心。
The architecture of the building is not only functional, but also symbolic. A central design element is the intelligent media facade: a front-mounted glass shell that visually displays information with integrated LED modules linking the theme of digitalization with poetic elements. The reflection of the clouds on the façade creates a unique aesthetic that emphasizes the continuous change and complexity of the digital world. The concept integrates harmoniously into the campus of the university of applied sciences. Its transparent first floor zone creates an open connection to the city, while a shared green inner courtyard serves as a meeting point for students, staff and visitors.
▼数字展厅,Showroom, Exhibition © David Schreyer
宽敞而实用的室内空间
A Spacious and Functional Interior
三层通高的中庭构成了整座建筑的核心。自然采光与清晰的视觉轴线营造出开放且富有吸引力的空间氛围,使访客能够轻松抵达各个区域:从展厅和餐饮区到一层的联合办公空间,再到二层的技术学院扩展区。一座悬浮式会议区提供了开阔的视野,同时象征着数字世界与现实世界的连接。作为建筑的核心元素,展厅采用无柱立方体设计,极大地增强了未来用途的灵活性。其宽敞的层高与精心考量的比例营造出震撼的室内体验,并吸引访客探索数字化的无限可能。
A three-storey foyer forms the heart of the building. Natural lighting and clear visual axes create an inviting sense of space that provides easy access to all areas: from the show-room and restaurant area to the co-working spaces on the first floor and the technical college extension on the second floor. A floating meeting area offers attractive views and symbolizes the connection between the digital and real world. The showroom, the central element of the building, is designed as a column-free cube and offers maximum flexibility for future uses. With its generous ceiling height and well thought-out proportions, it conveys an impressive interior experience and invites visitors to discover the possibilities of digitalization.
▼数字展厅,Showroom, Exhibition © David Schreyer
可持续性作为核心原则 Sustainability as a Guiding Principle
“数字化之家”严格按照最高可持续性标准进行规划和建造。根据 klima:aktiv 建筑标准,该项目在 1,000 分满分中获得 764 分,并荣获 klima:aktiv 银级质量认证。评估内容涵盖能源效率、材料质量、选址条件,以及舒适性和健康标准。这一建筑因此成为奥地利可持续建筑的新标杆。
The House of Digitalization was planned and implemented in compliance with the highest sustainability standards. With 764 out of 1,000 possible points according to the klima:aktiv building standard, it was awarded the klima:aktiv silver quality seal. Among other things, energy efficiency, material quality, location aspects as well as comfort and health were assessed. The building therefore sets new standards for sustainable construction in Austria.
▼楼梯中庭空间,Three-storey foyer © David Schreyer
▼会议空间,Meeting area, above the showroom © David Schreyer
下奥地利州及更广地区的数字化灯塔
A Lighthouse for Lower Austria and Beyond
位于图尔恩的“数字化之家”融合了卓越的建筑标准、技术创新和可持续建筑方法,打造了一座开创性的文化与科研建筑。作为知识交流与数字化网络合作的核心平台,它提供了一个让数字化转型变得可感知、可体验的实体空间。这一灯塔式项目不仅影响着下奥地利州,更远播至全球,成为当代建筑如何在数字世界与物理世界交汇处创造新价值的典范。
The House of Digitalization in Tulln combines high architectural standards, technological innovation and sustainable construction methods to create a pioneering cultural and scientific building. As a central platform for knowledge exchange and networking, it creates a place where the digital transformation becomes tangible for everyone. This lighthouse project radiates far beyond the borders of Lower Austria and serves as a model for contemporary architecture at the intersection of digital and physical space.
▼项目区位,site map© Kronaus Mitterer Architekten
▼首层平面图,ground floor plan© Kronaus Mitterer Architekten
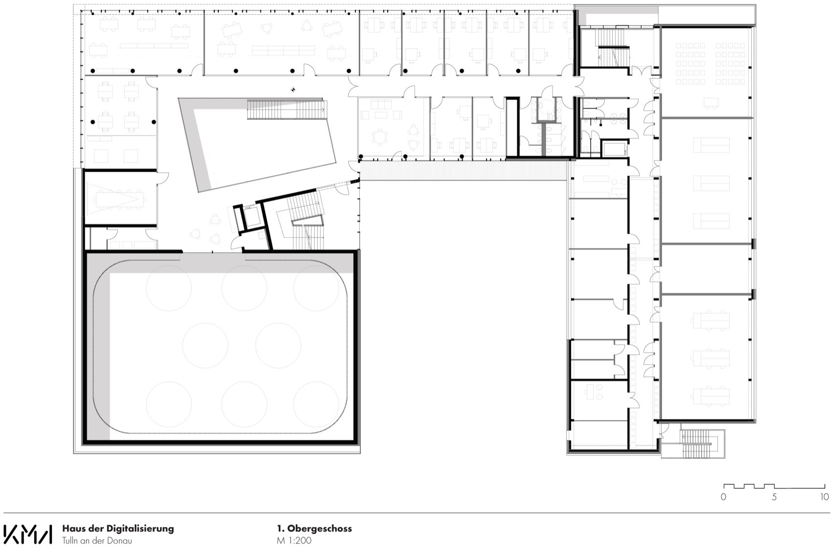
▼二层平面图,first floor plan© Kronaus Mitterer Architekten
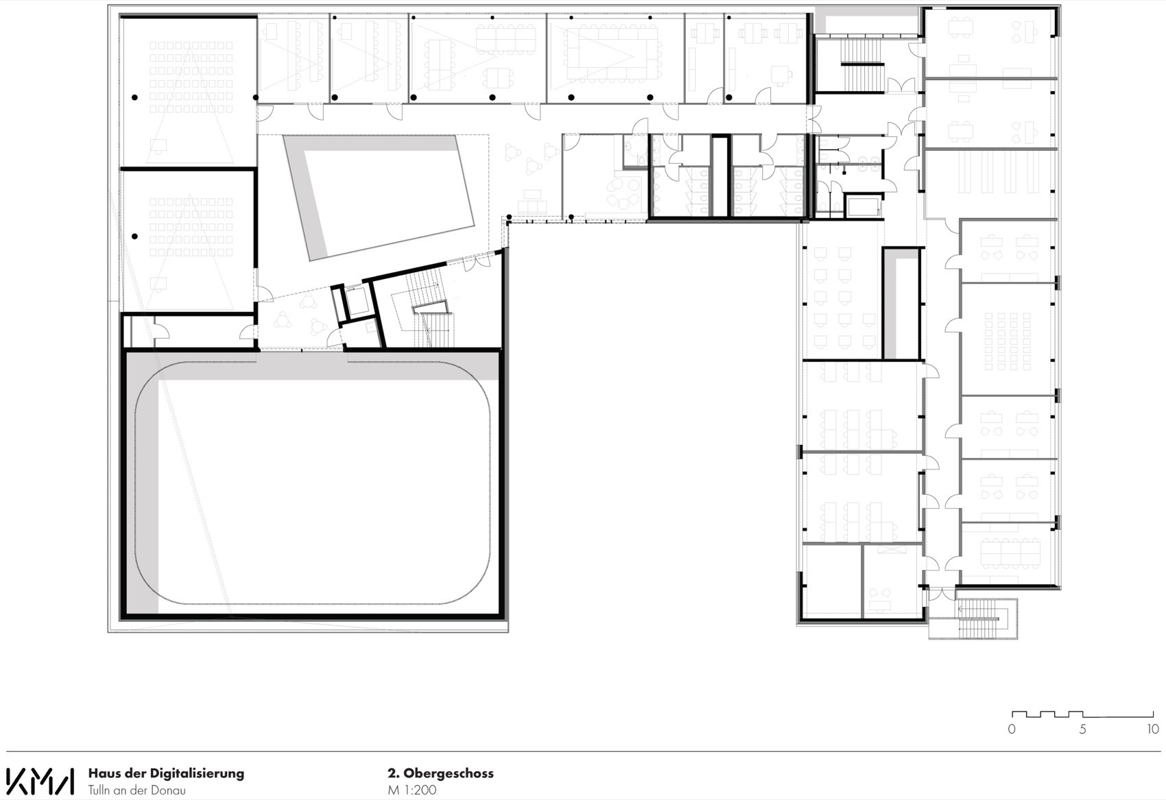
▼三层平面图,second floor plan© Kronaus Mitterer Architekten
▼西立面图,west elevation© Kronaus Mitterer Architekten
▼北立面图,north elevation© Kronaus Mitterer Architekten
▼剖面图,section© Kronaus Mitterer Architekten
Building: House of Digitalization
Address: Konrad-Lorenz-Straße 10, A-3430 Tulln an der Donau
Architecture: ARGE GP Kronaus Mitterer /Gallister /Vasko+Partner
Client: FH Wiener Neustadt, ecoplus Digital GmbH
KMA-Team: PeterMüller(PL), ThomasGalos, NinoslavIlic, JakubLech, SelmaSarcevic, ItziarUzcudun
General Planer Management: Vasko+Partner
Structural Planning: Vasko+Partner
Building Physics: Vasko+Partner
Building Services: Vasko+Partner
Electrical Planning: Vasko+Partner
Fire Protection: Vasko+Partner
Landscaping: Lindle+Bukor
Media Technology: Tamschick Media+Space
Kitchen Planning: Ronge & Partner
Size: GFA 4.992 m²
Competition Win: October 2019
Start of Planning: January 2020
Construction Time: April 2021–December 2022
Completion: December 2022
Commissioning: January 2023
Special Features: BIM Project, klima:aktiv silver certificate
客服
消息
收藏
下载
最近


















