查看完整案例

收藏

下载
Yoozoo 的设计通过使用tu lai o作为主要的光扩散材料,为这家波霸奶茶店打造独特的感官体验。顾客的体验从入口点单的那一刻便开始,并在空间中逐步展开。聚碳酸酯墙体——因其半透明特性——与自然光和人工光相互作用:阴影与反射塑造出富有动态变化的氛围,使空间的光影在一天中的不同时间呈现出不同的情绪。
Yoozoo’s design works to create a unique sensory experience for a shop that sells boba tea, through using polycarbonate as the main light diffuser. The customer ’s experience starts as soon as they order at the entrance as it begins to unfold in the space. The polycarbonate walls -translucent in nature- play games with natural and artificial light: shadows and reflections create a dynamic atmosphere whose mood changes throughout the day.
▼店铺门头,Front door overall view © Zaickz Moz
▼门头细部,Front door details © Zaickz Moz
▼入口处,Entrance © Zaickz Moz
▼入口走廊,Entrance corrdior © Zaickz Moz
随着步入空间,令人惊喜的视觉景象和空间维度逐一显现,从互动装置到私密角落,皆旨在激发探索与惊叹。最终,体验在远离城市喧嚣的内部空间达至高潮,在那里,顾客沉浸式地享受第一口饮品。天花板下方,由艺术家Lucía Aumann和Pablo Kobayashi创作的雕塑艺术装置随着时间推移不断变化色彩与几何形态,在持续的流动变化中,为每一次来访赋予独特印记。
As you progress through the space, surprising sights and dimensions appear, from interactives to intimate nooks, all intended to provoke wonder. The experience ends inside away from the city, where you start to drink in a very immersive environment. Just below the ceiling, a sculptural art piece by the artists Lucía Aumann and Pablo Kobayashi transforms colours and geometric forms over time. Continuously shifting, it uniquely marks each visit.
▼客座区,Guest seating area © Zaickz Moz
▼客座区近景,Close view of guest seating area © Zaickz Moz
▼操作间,Operation room © Zaickz Moz
▼艺术装置,Art installations © Zaickz Moz
▼灯光与材质,Lighting and materials © Zaickz Moz
灯光、材质与空间的相互作用,让这处场所不仅仅是品尝饮品的地方,更是一种值得细细感受的沉浸式体验。
The play of lights, textures and spaces create a venue where it is not just the drink that has to be enjoyed but the surrounding atmosphere as well.
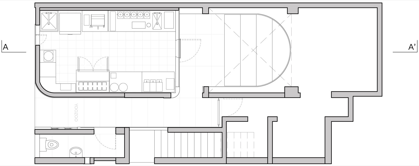
▼平面图,plan © WORC
▼立面图,elevation © WORC
▼剖面图,section © WORC
ARCHITECTURE: RICARDO MARTÍNEZ + CAMILA UREÑA WORC (STUDIO) @worc.studio
ARCHITECT(S) IN CHARGE: Ricardo Martínez + Camila Ureña
CONSTRUCTED AREA (SQM): 65 SQM
CONSTRUCTION COMPLETION YEAR: 2024
LOCATION: Colonia Roma, Mexico City
PHOTOGRAPHER: Zaickz Moz @zaickz.moz
客服
消息
收藏
下载
最近





















