查看完整案例

收藏

下载

翻译
Architects:Zanghellini & Holt Associates
Area:378m²
Year:2024
Photographs:Soledad Sambiasi
Manufacturers:Arte,CER Limited,Dulux,Masureel,Parato,Thomas Crapper
Lead Architects:Zanghellini & Holt Associates
Fit-out:Wah Lai Decoration Company
Main Contractor:Wah Lai Decoration Company
Project Management:Epicurean Group
Supporting Interior Designer:Chu Tse
City:Hong Kong
Country:China
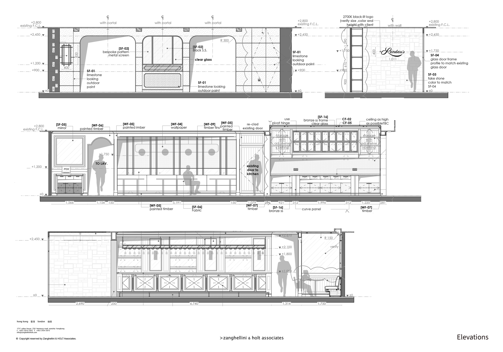
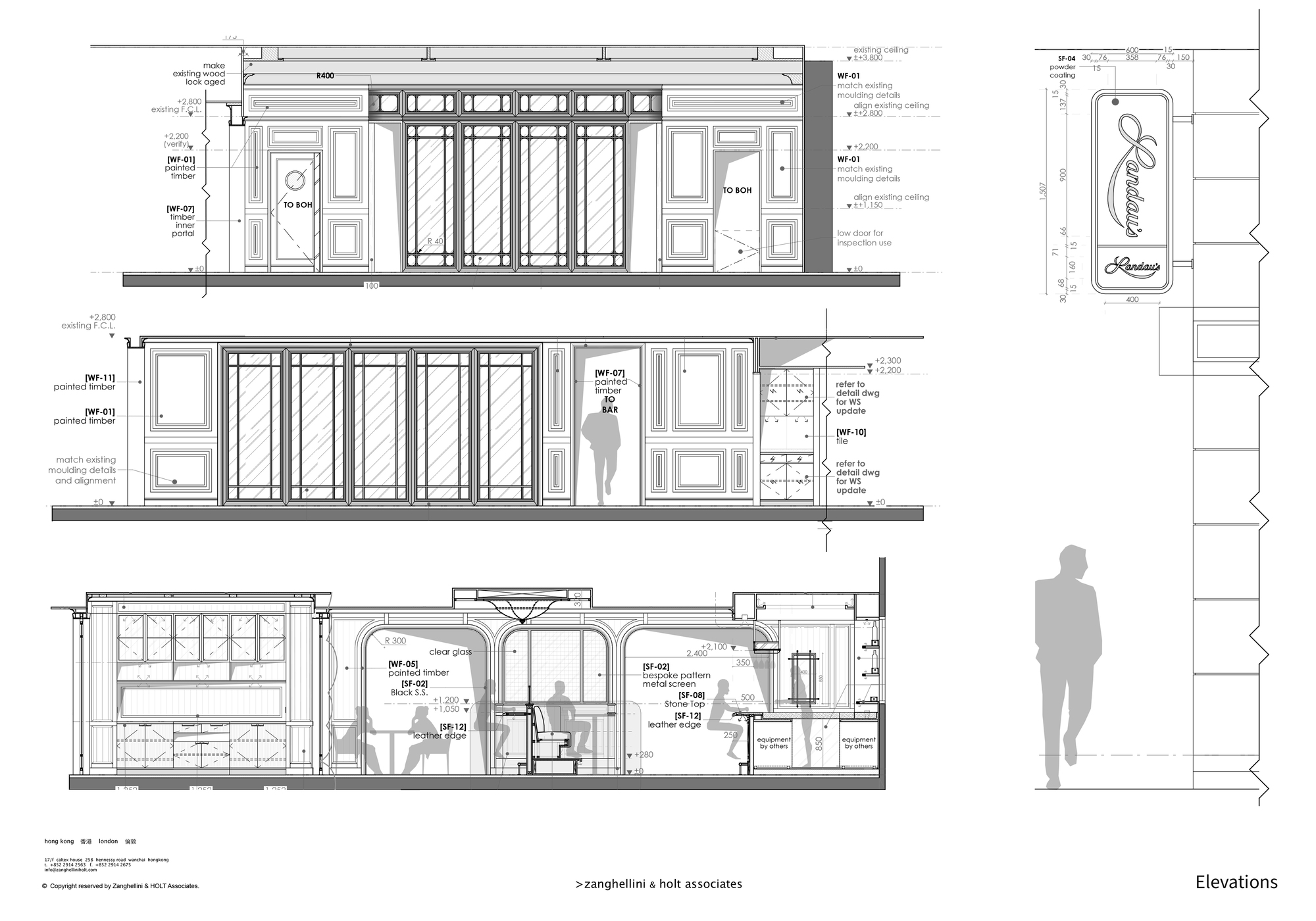
Text description provided by the architects. Landau's bridges the gap between classic European grandeur and the vibrant urban fabric of Wanchai, Hong Kong. Designed with a focus on craftsmanship and spatial duality, the project celebrates heritage while addressing the evolving demands of the modern and competitive Asian hospitality scene.
Landau achieves a balance between four distinct atmospheres, which allows for some fun interactions as you move from one section of the restaurant to another. An open outdoor terrace connects the restaurant to one of Hong Kong's classic high-level pedestrian walkways, a bold-red bar area where custom cocktails are presented, a vibrant modern yellow dining area, and a vintage, high-ceiling European dining room. The bold, vibrant energy of the bar contrasts with the serene elegance of the terrace and dining room, creating a cohesive yet multi-dimensional experience. Offering a unique contribution to Wanchai's architectural landscape.
Defined by its high-impact red lacquered finishes and intricate coffered ceiling, the design balances visual intensity with functional efficiency, using mirrored surfaces and glassware displays to amplify light and create depth. A dark, richly veined marble bar anchors the space, complemented by curved wooden bar stools with leather seats that nod to vintage European craftsmanship. The result is a space that invites social interaction, with its vibrant palette and dynamic design encouraging energy and connection.
In contrast, the Dining Room offers a tranquil and refined experience. A palette of blues and whites, paired with geometric patterned flooring, creates an understated yet sophisticated ambiance. Paneled walls with mirrored insets establish rhythm and symmetry, while the crowning feature—a pre-existing custom-designed stained-glass dome—acts as both a visual anchor and an homage to traditional artisanal techniques. The dome casts a soft, colorful light across the room, enriching the dining experience with a sense of artistry and heritage.
Ornamental woodwork adorns the ceilings and walls, integrating seamlessly with modern elements. Carefully selected lighting fixtures, including a bespoke oversized pendant chandelier, and understated wall sconces, enhance the spatial hierarchy while providing an ambient glow. The material palette—featuring marble, wood, and stained glass— emphasizes European grandeur and nostalgia.
Project gallery
客服
消息
收藏
下载
最近



















