查看完整案例

收藏

下载
静安寺商圈是上海市中心繁华的商业中心,周边商场与办公楼林立,每天有大量的办公白领在此忙碌工作。MMJ美甲美睫位于静安寺核心区一栋商务楼中。该楼栋因其位置优越,靠近各大商场和写字楼,因而吸引了一大批小型商业业态入驻,仅美甲美睫在该楼中就有二十余家,空间较为拥挤,密度很高。
▼ 入口
该项目的业主是设计师认识十多年的老友,设计师非常了解她十余年来一直致力于支持,孵化女性创业,通过商业来改善女性生活和人生实现的良善初衷。通过沟通,我们一致期望将业主这种良善的意愿也同样延伸传递给顾客,让她们在享受美甲美睫服务的同时,也拥有更好的体验。经过调研沟通,我们了解到绝大多数顾客为周边办公楼宇的白领女性,平日工作繁忙,多数会选择在午休,下班以及周末的时间来消费体验;而美甲美睫项目的操作时间都不短,至少在1个小时以上,因而为顾客提供一个在高密度都市之中可以休憩的空间的构想浮出水面。
▼ 大厅
▼ 美甲区
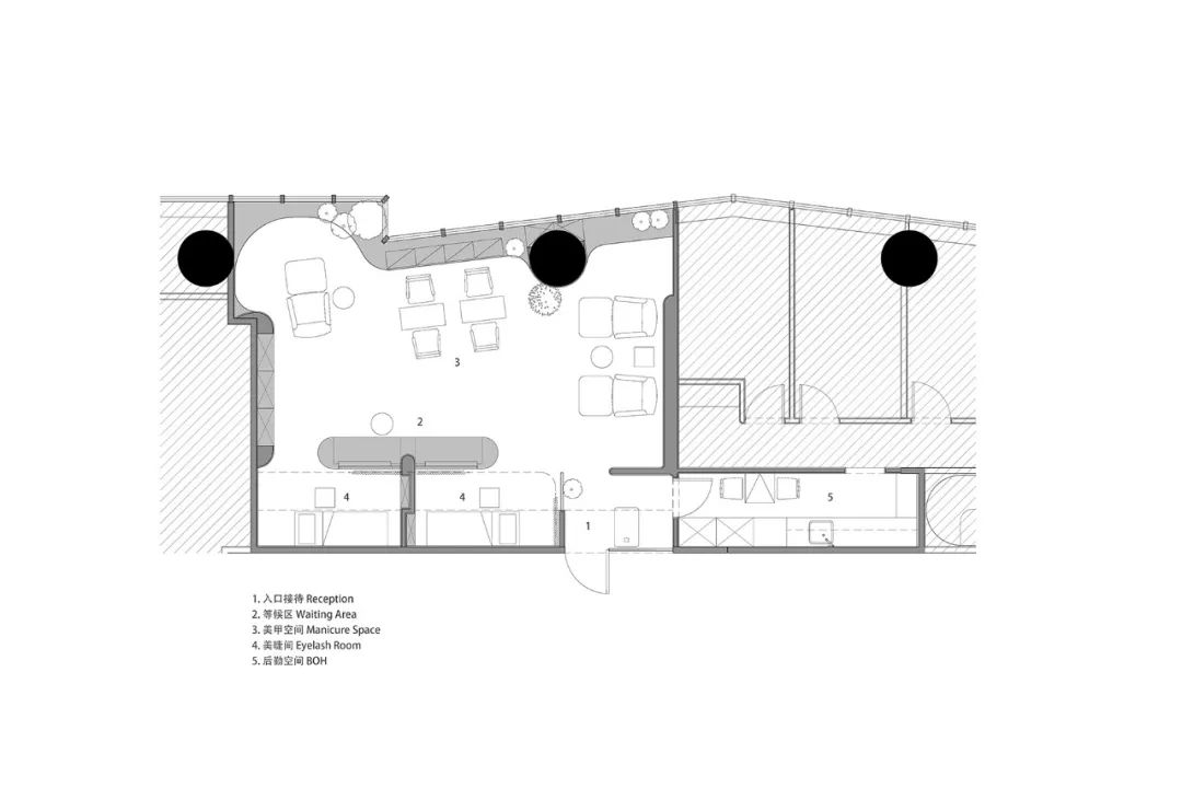
在具体的空间操作上,设计师留出了一个大空间,再用半高的地台、不完全封闭的墙体等来切分出一些小空间,作为美睫间、美甲沙发区、梳妆区等功能空间,避免在原本就不大的空间中再硬性地隔出拥挤的小房间。所有的墙角都采用圆角或曲线,使得空间具有一种安定且柔和的包裹感。东面的落地窗作为空间的采光和景观面,设计将其完整留出在大空间中,避免其因为隔墙分隔而损失空间的宽敞度。镜面被使用在落地窗两侧端头的墙体上,扩大了空间的感知尺寸。半透明的窗帘让窗外高楼景观产生朦胧的距离感,为空间使用者,也就是短暂离开那些写字楼的白领们,提供一个抽离工作场所的心理暗示。
▼ 美甲区
▼ 沙发美甲区
座椅、沙发的舒适度作为重要的考虑项,在设计中反复试验,打样,确认。由于工期的限制,原始的天花和地板保留沿用,设计师结合原本木地板的材质颜色,将空间的墙面的顶面统一在米灰色的微水泥材质中。实木,绿植都将温暖,柔和的品质提供给空间使用者;而局部的玻璃,金属材质则作为补充,给空间一些“精气神”,使其不至于过于“昏沉”。
▼ 美睫区
▼ 等候区
▼ 等候区长凳
项目完工后,设计师到现场处理一些后期问题。我们听到有老顾客在同工作人员聊天,她说:“太好了你们终于装修好开业了,我就想中午的时候来做个美睫好好睡一觉‥‥‥” 听到这里,我们觉得前期所有的努力似乎都是值得的‥‥‥
▼ 弧形窗台
▼ 平面图
项目名称:都市中的女性休憩空间 --- MMJ美甲美睫静安寺店
客户:MMJ美甲美睫
设计公司:多棵设计 Studio DOTCOF
设计团队:陈曦,沐淼
施工单位:陈义忠团队
面积:68.5m2
完成时间:2024年11月
项目地址:上海市静安区愚园路172号
摄影师:沐淼
主要材质:微水泥,橡木,玻璃,镜面
客服
消息
收藏
下载
最近


















