查看完整案例

收藏

下载
RUGER
RUGER WEICHEN
锐格惟辰 · 中海 铂宫
项目概况 / Project overview
项目面积 : 550㎡
项目风格 : 法式轻奢
主案设计 : 赵锦文
设计公司 : 锐格惟辰
施工公司 : 锐格惟辰
▼负
一层平面
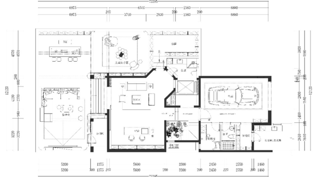
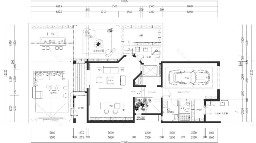
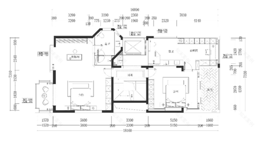
▼
一层平面
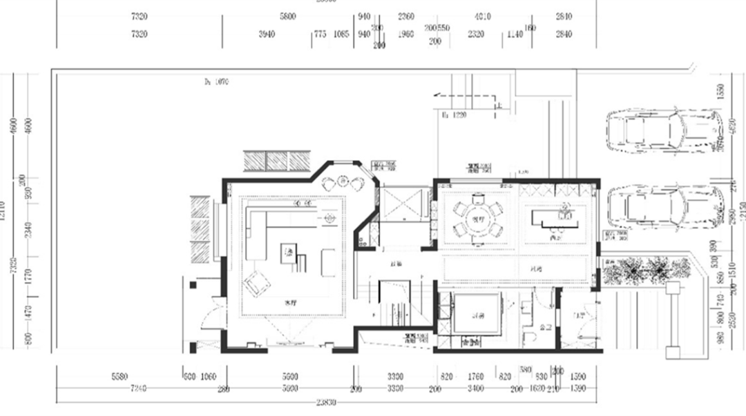
▼二
层平面
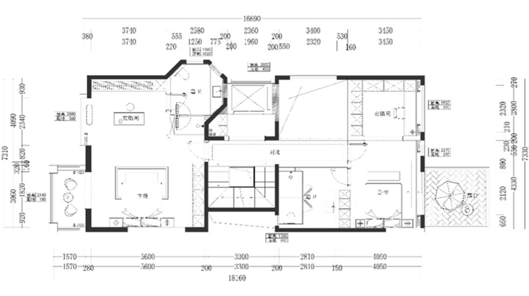
▼三
层平面
室内设计,是经设计师之手,谱写的一本关于居室主人的生活语录。有时候,这语录是严谨的论据。有时候,这语录是平淡真切的散文。有时候,这语录是曼妙轻灵的小诗......
Interior design is written by the hands of the designer about the life of the owner of the house. Sometimes, this quote is a rigorous argument. Sometimes, this quotation is plain and real prose. Sometimes, this quotation is a light poem......
◼
在追求高品质生活的当下,人们对于居住空间的要求不再局限于实用性,更注重其美学价值与文化内涵。法式轻奢风格,以其优雅浪漫又不失精致时尚的独特魅力,成为众多追求品质生活人士的心头好。本次室内设计旨在通过对法式轻奢风格的巧妙运用,打造一个既具艺术氛围又能满足现代生活需求的居住空间。
◼
In the current pursuit of high-quality life, people's requirements for living space are no longer limited to practicality, but pay more attention to its aesthetic value and cultural connotation. The French style of light luxury, with its unique charm of elegance, romance, and exquisite fashion, has become a favorite among many people who pursue a quality life. The interior design aims to create a living space that combines artistic atmosphere with modern living needs through the clever use of French luxury style.
◼
法式轻奢风格是法式风格与现代轻奢元素的完美融合。它传承了法式风格的优雅与浪漫,如经典的法式雕花、线条,以及对空间的巧妙布局,展现出法式宫廷般的大气与尊贵。同时,融入现代轻奢元素,像是金属材质的运用、简洁流畅的线条设计,摒弃了传统法式的繁复与厚重,在保留法式浪漫的基础上,增添了一份现代时尚的精致感,让空间在奢华中不失舒适,优雅中彰显个性。
◼
The French light luxury style is a perfect fusion of French style and modern light luxury elements. It inherits the elegance and romance of French style, such as classic French carvings, lines, and clever layout of space, showcasing the grandeur and nobility of French court. At the same time, modern light luxury elements are integrated, such as the use of metal materials and simple and smooth line designs, abandoning the complexity and heaviness of traditional French methods. On the basis of retaining French romance, a modern and fashionable delicacy is added, allowing the space to be comfortable in luxury and showcase individuality in elegance.
◼
奢让空间更具亮点、色彩灯光搭配以及环境带来舒适设计装饰,奢是对重的冲击。把重的部分点亮,让细节更完美,更有魅力…….
◼
Luxury brings more highlights to the space, color and lighting combinations, and comfortable design and decoration to the environment. Luxury is a significant impact. Light up the heavy parts to make the details more perfect and charming
◼
地面选用天然大理石铺设地面,其独一无二的纹理和自然光泽,不仅彰显出法式轻奢风格的大气,还能为整个空间奠定高端品质的基调。每一块大理石的纹理都是自然的馈赠,在脚边延伸出独特的美感,让人感受到大自然与艺术的完美结合。部分墙面采用石材护墙板,搭配精致的法式雕花,细腻的雕花工艺展现出法式风格的经典韵味,为空间增添一份复古的优雅。
◼
The ground is paved with natural marble, whose unique texture and natural luster not only showcase the grandeur of French luxury style, but also establish a high-end quality tone for the entire space. The texture of each piece of marble is a gift from nature, extending a unique beauty at the feet, allowing people to feel the perfect combination of nature and art. Part of the walls are protected by stone wall panels, paired with exquisite French carvings. The delicate carving craftsmanship showcases the classic charm of French style, adding a retro elegance to the space.
◼
一层空间整体以米白色为主色调,搭配黑色线条和深色点缀,营造出优雅大气的氛围。餐厅区域摆放着圆形餐桌和带软包的餐椅,上方悬挂大型水晶吊灯,增添华丽感。餐桌布置有花艺,增添生机。一侧的餐边柜带有精美的雕花和壁灯,兼具收纳与装饰功能,内嵌绿植墙丰富空间层次。厨房区域橱柜简洁大方,岛台采用带有绿色纹理的大理石,搭配深绿色高脚凳,时尚且具质感。大理石墙面和地面花纹独特,整体空间既显高贵又具实用性。
◼
The overall tone of the first floor space is mainly beige, with black lines and dark accents, creating an elegant and atmospheric atmosphere. The restaurant area is decorated with circular dining tables and chairs with soft bags, with large crystal chandeliers hanging above to add a sense of luxury. The dining table is decorated with floral arrangements to add vitality. The dining cabinet on one side is adorned with exquisite carvings and wall lamps, serving both storage and decorative purposes, with embedded green plant walls to enrich the spatial hierarchy. The kitchen area cabinets are simple and elegant, and the island countertop is made of green textured marble, paired with a dark green high stool, which is fashionable and textured. The unique patterns on the marble walls and floors make the overall space both noble and practical.
◼
整体色调以奶灰的中性色系为主,营造出优雅而不失庄重的空间氛围,软装搭配方面,注重精致感的选择,让每个元素都能与整体风格相融合,这种设计理念使得房间在高级、精致、奢华之间取得了完美的平衡。
◼
The overall color tone is mainly a neutral milky gray color scheme, creating an elegant yet dignified spatial atmosphere. In terms of soft decoration matching, attention is paid to the selection of delicacy, so that each element can be integrated with the overall style. This design concept achieves a perfect balance between luxury,
◼
墙面采用护墙板设计,搭配精美的雕花装饰,尽显优雅与庄重。天花板有复杂的花纹造型,悬挂着华丽的水晶吊灯,提升空间的奢华感。主卧床头板造型独特且富有立体感,带有精致雕花,床上用品质感上乘。房间铺设木地板,床前放置一块毛绒地毯,增添温馨感。窗边设有红色坐榻,可在此休闲观景。整体营造出舒适、高贵且极具艺术氛围的睡眠空间。
◼
The wall is designed with protective panels, complemented by exquisite carved decorations, showcasing elegance and solemnity. The ceiling has a complex patterned design, with gorgeous crystal chandeliers hanging to enhance the luxurious feel of the space. The headboard of the master bedroom has a unique and three-dimensional design, with exquisite carvings and high-quality bedding. The room is paved with wooden flooring, and a plush carpet is placed in front of the bed to add warmth. There is a red couch by the window, where you can relax and enjoy the view. Create a comfortable, noble, and artistic sleeping space as a whole.
客服
消息
收藏
下载
最近
























