查看完整案例

收藏

下载
项目位于广东湛江地区,一座拥有千年县治历史的滨海小镇吴阳。为系统展示吴阳镇的历史文化遗产,重塑地方文化认同这一乡村振兴核心命题,政府于镇府院内北隅划拨地块,拟建集历史文化展厅、临时展馆、会议室、图书室等功能于一体的文化场馆。场地呈不规则形,西、北两侧毗邻村界,东接小镇主干道吴阳一街。
Situated in Wuyang, a coastal town in Guangdong’s Zhanjiang area with a rich history spanning over a thousand years, the Wuyang Cultural Station aims to celebrate the town’s historical and cultural heritage while revitalizing local cultural identity—central themes in rural revitalization. To facilitate this vision, the government has designated a plot of land in the northern section of the town government courtyard for the construction of a cultural center. This center will feature diverse facilities, including a historical and cultural exhibition hall, temporary exhibition spaces, conference rooms, and a library. The site itself has an irregular shape, bordered by village lines to the west and north, and extending toward Wuyang First Street, the town’s main thoroughfare, to the east.
▼鸟瞰,bird-view © 吴嗣铭
▼屋顶活动平台,roof terrace © 吴嗣铭
▼架空与活动场地的联系,groun-floor plaza © 吴嗣铭
▼剖面,section © 吴嗣铭
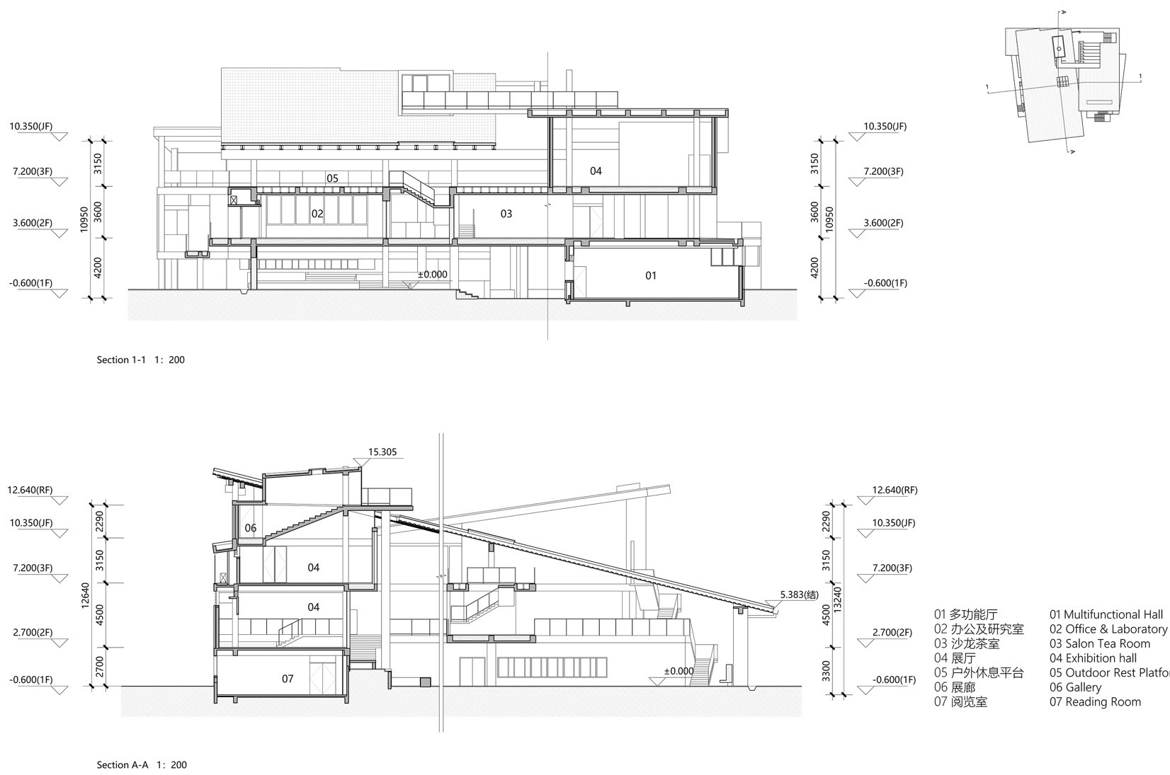
建筑采用双向单坡屋顶的建筑形态,两片坡屋面在平面上形成16度夹角,分别顺应东西边界的走向。功能用房沿村界紧凑排布为L形布局,释放出场地空间与直通海岸的天然”风巷”,形成高效通风路径。各功能单元错落分布于同一屋檐下,通过层高变化与半室外连廊有机串联,穿堂而过的海风在檐下流转,达成”开轩纳微凉”的自然降温效果。
Architecturally, the design incorporates a dual-direction single-slope roof, with the two inclined surfaces forming a 16-degree angle that aligns with the eastern and western boundaries. The functional spaces are arranged in a compact L-shaped layout along the village borders, creating an open area that acts as a natural “wind corridor,” facilitating efficient ventilation and connecting directly to the coastline. These functional units are unified under a shared eave, with varying ceiling heights and semi-outdoor corridors enhancing connectivity. The sea breeze flows beneath the eaves, creating a refreshing ambiance reminiscent of “opening windows to welcome a gentle breeze.”
▼隐喻庙祠木构体系,referencing the timber framework system of ancestral halls © 吴嗣铭
▼屋顶层层,roof terrace © 吴嗣铭
▼观海台,sea-view terrace © 吴嗣铭
▼架空层,open floor © 吴嗣铭
▼架空层-社区广场,free floor © 吴嗣铭
▼风巷,wind corridor © 吴嗣铭
▼缝隙间的绿植,green filled in the gaps © 吴嗣铭
▼绿化与风径,green space & wind corridor © 吴嗣铭
▼架空-改善周边自建房的风环境,natural cooling effect for surrounding houses © 吴嗣铭
▼架空层与篮球场间的连廊,corridor between playground &open floor © 吴嗣铭
“化整为零”的设计策略既回应气候特征,又消解体量带来的机构感,使文化站与周边自建房形成尺度对话。各功能房之间的联系均在大屋顶下的半室外空间完成,参观体验则不断在室内与室外、当下日常与历史记忆之间转换。通过细微层高变化,塑造出”登台望海”的立体漫游体验。蜿蜒步道在视觉上串联自建房群落与南城门遗址,强化场所历史纵深。半室外连廊与首层架空层广场共同构成社区”文化驿站”,可容纳市集、茶叙、展览等多元活动,激活场所日常活力。
Employing a design strategy that “divides the whole into parts,” the project responds to climatic conditions while mitigating the institutional feel that larger volumes might evoke. This approach fosters a harmonious dialogue between the cultural station and the surrounding self-built homes. The semi-outdoor spaces beneath the expansive roof allow visitors to flow seamlessly between indoor and outdoor environments, bridging everyday life with historical reflections. Subtle variations in ceiling height offer a three-dimensional experience that invites exploration, described as “ascending a platform to view the sea.” Meandering pathways visually connect the cluster of self-built homes with the nearby South City Gate ruins, enhancing the site’s historical narrative. Together, the semi-outdoor corridors and an elevated plaza form a community “cultural station” that supports a variety of activities, such as markets, tea gatherings, and exhibitions, invigorating the local daily life.
▼入口广场,entrance © 吴嗣铭
▼古砖展示墙,Antique Brick Display Wall © 吴嗣铭
▼楼梯,stairs © 吴嗣铭
▼登台望海,promenade of “terraced sea-view” © 吴嗣铭
▼戏台式高差处理,terrace © 吴嗣铭
▼台阶,terrace © 吴嗣铭
▼联系均在大屋顶下的半室外空间完成,transition under the roof © 吴嗣铭
▼室内外空间转换 ,transitions between indoor and outdoor © 吴嗣铭
▼半户外休憩空间,Semi-outdoor corridors © 吴嗣铭
▼半户外休憩空间,Semi-outdoor corridors © 吴嗣铭
▼钢结构屋顶与混凝土分离设计设计,The roof roof separated from the concrete beam © 吴嗣铭
建筑师通过空间原型重构传递文化记忆:压低的主街侧檐口形成庙宇门廊意象,逐级升高的台阶与抬升的屋面,则呼应庙宇的空间情绪处理手法。钢结构屋顶与混凝土主体分离设计,结构构件得到表达,隐喻祠堂木构体系。入口照壁镶嵌836块明代古城砖,其下方为古城墙旧址,建筑师以“考古展陈”方式揭示场地历史层积。
The architects express cultural memory through spatial prototypes: the lowered eaves facing the main street evoke the imagery of a temple porch, while the ascending steps and elevated roof reflect the emotive spatial techniques of traditional temples. The separation between the steel structure of the roof and the concrete body allows for the expression of structural elements, subtly referencing the timber construction of ancestral halls. The entrance screen is adorned with 836 ancient Ming Dynasty bricks, beneath which lies the site of an old city wall, revealing the historical layers of the site through an “archaeological exhibition” narrative.
▼历史文化展,historical and cultural exhibition hall © 吴嗣铭
▼古城砖展示,Antique Brick Display Wall © 吴嗣铭
▼临时展厅,temporal exhibition hall © 吴嗣铭
▼临时展厅,temporal exhibition hall © 吴嗣铭
▼临时展厅,temporal exhibition hall © 吴嗣铭
▼临时展厅,temporal exhibition hall © 吴嗣铭
▼通往屋顶的楼梯间,stairs via the roof © 吴嗣铭
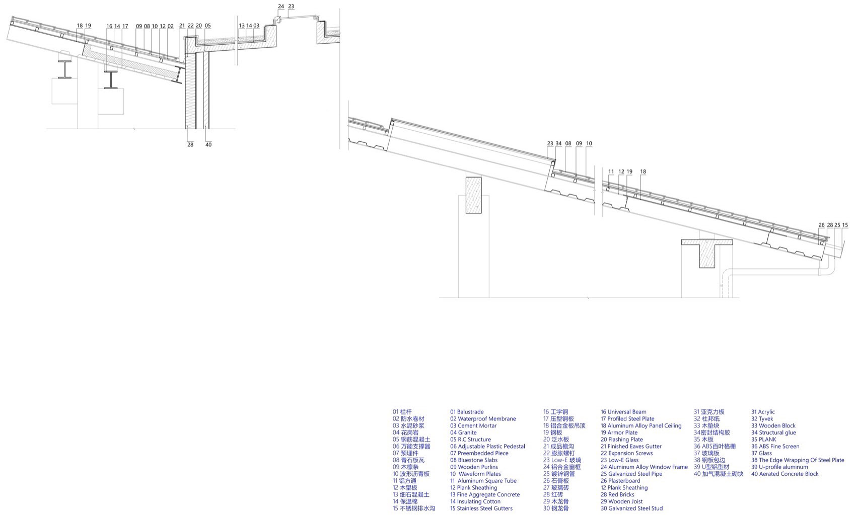
建筑采用红砖、洗米石、瓷砖、镀锌钢板等当地常见材料,实现与周边环境的自然融合。经济性策略贯穿始终:吊顶采用的压型镀锌钢板同时作为屋顶施工界面,节省高空脚手架成本;屋面青石板瓦取自景观工程余料。这些”低技”的营造方式,既延续了民居肌理,又塑造出当代乡村的公共性。
To maintain harmony with the local environment, the construction employs familiar materials such as red brick, washed terrazzo, tiles, and galvanized steel plates. Economic considerations are integral to the project: the profiled galvanized steel plates used in the ceiling also serve as the roofing surface, reducing scaffolding costs, while the bluestone slate tiles come from leftover materials from landscaping projects. These “low-tech” construction methods not only preserve the texture of traditional dwellings but also enhance the public character of contemporary rural life.
▼直通海岸的风巷,wind corridor leading to the coast © 吴嗣铭
▼吴阳一街,main entrance © 吴嗣铭
▼与自建房尺度对话,dialogue with the surrounding houses © 吴嗣铭
▼乡道,view from village © 吴嗣铭
▼与自建房尺度视线渗透,dialogue with the surrounding houses © 吴嗣铭
▼文化站日常,daily © 吴嗣铭
▼总平面图,General Plan ©WAU建筑事务所
▼一层平面图,First floor Plan ©WAU建筑事务所
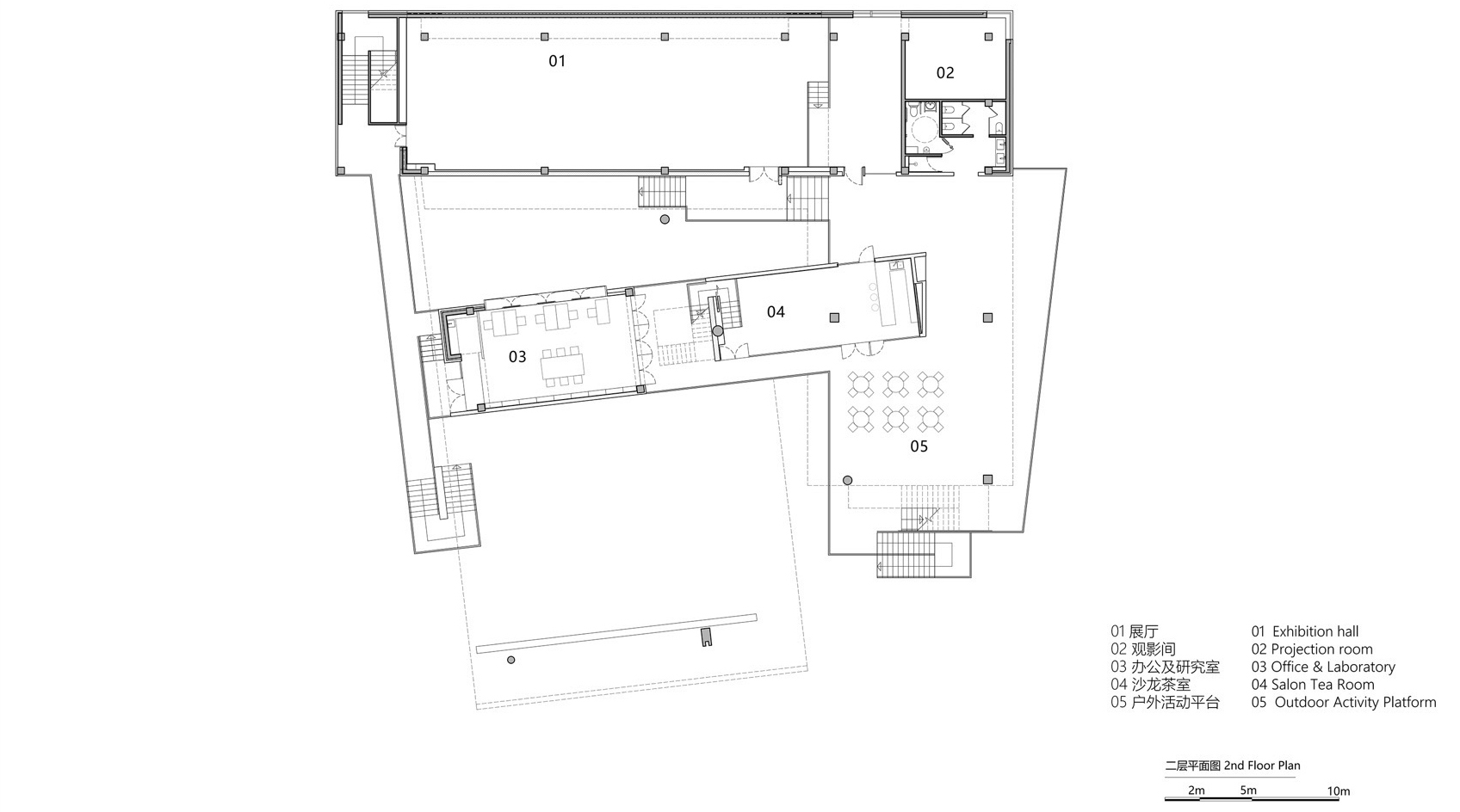
二层平面图平面图,Second Plan Plan ©WAU建筑事务所
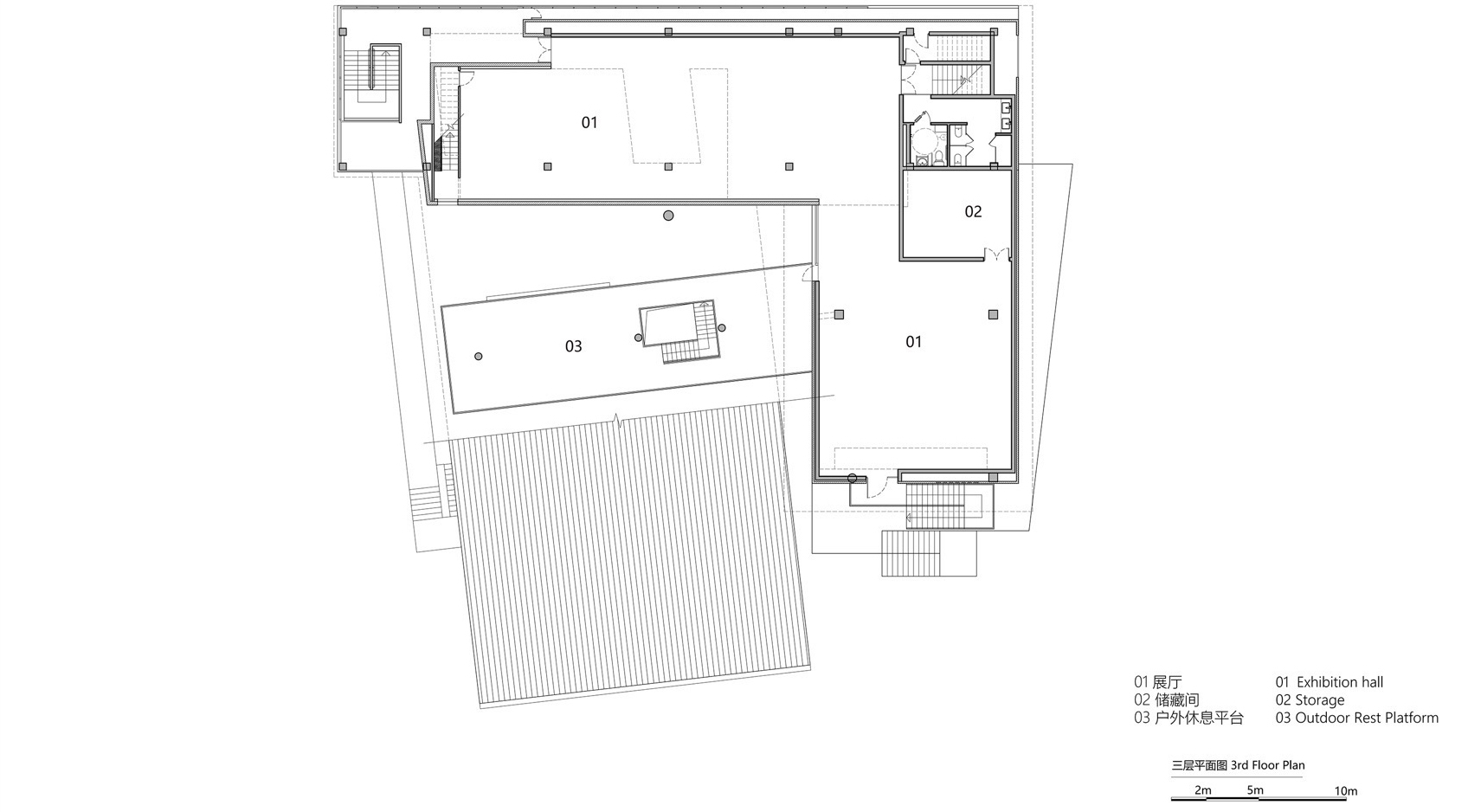
▼三层平面图,Third floor Plan ©WAU建筑事务所
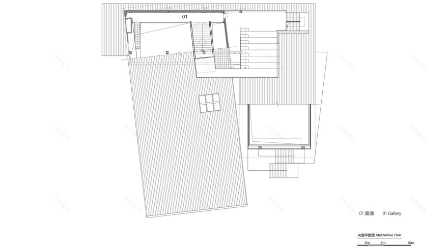
▼夹层平面图,Mezzanine plan ©WAU建筑事务所
▼立面图,Elevation ©WAU建筑事务所
▼剖面图,Section ©WAU建筑事务所
▼墙身节点,Wall details ©WAU建筑事务所
▼屋顶大样,Roof details ©WAU建筑事务所
项目名称:吴阳文化站
设计方:WAU建筑事务所
项目设计 & 完成年份:2020/2024
主创及设计团队 主创:吴林寿 赵向莹 团队:张玮莹、罗倩萍、易成静、文可、林显东
项目地址:广东湛江
建筑面积:2700㎡
摄影版权:吴嗣铭
合作方 结构:陈招智 视觉传达:huangyangdesign 灯光:深圳市一诺照明设计顾问有限公司 客户:吴川市吴阳镇人民政府
品牌 为了完善设计项目的系统综合性建设,非常感谢贵方提供主要使用材料以及相对应的品牌商信息。
Project name: Wuyang Cultural Station
Design: WAU Design
Design year & Completion Year: 2020/2024
Leader designer & Team Leader Designer:Linshou WU, Xiangying ZHAO Team: Zhang Weiying, Luo Qianping, Yi Chengjing, Wen Ke, Lin Xiandong
Project location: Guangdong,Zhanjiang
Gross Built Area: 2700㎡
Photo credits: Siming WU
Partners Structure: Zhaozhi CHEN
Visual Communication:huangyangdesign
Lighting:Shenzhen Elegant Lighting Curator
Clients: Wuyang Town People’s Government of Wuchuan City
客服
消息
收藏
下载
最近





















































