查看完整案例

收藏

下载
朝日放送新总部大楼坐落于大阪市中心的堂岛川畔。设计在确保广播电台安全性的同时,尝试打造一个对城市与河流开放的公共广场。这座大楼旨在将人与自然、建筑融为一体。建筑内设有两个大型“花园”——一个位于沿河的“河畔露台(River Deck)”,另一个则是屋顶上的“天空露台(Sky Terrace)”,为人们提供了最大程度亲近河流自然的空间。
The new building of ABC aims to blend humans, nature and architecture into one. The two large ‘Gardens’, one on the ‘River Deck’ along the river and the other ‘Sky Terrace’ on the roof, are the devices for the people to enjoy the nature of the river to the fullest.
▼项目概览,exterior overview ©︎ Kengo Kuma & Associates
面向河流的外立面采用了由回收木材制成的犬牙交错的木质格栅,这一设计不仅能够柔化建筑的刚硬感,还兼具环保功能。格栅上的回收木材既能引入清风,又可有效遮挡太阳辐射,同时,这种木材的使用有助于减少空气中的二氧化碳含量。这一设计不仅连接了河流与建筑,还在城市环境中创造出舒适的空间体验。日本传统的木格栅是这一设计的灵感来源,而回收木材作为一种兼具历史感与现代性的可持续材料,也展现了对地球友好的理念。
The exterior wall facing the river is covered with a hound’s tooth lattice made of recycled wood, which works to relieve the hardness of the architecture. The recycled wood applied in the lattice brings in the wind, while shutting off the solar radiation, and the use of such wood contributes to a reduction of the level of carbon dioxide in the air. This also is a device to connect the river and the architecture, in order to provide comfort in the urban environment. The traditional Japanese lattice was the insight for this wood, a material which is both old and new, and friendly to the earth.
▼立面,facade ©︎ Kengo Kuma & Associates
▼立面细部,facade details ©︎ Kengo Kuma & Associates
▼室内概览,interior overview ©︎ Kengo Kuma & Associates
▼临街室内,interior street view ©︎ Kengo Kuma & Associates
▼区位图,location ©︎ Kengo Kuma & Associates
▼3F平面图,3F plan ©︎ Kengo Kuma & Associates
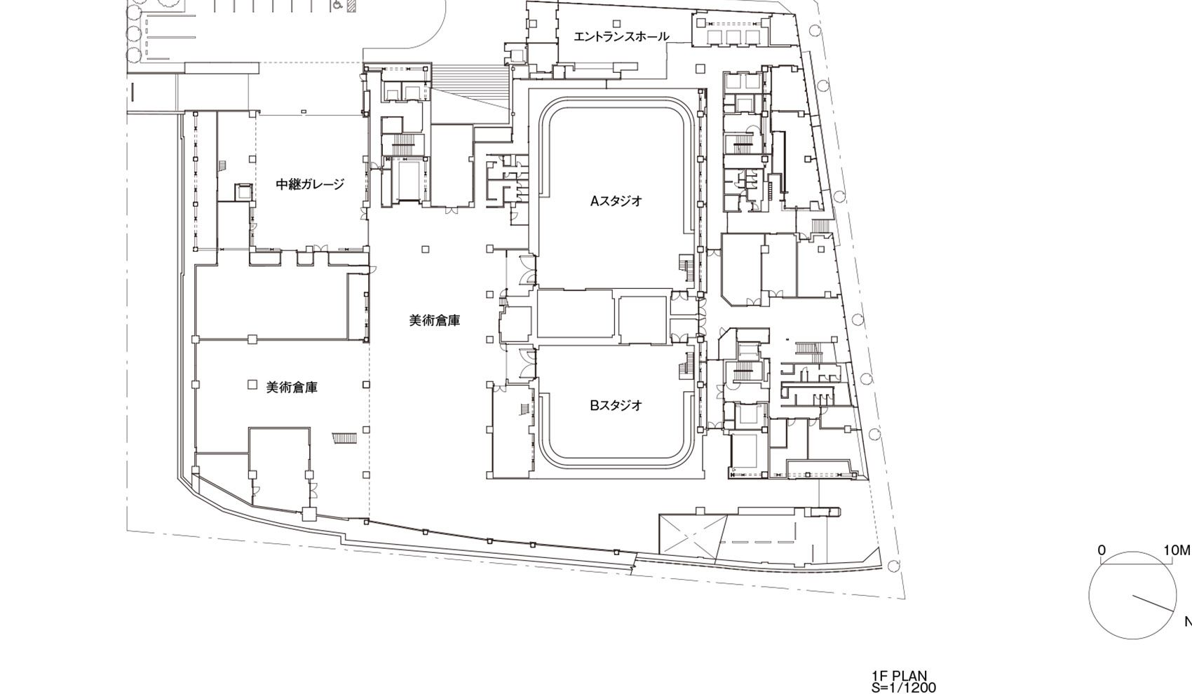
▼1F平面图,1F plan ©︎ Kengo Kuma & Associates
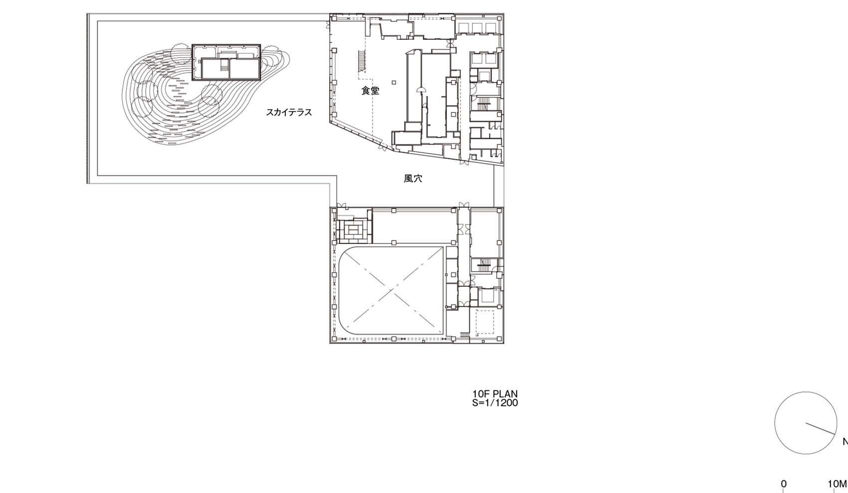
▼10F平面图,10F plan ©︎ Kengo Kuma & Associates
▼11F&12F平面图,11F&12F plan ©︎ Kengo Kuma & Associates
▼立面图,elevations ©︎ Kengo Kuma & Associates
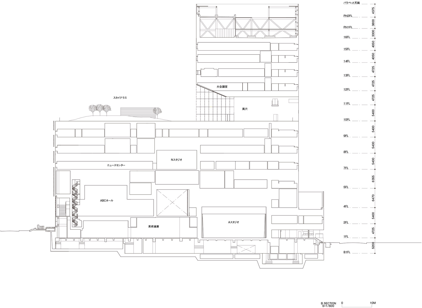
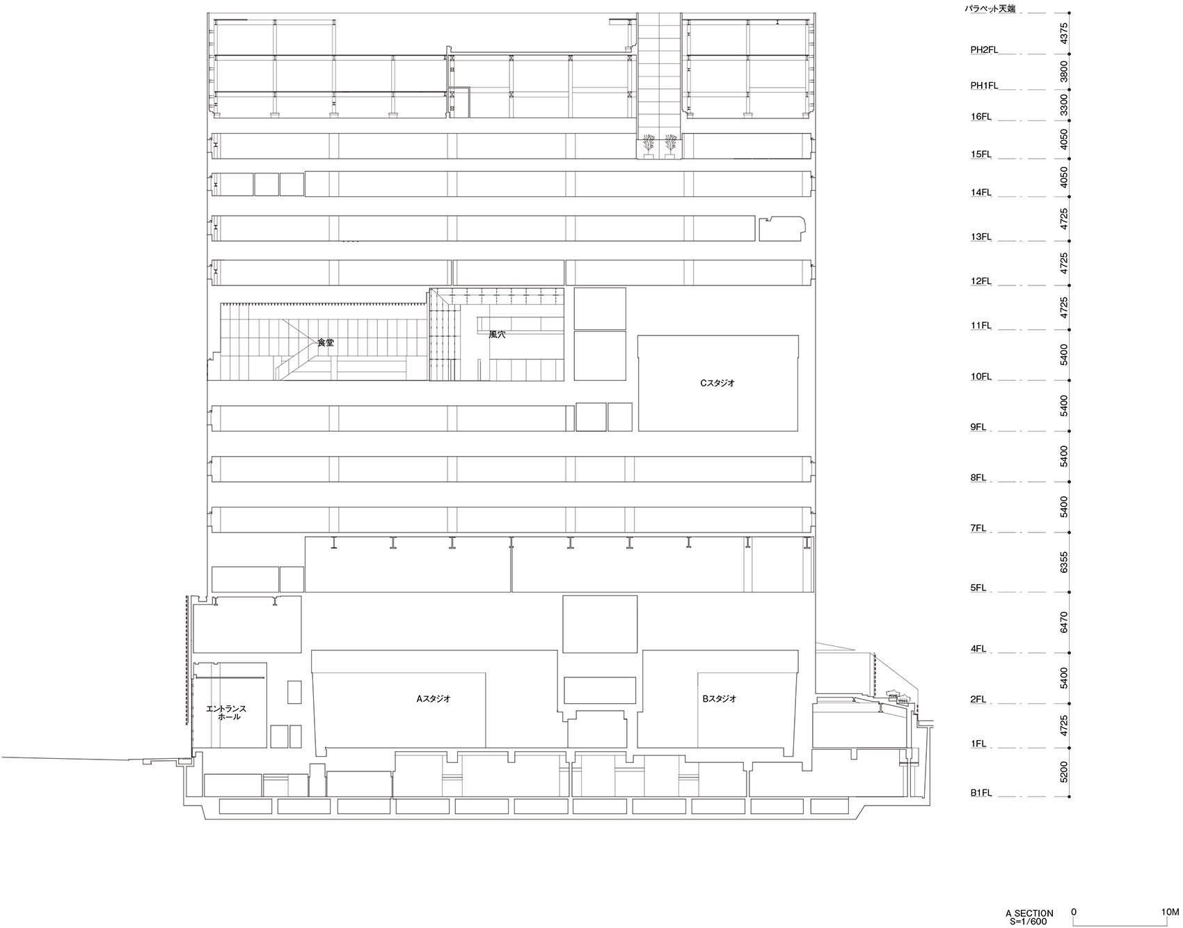
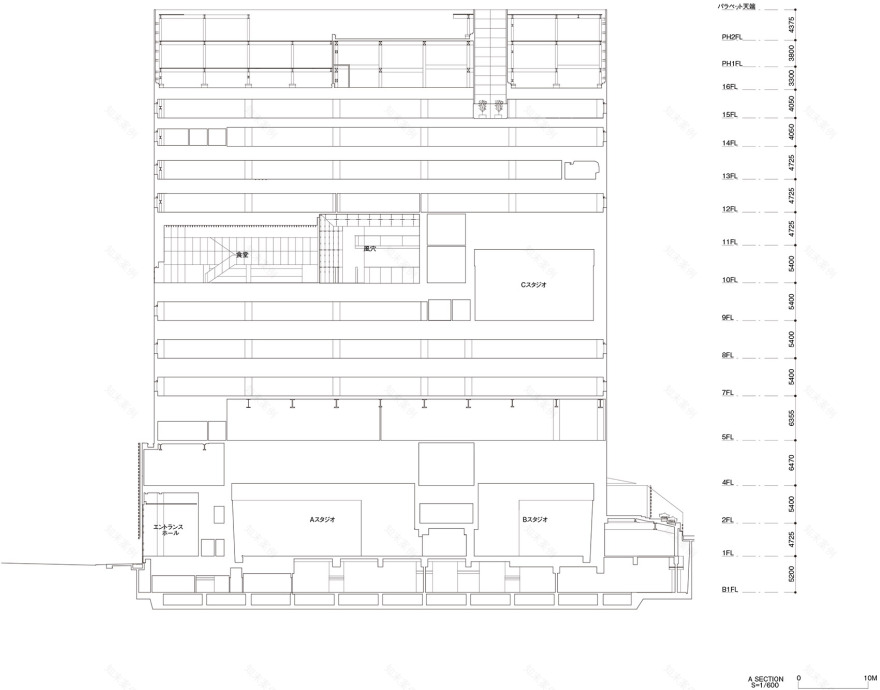
▼剖面图,elevations ©︎ Kengo Kuma & Associates
Team: Minoru Yokoo, Teppei Fujiwara*, Masamichi Hirabayashi*, Junpei Matsushima*
Exterior: PLACEMEDIA, Landscape Architects Collaborative
客服
消息
收藏
下载
最近



















