查看完整案例

收藏

下载
意大利佩斯卡拉的市中心建立在现代城市肌理之上,亚得里亚海岸及其线性发展成为关键的参照点。Giovanni Vaccarini 在佩斯卡拉设有工作室多年,并在这一背景和塑造其文化的影响下,不断探索自己的建筑理念。作为意大利建筑界的影响力人物,Vaccarini 通过多个作品和项目深入研究了私人空间与公共空间之间的相互作用,涉及不同类型和尺度的建筑,包括住宅、学校、体育场、能源生产设施和医院等。对他而言,佩斯卡拉是一座实验性的城市,一个可以重新定义建筑类型的试验场。其中,“小公寓楼”(palazzina)这一多户住宅建筑类型,成为了他研究的重点。
The center of Pescara, Italy is built on a modern urban fabric where the Adriatic coast and its lineardevelopment serve as a key reference. Giovanni Vaccarini, whose studio has been based in Pescarafor many years, has repeatedly explored his architectural ideas within this context and the culturesthat have shaped it. Vaccarini—an influential figure in Italian architecture—has developed numerousworks and projects examining the interplay between private and public spaces, spanning diversebuilding types and scales: residences, schools, stadiums, energy production facilities, and hospitals.For Vaccarini, the city of Pescara is a place of experimentation, where he can modify establishedtypologies. The palazzina, a multi- family residential building and a focal point of his research, is one such typology.
▼项目外观,exterior of the project©Anna Positano
Vaccarini 曾写道:“小公寓楼是一种极具混合性和自由性的建筑类型,几乎成为城市肌理的重要组成部分。尽管它常与房地产投机联系在一起,但这一建筑类型在历史上也催生了意大利战后一些最杰出的建筑作品,例如 Luigi Moretti、Vincenzo Monaco、Amedeo Luccichenti、Gio Ponti、Angelo Mangiarotti 和 Bruno Morassutti 的经典之作。”
“The palazzina,” wrote Vaccarini, “is a hybrid, anarchic architectural typology par excellence, one that has led to the construction of entire segments of the urban fabric. Often associated with real estate speculation, the palazzina has, over time, given rise to masterful works by some of Italy’s best postwar architects, such as Luigi Moretti, Vincenzo Monaco, Amedeo Luccichenti, Gio Ponti, Angelo Mangiarotti, and Bruno Morassutti.”
▼项目外观,exterior of the project©Anna Positano
位于 Via De Amicis 154 号的新建筑,靠近两年前在佩斯卡拉海滨建成的 Riviera 107。在该项目中,Giovanni Vaccarini 已开始尝试对“小公寓楼”在亚得里亚海背景下的重新诠释。这座建筑因其独特精致的构图选择,以及住宅建筑与周边公共领域的融合方式,而受到媒体与评论界的关注。与位于 Via De Amicis 的新建筑类似,Riviera 107 并未将自身局限在私有边界之内,也未在街道界面上形成强硬的姿态,而是采用了一种中介式的混合解决方案,从而重新定义了建筑在城市中的角色。这种方法使建筑与环境产生互动,挑战传统上对私密与公共空间的分隔认知。
The new building at Via De Amicis 154 is located close to Riviera 107, completed two years prior along Pescara’s seafront, where Giovanni Vaccarini had already begun exploring his reinterpretation of the palazzina within the Adriatic context. That earlier project drew attention from the press and critics, not only for its original and refined compositional choices but also for its approach to blending the residential building with the public realm of its urban surroundings. Similar to the new building on Via De Amicis, Riviera 107 did not confine itself within a private boundary nor assert itself along the street frontage. Instead, it found a hybrid, intermediate solution that redefined the building’s role within the city. This approach opens up the architecture to engage with its context, challenging the traditional separation of private and public space.
▼建筑外观,exterior of the building©Anna Positano
Giovanni Vaccarini 的新作位于靠近海岸的街区转角,距中央 Piazza Salotto 仅几步之遥。建筑周围是林荫大道,以及多座具有建筑价值的地标性建筑。Via De Amicis 154 号的“小公寓楼”展现了一种当代建筑愿景,强调与城市肌理和公共空间的连接。建筑以层叠的平台形态呈现,环绕公寓的宽阔露台向不同方向投射至城市之中。居住空间似乎围绕建筑核心向外扩展,在地面层呈现极小的占地面积,由此形成一种延展与收缩之间的动态关系。这种构造方式充分利用了视线通廊,建立起与周围环境的视觉和空间联系,使建筑呈现出一种面向城市、开放而活跃的姿态。
This new work by Giovanni Vaccarini is located on the corner of an urban block near the coast, just a short distance from the central Piazza Salotto. Surrounded by tree- lined avenues and several architecturally significant buildings, the palazzina at Via De Amicis embodies a contemporary vision with a strong emphasis on connecting with the surrounding urban fabric and public space. The building emerges as a series of stacked planes with lush terraces that fully encircle the apartments, projecting toward the city in multiple directions. The inhabited spaces seem to expand centrifugally around the building’s central core, which has a minimal footprint at ground level, creating a dynamic interplay of extension and contraction. This configuration takes advantage of sight lines and establishes visual and spatial connections with the surrounding area, creating an engaging, outward-looking relationship with its environment.
▼建筑街景,street view of the building©Anna Positano
从街道平面图来看,建筑的中央核心区仅占据了一部分可建设用地。该核心区域主要用作通往上层的入口,并设有一条步行通道,使人流可以从建筑的一侧贯穿至另一侧。在上层楼面,该设计逻辑被反转,每层空间向外不同程度地扩展,使得建筑的轮廓开放且富有动态变化。Vaccarini 在此项目中的目标是重新诠释街区建筑类型,并以不同寻常的分布方式进行空间组织,使建筑在面对海景和城市环境时,呈现出一种独特的形式。最终,该建筑如同一组层叠的别墅,而非传统的小公寓楼。
▼场地平面,site plan©Giovanni Vaccarini Architetti
Viewed in plan at street level, the building presents a compact central core that occupies only aportion of the buildable lot. This central area primarily serves as an entrance to the upper floors andfeatures a pathway that continues the sidewalk, inviting visitors to move through the volume fromone side to the other. On the upper levels, this concept is reversed, with each floor expanding tovarying extents, creating a building profile that is both open and dynamic. Vaccarini’s approach to this project aims to reinterpret the block building type, incorporating a unique distribution concept shaped by unexpected sea views and itsurban context. As a result, the palazzina takes on the appearance of a striking series of stackedvillas.
▼面向海景的独特形式,unique form facing the sea©Anna Positano
Giovanni Vaccarini 评价道:“Via De Amicis 154 号的建筑并非一座宫殿(palazzo),但也不是一栋别墅(villa)。它是一种混合体,一种对历史城市中的既有建筑类型和城市形态的变革。”
“The building on Via De Amicis is nota palazzo,” stated Giovanni Vaccarini, “but it’s not a villa either. It’s a hybrid,a deformation that has disrupted the established relationship between building type and urbanmorphology typical of thehistoric city.”
▼对历史城市中的既有建筑类型和城市形态的变革,
disrupted the established relationship between building type and urban morphology typical of thehistoric city©Anna Positano
在 Vaccarini 的作品中,经常可以看到对植物形态的观察和模仿。佩斯卡拉的 Via De Amicis 154 号建筑仿佛是一个具有生命力的有机体,渴望吸收光线、捕捉景色,并与外界建立联系。建筑的六层主体依据城市环境的可能性向外延展,试图在海岸与山脉之间的空隙中寻找最佳视角。在西北侧,建筑的悬挑部分最为明显,六根纤细的不规则钢柱(其中三根为单独柱体,三根成对分布)进一步强化了建筑的垂直感,同时增强了整体结构稳定性。▼剖面,section©Giovanni Vaccarini Architett
In Vaccarini’s work, the observation and emulation of plant forms is often present. The Via De Amicisbuilding in Pescara, for instance, can be seen as a living organism driven by the need to seek outlight, views, and opportunities for connection. Its six above-ground floors extend variably, reachingoutward where the urban environment allows, in search of glimpses of the landscape between thesea and the mountains. On the northwest side, where the projection is most pronounced, a series ofslender steel columns—three single and three paired— stand irregularly. These columns emphasize the perception of verticality while also contributing to the structural integrity of the building.
▼入口长廊,corridor at entrance©Anna Positano
在对当代城市空间的探索中,这座建筑还通过一系列隐蔽的灯光线条进一步强化了其与城市的关系。这些光线从中央核心区辐射出来,主要设置在外挑楼板的底部,并延伸至部分立面墙体,使建筑在夜间呈现出独特的亮点。这一照明设计不仅加强了建筑与周围空间的视觉联系,也赋予其在公共领域中的辨识度和参与感。
The search for contemporary urban space is also evident in the decision to highlight the building with numerous subtle lines of light that radiate from the central core. Primarily placed in the undersides of the protruding floors, these light lines often continue along the vertical walls, emphasizing the theme of extending the living experience into the city. In doing so, they not only enhance the building’s visual relationship with the surrounding space but also give it a sense of recognition and participation within the public realm.
▼一系列隐蔽的灯光线条,numerous subtle lines of light©Anna Positano
▼大堂一系列隐蔽的灯光线条,
numerous subtle lines of light in the lobby©Anna Positano
Vaccarini 解释道:“正如亚得里亚海沿岸的许多建筑在夜间化身为发光的‘萤火虫’,Via De Amicis 154 号的建筑也穿上了一袭‘光之长袍’。照明设计灵感来源于18世纪阿布鲁佐地区的传统饰品——‘Presentosa’。这种星形吊坠由金色丝线放射状向外延展,与建筑的灯光设计理念不谋而合。”
Just as many architectures along the Adriatic coast transform into bright fireflies at night, the building at Via De Amicis 154 wears a luminous evening gown. The lighting design,” notes Giovanni Vaccarini, “is inspired by the ‘presentosa,’ an 18th- century Abruzzese jewel, where a series of golden filaments radiate from the central part of a star-shaped pendant.”
▼夜间的线条线条,subtle lines of light at night©Anna Positano
▼夜景,night view©Anna Positano
▼地下一层平面,basement floor plan©Giovanni Vaccarini Architetti
▼一层平面,ground floor plan©Giovanni Vaccarini Architetti
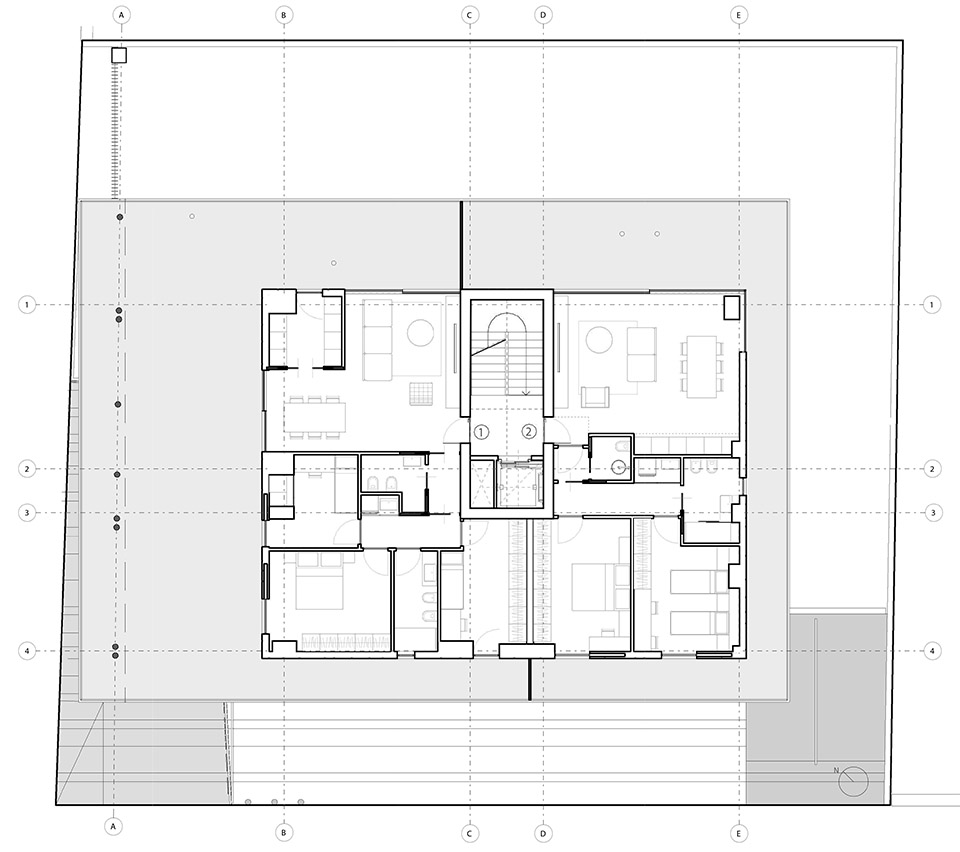
▼二层平面,first floor plan©Giovanni Vaccarini Architett
▼三层平面,second floor plan©Giovanni Vaccarini Architett
▼立面,elevation©Giovanni Vaccarini Architett
▼剖面,section©Giovanni Vaccarini Architett
Project name:De Amicis 154
Client: ELEA srl
Location: Pescara, Italy
Architect: Giovanni Vaccarini Architetti
Instagram: @giovannivaccarini
Project team: Giovanni Vaccarini, Matteo Preite (senior architect – project coordinator), Herman Carbonetti (senior architect )
Construction site manager: Raffaele Mancinelli
Artistic direction Giovanni Vaccarini Architetti Structural engineering Lorenzo Rinaldi
Mechanical engineering Beta srl
Main contractor ELEA srl, Antonello Ricci (Costruction manager)
Program Residential
Gross floor area 1,300 square meters
Cost 4,500,000.00 Euros
Project schedule Design: February – October 2020
Construction: October 2022 – March 2024
Photographer: Anna Positano, Gaia Cambiaggi Studio Campo
客服
消息
收藏
下载
最近



































