查看完整案例

收藏

下载
河源市中小学科普教育馆
01
项目概况PROJECT OVERVIEW__
河源市中小学科普教育馆位于既有校园内,建筑面积3577㎡。建筑规模虽小,但具有示范性、标杆性和专题性特点。首先,本项目被定位打造为国内一流的高质量科普教育馆,作为省中小学科普教育示范工程,供全市乃至全省中小学生参观学习。其次,当下针对中小学人群服务的小型科普馆极少,本项目的建设可为今后类似的场馆建设提供经验参考。最后,本项目的小规模条件很难实现综合性展览,主要定位于专题性科普,后续建设的场馆科普主题由各个学校根据自身的教学课题、展示内容等情况因地制宜,形成特色,使每个场馆都独一无二,避免简单的复制。
基于定位,设计团队认为,本项目除了满足学生的科普教育之外,还应在其他时段成为所在学校新型教学方式的开展场所,以提高场馆的利用率。因此,场馆的设计除了满足博览建筑的要求之外,更应与当下的教育发展新特点相适应,与所在学校的新型教学需求相适应,打造为常规学校空间之外的“非正式课堂”。
02
设计特点DESIGN FEATURES__
功能整合 提升效率
建筑规模较小,若每个空间均定义使用性质,并没有太多房间,使用率反而较低。设计根据当代教育与展览发展最新趋势,将整个场馆分为两大功能区:相对独立密闭的科普观摩区和开放教学区。前者主要包含观摩展厅,后者则十分灵活,没有人为定义空间性质,由后期师生根据教学需要自行重组。
双轨路径 立体流线
常规展览流线主要是平面线性的,而面对本项目小规模的前提,平面流线会被楼层所打断,削弱参观连续性。设计将流线设置为立体多维,并处理为两个参观序列。参观者从首层两个不同的入口开始参观,沿着各自流线参观完毕之后再通过垂直交通到达对方流线的起始,进而完成完整的科普观摩。类似空间双螺旋结构的流线设计可实现两股人流同时参观又互不干扰,提升参观效率。
流线空间 合一表达
功能分区和流线设计的特征,随即反映到空间形式上。整个建筑为一个方盒子,除去两条封闭的、盘旋而上的科普展厅之外,剩下的部分即为公共开放的教学空间。流线组织塑造空间特征,空间形式反映流线组织。立面设计也以微透的聚碳酸酯板全覆盖,并在主要空间处开口,立面形式反映空间特征。
多元空间 适应教学
除了科普观摩展厅之外,开放教学空间类型多样,形式多元。在空间形式上,大小空间套叠,集小组讨论与制作、大群阶梯聚集与交流为一体。在空间尺度上,错层、跃层的处理产生出多样的空间尺度。整个空间具有极强适应性,促使教学行为随时随地发生。
节能低碳 示范标杆
低碳环保是设计一直贯彻的理念,并在方案前期就咨询相关专业公司进行设计。建筑中庭上方设置天窗,在保证室内稳定的物理环境下,可开启窗扇产生自然拔风效果,利于节能减排。外立面采用聚碳酸酯板,不仅具有良好的遮阳效果,还使室内光线变得十分柔和,满足教学需要。同时在立面板材上沿着开放空间开设通风洞口,以降低空调能耗。此外,设计积极采用当下成熟的绿色技术,如光伏板、小型风力发电、温变玻璃等装置,充分利用可再生能源,力争打造“零碳建筑”。本项目也获得了由中国建筑节能协会颁发的《近零能耗建筑》标识。
设备教材 拓展教学
设计秉持“整个建筑都是展品”的理念,除空间外,还将设备管线、构造节点等内容对学生开放,成为科普内容的拓展。室内天花各类设备管线直接裸露,打造沉浸式学习环境;屋顶空调、绿色技术设备成为设备科普区,营造特色科普场所。
屋顶花园 室外课堂
设计充分利用屋顶空间,打造室外课堂与室外展场。屋面设置参观步道、植物园、建筑设备区、公共活动区,将学习行为延伸至室外。
03
设计图纸DRAWINGS__
总平面图 GENERAL PLAN
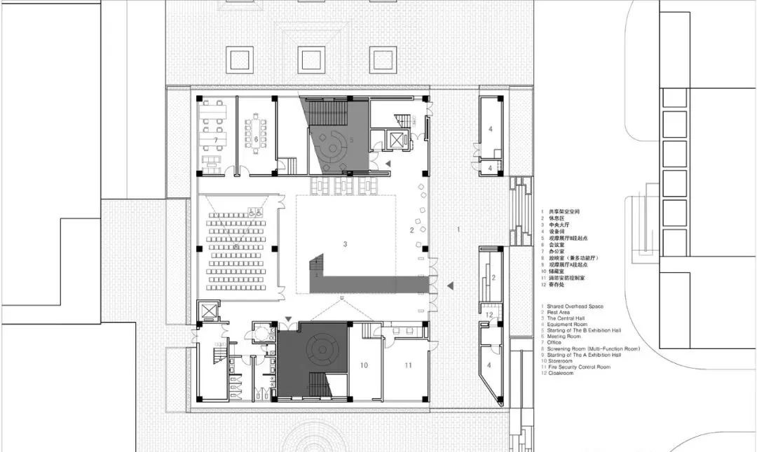
首层平面图 FIRST FLOOR PLAN
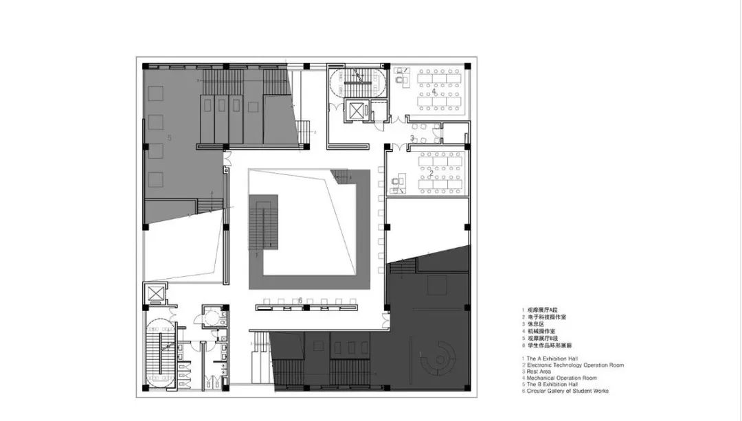
二层平面图 SECOND FLOOR PLAN
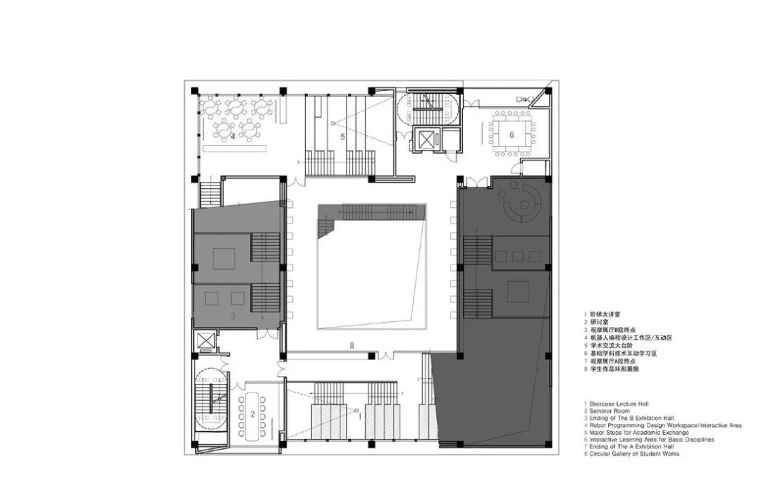
三层平面图 THIRD FLOOR PLAN
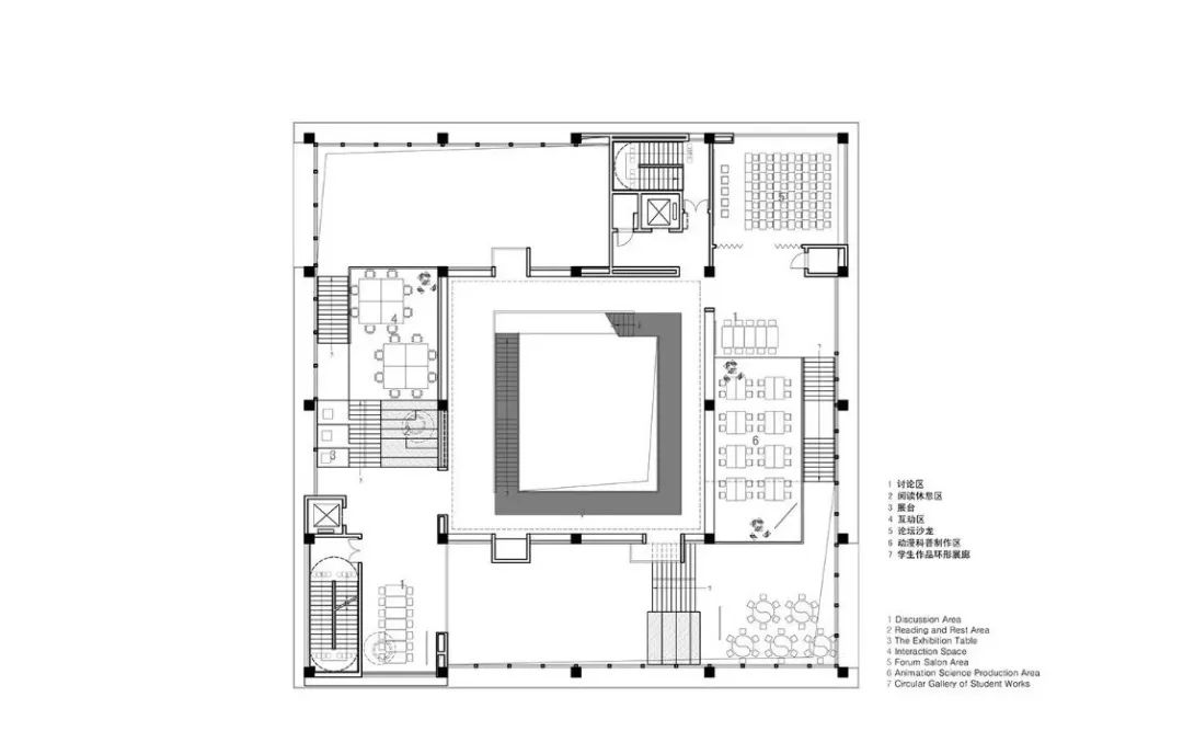
四层平面图 FOURTH FLOOR PLAN
五层平面图 FIFTH FLOOR PLAN
剖面图 SECTION
空调:王钊、程国珍、苏鹤阳
弱电:黄晓峰、陈卫彬、黄志炜、苏瑞昌
景观:陈天宁
节能:张欣欣
摄影:EVI鹰视印象(谭浩贤)、邓阳阳
客服
消息
收藏
下载
最近




















