知末
知末
创作上传
VIP
收藏下载
登录 | 注册有礼

女孩儿童房设计项目丨Design Chubukova Svetlana

2025/03/05 19:15:56
查看完整案例
微信扫一扫
收藏
下载
翻译
Дизайн-проект детской комнаты для девочек.
г. Люберцы
Design Chubukova Svetlana
Варианты планировочного решения детской комнаты.
女孩儿童房设计项目丨Design Chubukova Svetlana-4
女孩儿童房设计项目丨Design Chubukova Svetlana-5
女孩儿童房设计项目丨Design Chubukova Svetlana-6
女孩儿童房设计项目丨Design Chubukova Svetlana-7
女孩儿童房设计项目丨Design Chubukova Svetlana-8
Интерьерный коллаж детской комнаты.
女孩儿童房设计项目丨Design Chubukova Svetlana-10
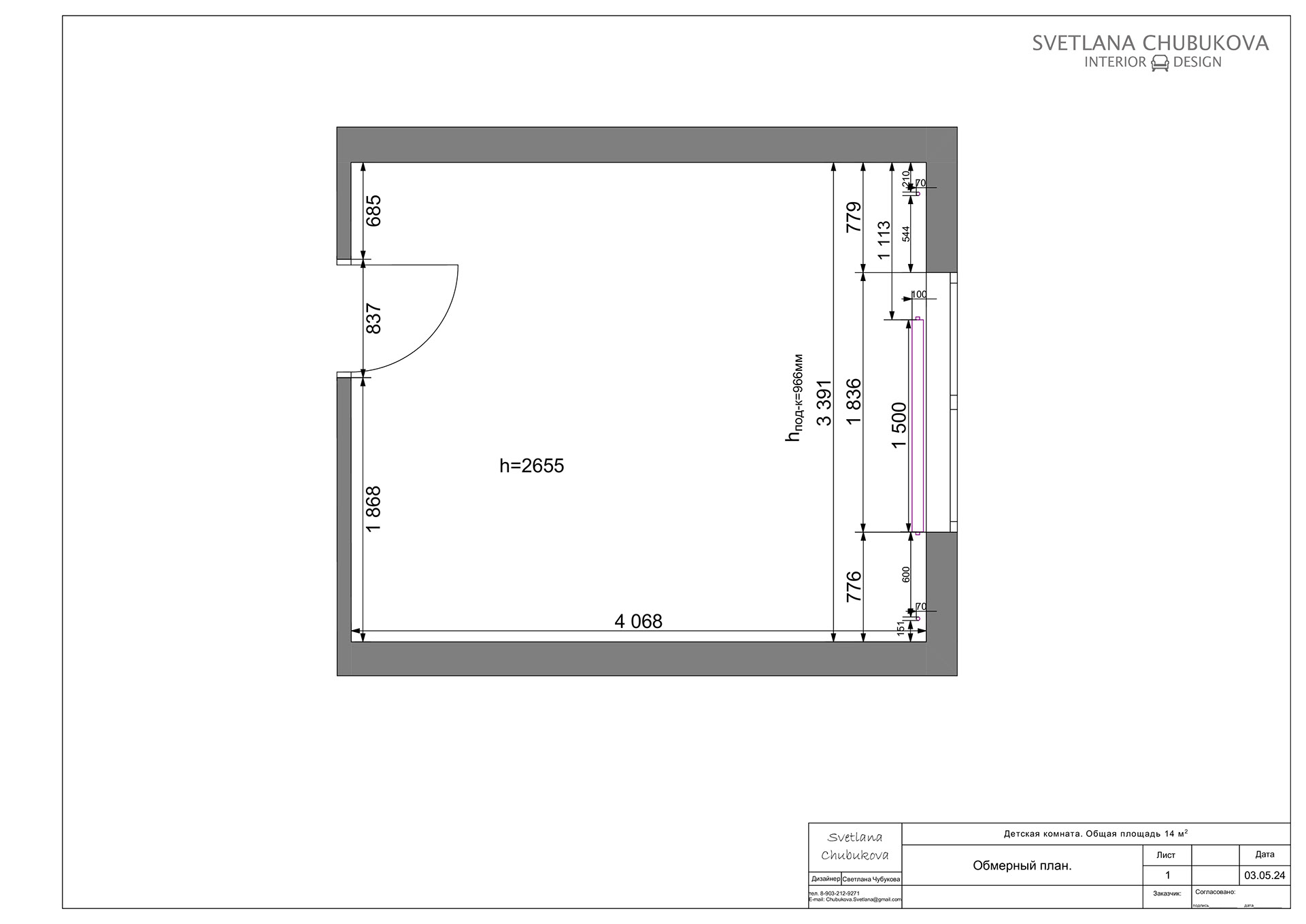
Техническая документация.
女孩儿童房设计项目丨Design Chubukova Svetlana-12
女孩儿童房设计项目丨Design Chubukova Svetlana-13
女孩儿童房设计项目丨Design Chubukova Svetlana-14
女孩儿童房设计项目丨Design Chubukova Svetlana-15
女孩儿童房设计项目丨Design Chubukova Svetlana-16
女孩儿童房设计项目丨Design Chubukova Svetlana-17
女孩儿童房设计项目丨Design Chubukova Svetlana-18
女孩儿童房设计项目丨Design Chubukova Svetlana-19
南京喵熊网络科技有限公司 苏ICP备18050492号-4知末 © 2018—2020 . All photos and trademark graphics are copyrighted by their owners.增值电信业务经营许可证(ICP)苏B2-20201444苏公网安备 32011302321234号
客服
消息
收藏
下载
最近