查看完整案例

收藏

下载
案例概述
Case Description
设计精粹
Exciting space
下借光、上借景
深远不尽
框景
对比与平衡
和谐与整体性
重点与节奏
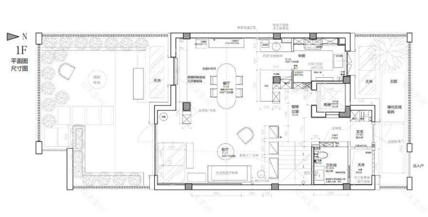
1F设计图
1F Design Drawi
ng
-1F、-2F设计图
-1F/-2F Design Drawi
ng
2F设计图
2F Design Drawi
ng
3F设计图
3F Design Drawi
ng
原 创 设 计 师
Original Designer
佳 案 共 赏
小 伙 伴 们
Buddies
咨询
设计主管:大包
客服
消息
收藏
下载
最近





























































