查看完整案例

收藏

下载

翻译
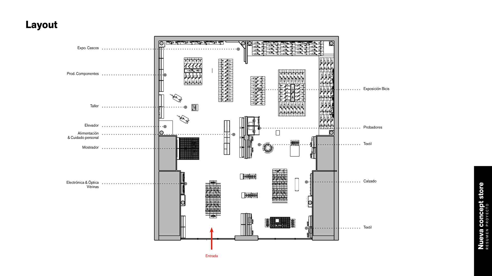
The new retail concept redefines the brand’s identity, reinforcing its expertise and leadership in the cycling industry. The design creates a unique and distinctive space, highlighting the wide product selection while offering an engaging customer experience.
Beyond store design, the project includes custom furniture development, lighting installation, and the creation of key brand elements, shaping a new chapter for Mammoth’s retail presence.
客服
消息
收藏
下载
最近


























