查看完整案例

收藏

下载
“Hangar 35”是一个以摩托文化为核心的多功能俱乐部,集餐饮、酒吧和摩托车补给站于一体,吸引并服务摩托爱好者。项目的核心理念是将机车工业文化与现代商业空间完美结合,以激活新的消费场景,为到访者提供独特的文化消费体验。
“Hangar 35” is a multifunctional club centered around motorcycle culture, combining dining, a bar, and a motorcycle pit stop to attract and serve motorcycle enthusiasts. The core concept of the project is to seamlessly blend motorcycle industrial culture with modern commercial space, creating a vibrant new consumption scene and offering visitors a unique cultural experience.
项目概述
Project Overview
/
项目位于浙江省宁波市宁海县的“来 IN 南”互联网文创园,原址为 1983 年建成的老棉纺厂,见证了宁海市的工业化历程。空间设计以强烈的工业风格致敬场地记忆,同时展现了业主作为摩托爱好者和收藏家的独特身份。机车文化元素巧妙融入每个角落,创造出摩托文化展示的综合场所,旨在成为全国摩托爱好者的聚集地。
The project is located in the “Lai IN South” Internet Cultural and Creative Park in Ninghai County, Ningbo, on the site of a former cotton mill built in 1983, a testament to the region’s industrial heritage. The design combines a bold industrial style with the owner’s passion for motorcycles, reflecting his identity as both an enthusiast and a collector. Motorcycle culture elements are seamlessly woven into every corner, creating a dynamic venue for showcasing motorcycle culture, with the goal of becoming a national hub for motorcycle enthusiasts.
“Hangar” 意为机库,是为摩托车提供保养、改装与存放的主题空间;而 “35” 则作为业主夫妇的幸运数字延续到代表他们独特身份的俱乐部空间中,同时也隐喻了 “三五好友” 相聚于此的美好期待。
“Hangar” refers to a themed space for motorcycle maintenance, customization, and storage, while “35” is the lucky number of the owner and his wife, symbolizing their unique identity within the club space. It also subtly evokes the hope of friends gathering here, just like the saying “three or five good friends”.
设计概念
Design Concept
/
摩托车的现代车库 / Modern Motorcycle Garage
Hangar 35 的建筑形式汲取了飞机机库的造型为灵感。传统飞机机库的核心功能是为飞机提供维护、停放和保护的空间,不仅能够容纳大型机械,还能确保操作的便利性和高效性。这与 Hangar 35 中作为摩托车保养改造车间的功能不谋而合。
The architectural form of Hangar 35 is inspired by the design of an aircraft hangar. The core function of a traditional aircraft hangar is to provide a space for maintenance, parking, and protection of aircraft, capable of accommodating large machinery while ensuring operational convenience and efficiency. This concept aligns perfectly with the function of Hangar 35, which serves as a motorcycle maintenance and customization atelier.
整体建筑形态基于机库的经典拱形结构,现代感十足的穹顶采用黑色金属与弧形玻璃交织覆盖,呈现简洁而富有力量的独特风格。两侧的立面玻璃幕墙充分引入自然光,营造明亮开阔的室内空间,并将公园景观与室内环境完美融合,提升了视觉舒适度与空间感。
The overall architectural form is based on the classic arched structure of a hangar, with a modern, striking dome made of black metal and curved glass, presenting a simple yet powerful and unique style. The glass curtain walls on both sides allow ample natural light to flood the interior, creating a bright and spacious atmosphere while seamlessly blending the park’s landscape with the indoor environment, enhancing both visual comfort and spatial perception.
摩托文化与工业记忆
Motorcycle Culture and Industrial Memory
/
摩托车的T台秀场 / Motorcycle Catwalk
嵌入幕墙系统的垂直升降平台,被称为“机车T台”,成为 Hangar 35 最引人注目的标志性视觉焦点,巧妙融合了功能性与艺术感。
The vertical lift platform embedded in the curtain wall system, known as the “Motorcycle Catwalk,” becomes the most striking visual focal point of Hangar 35, skillfully blending functionality with artistry.
当“T台”位于首层的开放户外区域时,机车不仅可供客人近距离触摸与体验,还成为餐厅内部用餐者的独特沉浸式窗景。机车的精致与力量感,与周围的互动氛围相映成趣,使每一台机车都成为热议的焦点和拍照打卡的亮点。
When the “catwalk” is positioned in the open outdoor area on the ground floor, motorcycles are not only accessible for guests to touch and experience up close, but also become a unique immersive window view for diners inside the restaurant. The elegance and power of the motorcycles, combined with the surrounding interactive atmosphere, make each bike a topic of conversation and a photo-worthy highlight.
与此同时,T台还成功解决了机车庞大厚重不易移动但每晚需安全存放的运营难点。平台缓缓升起,机车从一楼的开放互动品转变为二楼室内空间的艺术展品,嵌入在建筑立面之中。超白玻璃幕墙将这场 “机车T台秀” 的升降动态美感展现得淋漓尽致,将其化身为俱乐部中最具冲击力的视觉展示艺术品。
At the same time, the catwalk effectively solves the operational challenge of securely storing large, heavy motorcycles each night despite their immobility. As the platform rises, motorcycles transform from interactive exhibits on the ground floor into art pieces displayed within the indoor space on the second floor, seamlessly integrated into the building’s facade. The ultra-clear glass curtain wall vividly showcases the dynamic beauty of this “Motorcycle Catwalk Show,” turning it into the most visually striking piece of art within the club.
速度与激情/ The Sense of Speed
天花板采用铝板拼接,形成拱形结构,带有深邃的纵向线条,配合条状线性灯光的设计,创造出动感十足的视觉体验。站在二楼,灯光效果让人仿佛置身于一条飞驰的隧道之中,传递出自由与速度的感觉,完美呼应了机车文化的激情与动力。
The ceiling is designed with aluminum panels joined together to form an arched structure, featuring deep longitudinal lines. This roof is paired with strip linear lighting to create a dynamic visual experience. Standing on the second floor, the lighting effect makes one feel as if they are inside a speeding tunnel, evoking sensations of freedom and speed, perfectly echoing the passion and power of motorcycle culture.
外墙侧面的灯光设计则汲取了摩托车刹车尾灯的灵感,采用红色的圆弧型灯光装饰,点缀建筑立面。这种设计既醒目,又充满速度感,赋予建筑独特的标识性,同时营造出强烈的动感氛围。
The lighting design on the exterior walls draws inspiration from motorcycle brake lights, using red, arc-shaped lighting to decorate the façade. This design is not only striking but also full of a sense of speed, giving the building a unique identity while creating a strong, dynamic atmosphere.
纹理与光泽/ Texture Research
整个空间以一系列黑色元素构成统一的视觉体系。除了特别挑选的热轧钢板,设计还在不同材料的黑色色调上进行了精细协调。以黑色铝板墙面为主基调,通过调整其他黑色涂料的光泽度,使其与铝板墙面的反光效果相一致,形成了高度统一的视觉识别系统,并为整体空间注入了极具科技感与视觉冲击力的氛围。
The entire space is unified through a series of black elements, creating a cohesive visual system. In addition to the carefully selected hot-rolled steel panels, the design finely coordinates the similar shades of black across various materials. With black aluminum panel walls as the main tone, the gloss levels of other black coatings are adjusted to match the reflective effects of the aluminum, establishing a highly unified visual identity system that infuses the space with a sense of cutting-edge technology and visual impact.
热轧钢板 Wall Materials /
室内墙面采用直接从工厂挑选的热轧钢板,保留了浓厚的工业化机车元素。热轧钢板表面因温度变化产生的随机纹理及机油浸渍的痕迹,赋予空间一种独特的视觉冲击力。
The interior walls feature hot-rolled steel panels directly sourced from the factory, preserving the strong industrial and motorcycle elements. The random textures and oil stains created by temperature changes on the surface of the steel panels give the space a distinctive visual impact.
沥青路面 Floor Materials / 为了强调机车身份——飞驰于沥青道路,但避免沥青可能带来的安全隐患和污染问题,经过多次材料筛选和测试,室内最终选用了视觉效果类似于沥青的胶粘石地面。室内的胶粘石地面与室外的沥青道路无缝衔接,形成了视觉上的整体统一,既保留了Hangar设计的连贯性,又提升了空间的安全性和耐用性。
To emphasize the motorcycle identity—racing on asphalt roads—while avoiding the safety risks and pollution issues that asphalt may bring, the final interior material selected after multiple tests is a resin-bound gravel floor that visually resembles asphalt. The indoor resin-bound floor seamlessly connects with the outdoor asphalt road, forming a visually cohesive unity. This maintains the continuity of the Hangar design while enhancing the safety and durability of the space.
多元空间:激发全新社交体验
Multifunctional Space Unlocking New Social Experiences / milanesi l paiusco 的设计成功将这一传统建筑形式转化为充满活力的多功能主题空间。
milanesilpaiusco’s design successfully transforms this traditional architectural form into adynamic, multifunctional thematic space.
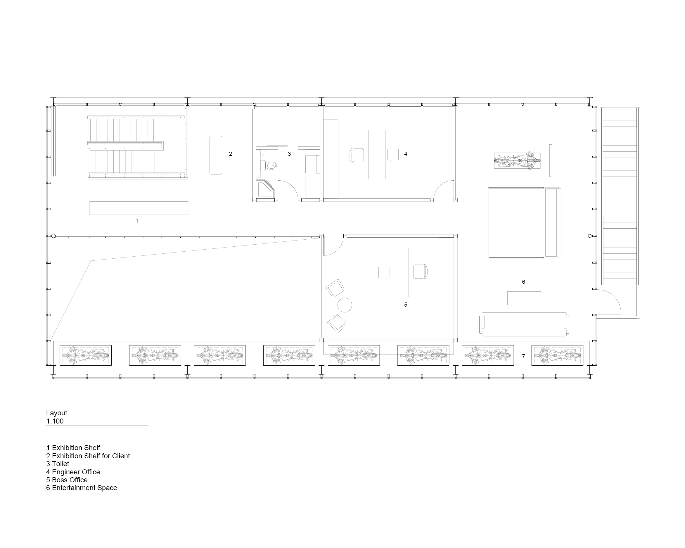
项目的一楼划分为对外开放的两大功能区:餐饮酒吧区和机车改装工作室,采用南北布局进行功能分隔,两个区域各自拥有独立的出入口,并通过中间的一侧通道相连。
The first floor of the project is divided into two main areas open to the public: a dining bar area and a motorcycle modification atelier, separated by a north-south layout. Each area has its own independent entrance and is connected by a door on one side in the middle.
南侧为餐厅区,亦是项目正立面的主入口,面向餐饮顾客及潮流文化爱好者开放。餐厅配备了厨房、吧台以及挑空的用餐区,营造出宽敞的空间感。
The south side is the dining area, which also serves as the main entrance, as the front façade of the project, open to dining customers. The restaurant is equipped with a kitchen, bar, and a double-height dining area to create a spacious atmosphere.
北侧为机车改装工作室,专门提供摩托车的维护保养和定制改装服务,配备可完全开启的折叠门系统,方便摩托车的自由进出和整修操作。
The north side is the motorcycle modification atelier, providing specialized maintenance and custom modification services for motorcycles. It features a fully-openable folding door system for access and repair operations for the motorcycles.
二层空间设计为私密的办公室和聚会场所。客户通过北侧的工作室楼梯或南侧外立面的楼梯进入二层。The second-floor space is designed as a private area for client offices and club meeting venues. Clients can access the second floor via the staircase from the north-side customization atelier or the stairway on the south facade.
展望
Looking Forword
/
在 Hangar 35,机车如同在不同空间中高速穿梭,而这里则如同一个机库,成为机车爱好者们的停驻之地。来自各地的骑行者通过俱乐部的活动、游戏和餐厅聚集在一起,形成一个共享机车文化的社群,使Hangar 35 不仅是一个休闲场所,更是摩托文化的聚集地。In Hangar 35, motorcycles seem to speed through different spaces, while the venue itself acts like a hangar, a resting place for motorcycle enthusiasts. Riders from various locations gather here through club activities, games, and dining experiences, creating a community that shares a passion for motorcycle culture. Hangar 35 is not just a leisure venue but a hub for motorcycle culture.
项目信息
Project Info
项目名称:Hangar35 摩托俱乐部
项目地址:浙江省宁波市宁海
项目业主:Hangar35
项目类型:建筑设计、室内设计
设计及项目管理:milanesi | paiusco design and research
完成年份:2024年9月
主创设计师:Claudio Milanesi、Diego Paiusco
设计团队:李哲桢,李星语,唐得智
驻场建筑师:唐得智
占地面积:325㎡
建筑面积:552㎡
施工单位:宁波鸿城装饰工程有限公司
导视设计:13th LAB
摄影版权:SALOME STUDlO, milanesi | paiusco
Project Name: Hangar35 Moto Pub
Project Location: Ninghai, Ningbo, Zhejiang Province
Project Owner: Hangar35
Project Type: Architectural Design, Interior Design
Design and Project Management: milanesi | paiusco design and research
Completion Year: September 2024
Lead Designers: Claudio Milanesi, Diego Paiusco
Design Team: Li Zhezhen, Li Xingyu, Tang Dezhi
On-Site Architect: Tang Dezhi
Site Area: 325㎡
Building Area: 552㎡
Contractor: Ningbo Hongcheng Decoration Engineering Co., Ltd.
Signage Design: 13th LAB
Photography Copyright: SALOME STUDIO, milanesi | paiusco
客服
消息
收藏
下载
最近
























