查看完整案例

收藏

下载
这是我们为知林托管设计的第二家门店。托管是为小学生提供课后照料与作业辅导服务空间,面积仅75㎡。我们希望这个小空间能为孩子们带来一段对于家、城市以及美的童年回忆。
This is the second store we designed for Zhilin Caring. The caring space provides after-school care and homework assistance for elementary school students, covering an area of only 75 square meters. We hope this small space can bring children a childhood memory of home, the city, and beauty.
房屋 house
/
托管作为校园与家庭之间的社会空间,则承继着前者的稳定秩序与后者的温馨意象。
As a social space between the campus and the family, the caring space inherits the stable order of the former and the warm imagery of the latter.
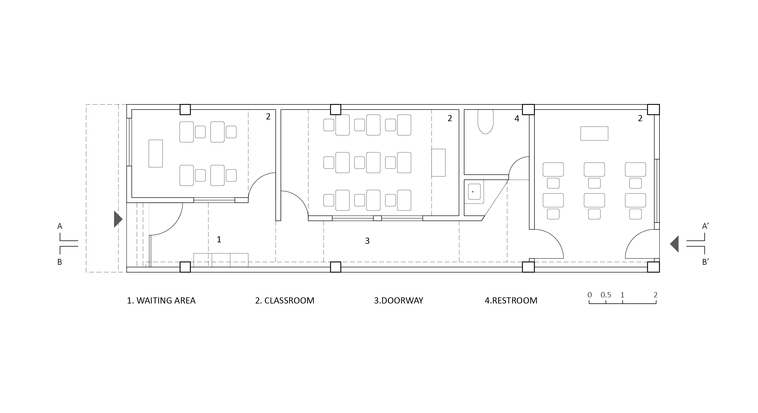
通过将教室的侧墙延伸进空间向上延伸成坡顶,我们试图在横向“走廊-房间”的功能组合上架置纵向序列“房屋”意象。门、窗、梁、柱、坡顶、门洞等建筑的基本构件被鲜艳的色彩强化,试图以儿童画的方式,勾勒最原始却又最强烈的房屋意象。结合原有结构与墙绘形成的柱列则利用空间中的透视效果,穿插在坡屋顶的洞口下,表达着对房屋坡顶的承托关系。从一个个门洞下穿过,孩子们回到自己的“家”。
By extending the side walls of the classroom upward into a sloped roof, we attempt to overlay the vertical sequence of the “house” imagery onto the horizontal functional combination of “corridor-room.” The basic architectural components such as doors, windows, beams, columns, sloped roofs, and doorways are enhanced with vibrant colors, aiming to outline the most primitive yet intense imagery of a house in a childlike drawing style. The columns formed by the combination of the original structure and wall paintings utilize the perspective effects in the space, interspersing beneath the openings of the sloped roof, expressing the supportive relationship of the sloped roof to the house. As the children pass through each doorway, they return to their “home.”
点、线、面 points, lines, and surfaces
/
对儿童来说,平面的色彩与形状无疑比立体的造型或构成更易感知、识别。因此,空间被瓦解为平面的组合,而形象被还原成点线面的拼贴。
For children, flat colors and shapes are undoubtedly easier to perceive and recognize than three-dimensional forms or compositions. Therefore, space is broken down into combinations of flat elements, and images are reduced to collages of points, lines, and surfaces.
所有界面均为不同材料与色彩界定的几何平面:窄长条木饰面店招、长方形玻璃门、绿白条纹方窗、古铜圆形把手、窄长条玻璃砖、绿色方块梁截面。
All interfaces are defined by geometric planes of different materials and colors: a narrow elongated wooden veneer sign, a rectangular glass door, green and white striped square windows, antique bronze round handles, narrow elongated glass bricks, and green square beam cross-sections.
在纷繁形状的中心,标识主入口与教室入口的亮黄色半圆、三角、方块,利用透视的短缩,将乏味的走廊空间体验转化为与一个个切面的相遇。
At the center of the diverse shapes, bright yellow semicircles, triangles, and squares mark the main entrance and classroom entrance, using perspective shortening to transform the mundane corridor experience into encounters with various facets.
边界 boundary
/
托管位于住宅区沿街的裙楼,正对温州市广场路小学。与其他裙楼的商铺一起,既构成街道界面,也是社区与城市间的边界。作为有厚度的边界中一块狭长的空间,托管空间成为孩子们在社区与城市间的日常通道。
The caring space is located in a street-level podium within a residential area, directly facing Wenzhou Square Road Primary School. Together with other shops in the podium, it forms the street interface and serves as a boundary between the community and the city. As a narrow space within this thick boundary, the caring space becomes a daily passage for children between the community and the city.
玻璃砖与透明玻璃门组成的入口,形成社区裙楼向城市打开的唯一豁口。走廊空间通过连续的洞口,呈现城市与社区间的门廊通道,也是孩子们每天奔跑通行的通道。家长在门廊一侧等待孩子,与他们一道,从后门回到社区。
The entrance, composed of glass bricks and a transparent glass door, forms the only opening of the community podium towards the city. The corridor space, with its continuous openings, presents a porch passage between the city and the community, serving as a pathway for children to run through every day. Parents wait on one side of the porch for their children, and together they return to the community through the back door.
教室侧墙的进退则形成局部放大的角落。在转角处通过斜线与色彩划分出的立体的洗手池角落,也为蜿蜒的门廊增添些许趣味。
The recesses on the side walls of the classrooms create partially enlarged corners. At the corner, a three-dimensional sink area defined by diagonal lines and colors adds a touch of interest to the winding porch.
项目信息
Project Info
项目名称:知林托管
设计方:由牧建筑
项目设计&完成年份:2024.07&2024.08
主创及设计团队:林剑博、杨嘉桐、钱盛宇
项目地址:浙江温州
建筑面积:75㎡
摄影版权:吴昌乐、由牧建筑
装修主材:玻璃砖、水曲柳木板、乳胶漆、聚碳酸酯板、镜面不锈钢
客服
消息
收藏
下载
最近







































