查看完整案例

收藏

下载
○ Animation 短片○
繁杂的当下更需要用心生活。栽种几株喜欢的花草,闲读几页雅致的诗章,拥有一个面积不大却足够温馨的小窝,让平淡的生活变得悠闲。
There is a subtle connection between art and life. We hope to convey a restrained aesthetic, metaphor for following inner peace. Make a mundane life become leisurely.
/ DESIGN DESCRIPTION /
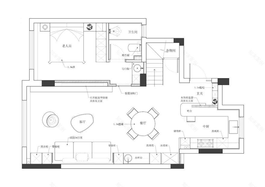
虽然是叠墅户型但面积不大。考虑到面积局限,公区做了开放式设计,木质大量运用到空间当中,通过材质质感串联起区域之间的关系。在光影设计上也有非常多的设计和隐喻,在有限空间有限条件下,不吝于创造出这样一个充满暖意的作品。
户型中并没有独立的玄关区,通过靠墙的高柜与厨房的岛台,以功能定义区域边界。上方的隐藏筒灯让归家告别昏暗,玲珑光影成为表达生活仪式感的空间语言。
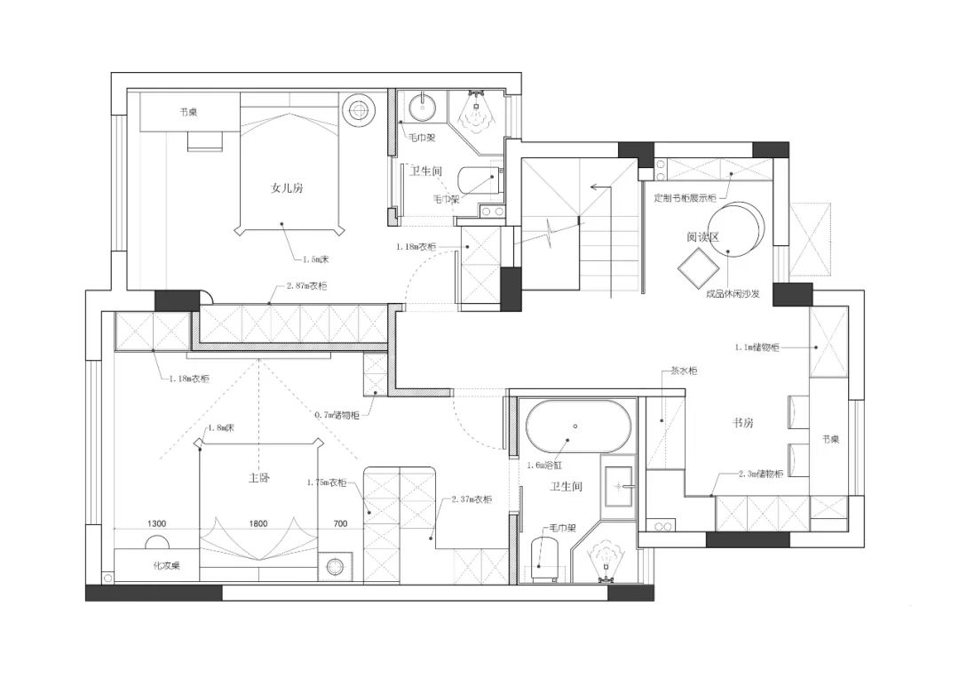
二楼分化了阅读区与办公区,空间规划合理。为了避免视觉上的繁杂,墙顶设计简洁为主,结合窗外映入的光线,探索简约中的精致格调。
空间功能指材料、结构等使立面与立面之间简化为轻易读取的符号,去除多余的表面装饰,单一视觉语言的表达更具纯粹性和“简洁的精致性”。
There is a subtle connection between art and life. We hope to convey a restrained aesthetic metaphor for following inner peace. Make a mundane life become leisurely.
○ 一楼’Plan sketch
○二楼’Plansketch’
-Name | 项目名称- 原木简约
-Project name | 项目地址- 湖州·雅居乐二期
-Spatial properties | 空间属性- 叠墅
-Area | 项目面积- 户型面积160㎡
实景落地】忆境府135㎡- 都市时尚住宅
【实景落地】十里春晓465㎡-光影的灵动变化
【实景】祥生·悦山湖落地实景——锦瑟
【实景落地】首创逸景483㎡—原木治愈的家
庭设计】忆境府全案实景落地——烟雨江南
【龙庭设计】中昂朗郡全案实景落地——鹭点烟汀
【龙庭设计】绿城御园落地实景——生活需要仪式感
【龙庭设计】上实·天澜湾全案实景落地——幻想曲
【龙庭设计】忆镜府全案落地实景——Cheese
【龙庭设计】滨江•春翠里(166户型带地下室)户型全案落地实景——爱在西元前
【龙庭设计】西山辰院落地实景——独白
【龙庭设计】滨江•春翠里138户型全案落地实景——如愿
【龙庭设计】爱家华府全案落地实景——玫瑰窃贼
【实景】十里春晓136方落地实景——慢热
【龙庭设计】枫丹壹号落地实景——稻香
客服
消息
收藏
下载
最近



































