查看完整案例

收藏

下载
位于荷兰海岸的一处旧庄园被改造为公园式住宅区,同时着重保护其文化与历史特色。庄园内的古树参天、建筑独具特色、景观视野开阔,使其成为理想的居住地。
A former estate along the Dutch coast has been transformed into a park-like residential area, with a strong focus on preserving its cultural and historical identity. Monumental trees, distinctive architecture, and stunning views make this estate a delightful place to live.
▼建筑立面,facade © Tim Van de Velde
隐逸别墅坐落于一片郁郁葱葱的花园之中,完全隐匿于私密环境之内,最大程度地减少了周围环境的影响。一旦步入其中,眼前便展现出一个全新的世界。花园的布局巧妙地开辟了新的观景视角,在别墅周围形成多个可供欣赏与休憩的区域。
Hidden Villa is nestled in seclusion, entirely surrounded by a lush garden. This ensures privacy and reduces the impact of the surrounding environment. Once inside, a new world reveals itself. The garden’s design opens up new sight lines and creates various areas around the property that can be enjoyed from the villa.
▼花园庭院,garden © Tim Van de Velde
▼深透的室内外空间,permeated interior and exterior © Tim Van de Velde
别墅的起居空间与户外景观深度融合。如同花园在层次上不断延展,别墅的室内空间亦呈现出丰富的多样性。开阔的视野与精心设计的观景点带来通透感,而双层挑高的庭院则进一步放大了空间感,使居住者能够沉浸在充满绿意的环境之中。这些庭院连接着一层的起居空间,形成流畅的室内外过渡关系。大尺度的遮檐进一步强化了这种联系,使居住者可以自由穿梭于别墅周围。遮檐的进深精准匹配太阳轨迹,在实现大面积玻璃幕墙设计的同时,有效避免了过度曝晒。
The living spaces inside are deeply connected to the outdoors. Just as the garden unfolds in richness, the villa offers a diverse array of spaces to inhabit. Long views and intriguing vantage points create a sense of transparency, with spaciousness enhanced by double-height patios filled with greenery. These patios connect the first-floor living areas, integrating them into the fluid relationship between inside and out. Large canopies strengthen this bond, allowing residents to walk freely around the villa. The canopy’s depth is aligned with the sun’s path, protecting the villa from overheating despite the extensive use of glass in the façades.
▼起居空间,living space © Tim Van de Velde
▼起居空间一角,living space corners © Tim Van de Velde
▼深遮檐,deep eave © Tim Van de Velde
外立面材质经过精心挑选,木材、石材、混凝土与玻璃的结合,使建筑呈现出精致而奢华的气质。入口、庭院及上层外立面采用油处理的梣木包覆,而南侧与东侧的底层立面及附属建筑则采用浅色Kolumba砖。地面和天花的材质无缝衔接,由室内向外延展,形成环绕建筑的白色混凝土地坪,并延续至遮檐的边缘。天花采用细腻的灰泥饰面,而极简铝框与大幅玻璃窗则进一步模糊了室内外的界限,让建筑与花园融为一体。
A balanced blend of materials—wood, stone, concrete, and glass—gives the exterior a refined, luxurious feel. The entrance, patios, and upper-level façades are clad in oil-treated ash wood, while the south and east façades on the ground level and the outbuilding are made of light Kolumba bricks. The flooring and ceilings seamlessly extend from indoors to outdoors, with white concrete floors surrounding the house and forming the outer edges of the canopies. The ceilings are finished with stucco, while minimalist aluminum frames and large glass panes enhance the connection between the interior and the garden.
▼室内概览,interior overview © Tim Van de Velde
▼浴室,bathroom © Tim Van de Velde
▼卧室,bedroom © Tim Van de Velde
▼花园一角,garden corner © Tim Van de Velde
定制家具与嵌入式储物系统巧妙地融入建筑设计之中,进一步提升了室内品质。深色油处理橡木板、通铺的白色混凝土地坪、天然石材厨房等元素,凸显了手工工艺的温度。浴室与卫生间则选用了不同材质的瓷砖,丰富空间层次。照明系统针对不同空间与氛围进行了精细化设计,并通过KNX智能控制系统,实现个性化的灯光调节。
Custom-made furniture and built-in cabinetry elevate the interior, with these elements integrated into the villa’s architectural design. Rich materials like dark-oiled oak panels, continuous white concrete floors, and natural stone kitchen features provide a sense of craftsmanship. Bathrooms and toilets are adorned with a variety of tiles. Lighting is carefully tailored to each space and mood, with KNX-controlled systems offering adaptable ambiance settings.
▼厨房,kitchen © Tim Van de Velde
▼定制家具,Custom-made furniture© Tim Van de Velde
▼细部 © Tim Van de Velde
别墅的多个区域与花园直接相连,其中包括游泳池与壁炉区。户外厨房与遮檐下的露台提供了舒适的休憩空间。花园景观环绕别墅,与庭院交错融合,使建筑、景观与室内空间彼此交织,营造出人与自然和谐共生的居住体验。
Several areas of the garden are directly linked to the villa, including a swimming pool and fire pit. The outdoor kitchen and sheltered terraces beneath the canopy offer inviting spots for relaxation. The greenery wraps around the villa, weaving through the patios and blending nature with the built structure, creating a harmonious interplay between the landscape, architecture and interior design.
▼泳池,pool © Tim Van de Velde
▼泳池夜景,pool night view © Tim Van de Velde
▼带场地一层平面图,ground floor plan on plot © Tim Van de Velde
▼带场地二层平面图,upper floor plans on plot © Tim Van de Velde
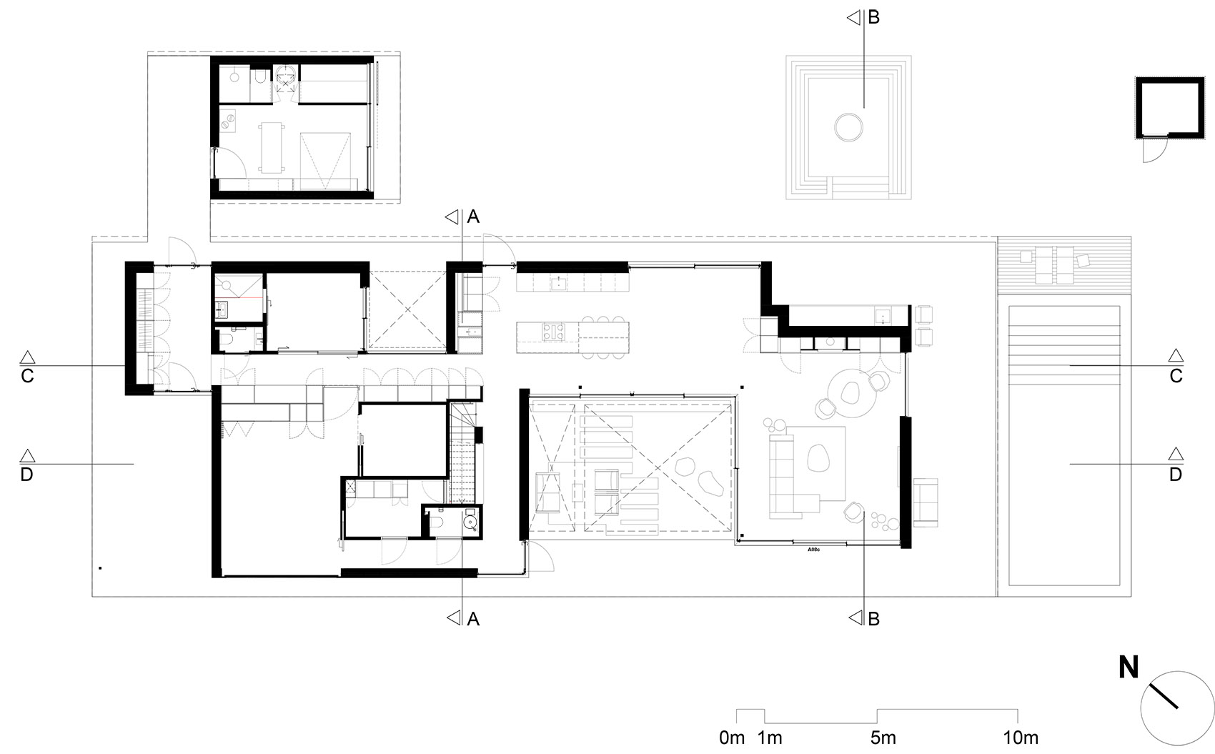
▼一层平面图,ground floor plan © Tim Van de Velde
▼二层平面图,upper floor plan © Tim Van de Velde
▼立面图,elevations © Tim Van de Velde
▼剖面图,sections © Tim Van de Velde
Client: confidential
Architecture design & interior design: i29 architects
Contractor: Hagoort Bouw B.V.
Structural engineer: Huib Jol (Hopman Ingenieursbureau)
Landscape design: Frank Heijligers
Kitchen and fireplace cabinet: Robert Tediek
Lighting: Mette Droog
Copyright images: Tim Van de Velde
Completion: 2024
客服
消息
收藏
下载
最近































































