查看完整案例

收藏

下载
这座位于布拉格近郊度假区的小屋以其独特的形态与外观脱颖而出。它的不对称帐篷状破屋顶被截断,顶部安有一对天窗。最初,这里是一座建于1970年代的单层小屋,带有地下室和缓坡屋顶。来自布拉格的一对夫妇购置了这片土地,希望打造一处不仅用于周末度假,也适合远程办公的避世之所。他们被这片宁静的自然环境深深吸引,周围环绕着花园与茂密的树木,为此还特意学习了园艺课程。然而,原建筑状况极差,不仅无法满足他们的空间需求(希望扩建阁楼卧室),还受到规划法规的严格限制——新建筑不被允许,建筑高度不得超过7.7米。最终,他们选择了一种折衷方案:在符合法规要求的前提下,彻底翻新并扩展原建筑。
The hut in the recreational area near Prague has an unusual shape and appearance. The asymmetrical tent-like roof is truncated and finished with a pair of skylights. Originally, there was a simple one-story hut with a basement and a low-pitched roof built in the 1970s. A married couple from Prague bought the land for a “city escape,” not just for weekends but also for working from home. They were enchanted by the peaceful location amidst nature, surrounded by a garden and mature trees. They eagerly anticipated their retreat from city noise and even took a gardening course, but the building was in very poor technical condition. Additionally, it did not meet their spatial needs as they wanted to expand the ground-floor room with an attic bedroom. However, the zoning plan did not allow new construction, and the height was limited to a maximum of 7.7 meters from the surrounding terrain. The only solution was a complete renovation that would enlarge the house and comply with the requirements of authorities and neighbors.
▼远眺小屋,distant view of the hut © Radek Úlehla
▼外观概览,exterior overview © Radek Úlehla
▼俯瞰,top view © Radek Úlehla
建筑师 Martin Hajný 受邀参与改造,他提出了一个极具创意的方案——截断式四坡屋顶。这一设计的核心在于降低建筑高度,以保护邻居的景观视野。改造过程中,原小屋被保留至石基部分,新建筑则在此之上重新搭建。主结构采用两柱四梁体系(two-by-four system),为透气性结构,并构筑于钢筋混凝土板基础之上。地基则由隐于石墙之后的钢筋混凝土柱支撑。屋面与外立面均采用镀锌金属波纹板,这种材料耐久、易维护,同时在视觉上与传统木质格栅相似,使建筑更具层次感。
Architect Martin Hajný took on the challenge and designed an unusual building with a truncated hip roof. The reason was to minimize height and be considerate of the neighbors, ensuring the roof shape did not disrupt their view of the landscape. The original hut was reduced to its stone base, upon which the new metal structure stands. The main construction is a two-by-four system, diffusely open structure on a reinforced concrete slab, which is set on reinforced concrete pillars hidden behind stone walls. The roof and facade are clad in trapezoidal metal sheeting, a low-maintenance material with a long lifespan that resembles wooden battens.
▼截断式四坡屋顶,a truncated hip roof © Radek Úlehla
▼石基之上的新建筑,
stone base upon which the new metal structure stands © Radek Úlehla
▼立面局部,facade close-up © Radek Úlehla
▼露台,terrace © Radek Úlehla
建筑外立面采用深色调设计,使其低调融入周围环境,而室内空间则形成强烈对比——大量使用松木胶合板,其自然的木纹肌理从天花板延续至墙壁及所有家具,赋予空间经典小屋般的温馨氛围,同时也增强了室内采光。浴室的墙地面则以浅灰色抹灰材质处理,展现出简约质感。
While the dark exterior helps the building blend into its surroundings, the interior is bright and evokes a classic hut with its predominance of wood. The pine plywood used, with its pronounced grain, extends from the ceiling panels to the walls and all furniture. It contrasts with the facade and is practical as it allows more light into the interior. The bathroom features a subtle grey plaster on the floor and walls.
▼室内,interior © Radek Úlehla
▼温馨氛围,warm atmosphere © Radek Úlehla
▼厨房,kitchen © Radek Úlehla
▼浴室,kitchen © Radek Úlehla
得益于简洁高效的平面布局,建筑四面均可开窗,南侧与东侧的大面积玻璃幕墙提供了开阔的自然景观。屋顶的外观则保持完整统一,未设立面窗,以保持建筑形态的简洁。为了引入自然光,卧室则巧妙地通过两扇可开启天窗进行采光。天窗不仅营造出静谧的冥想空间,还形成了快速烟囱效应通风,结合南侧的大型屋檐遮阳,使室内在全年范围内都能保持舒适的气候环境。
From the ground floor, there are views of the surroundings through large-glazed areas oriented to the south and east. The simple layout allowed the use of facade windows on all sides. The truncated hip roof, on the other hand, remained uniform from the outside; any insertion of a window would have disturbed the simplicity of the house as seen from the outside. The bedroom is therefore illuminated by a pair of opening skylights from above. The skylights create an interesting meditative space and allow rapid chimney ventilation of the whole building. Combined with the significant roof overhang over the southern part, this ensures a pleasant indoor climate all year round.
▼楼梯,staircase © Radek Úlehla
▼楼梯与天窗,staircase and skylight © Radek Úlehla
▼卧室,bedroom © Radek Úlehla
▼天窗,skylight © Radek Úlehla
▼壁炉,fireplace © Radek Úlehla
▼夜景,night view © Radek Úlehla
▼总平面图,site plan © Atelier Hajný
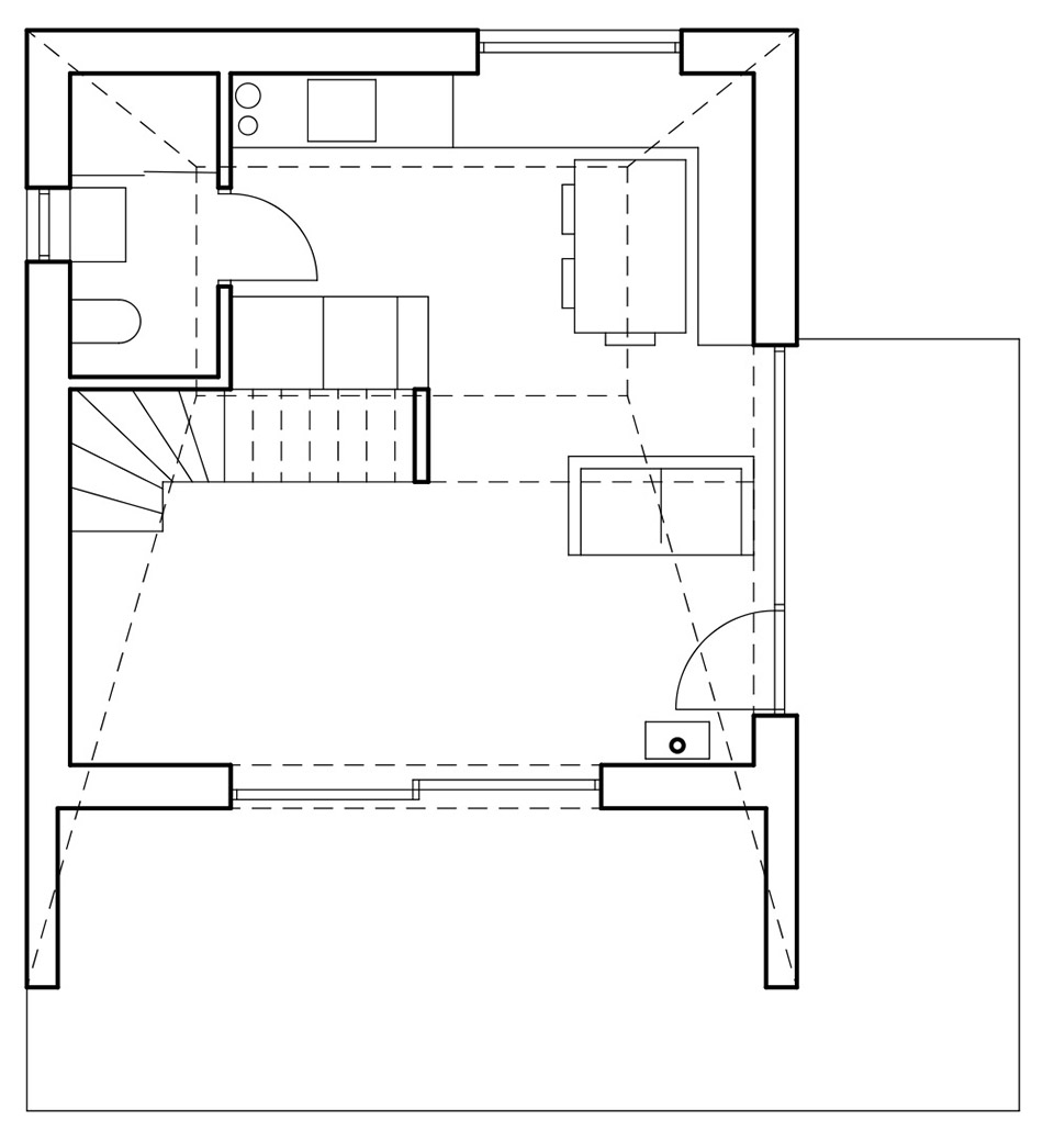
▼首层平面图,ground floor plan © Atelier Hajný
▼阁楼平面图,attic floor plan © Atelier Hajný
▼立面图,elevations © Atelier Hajný
▼剖面图,sections © Atelier Hajný
Studio: Atelier Hajný
Author: Martin Hajný
martin@atelierhajny.cz
Social media:
Studio address: Nitranská 19, 130 00 Prague, Czech Republic
Co-author: Markéta Šornová
Project location: Sázava River area
Project country: Czech Republic
Project year: 2020
Completion year: 2024
Built-up area: 46 m²
Gross floor area: 100 m²
Usable floor area: 80 m²
Plot size: 500 m²
Photographer: Radek Úlehla, ,
客服
消息
收藏
下载
最近






































