查看完整案例

收藏

下载
平面改造
Plane reconstruction-
原始平面图
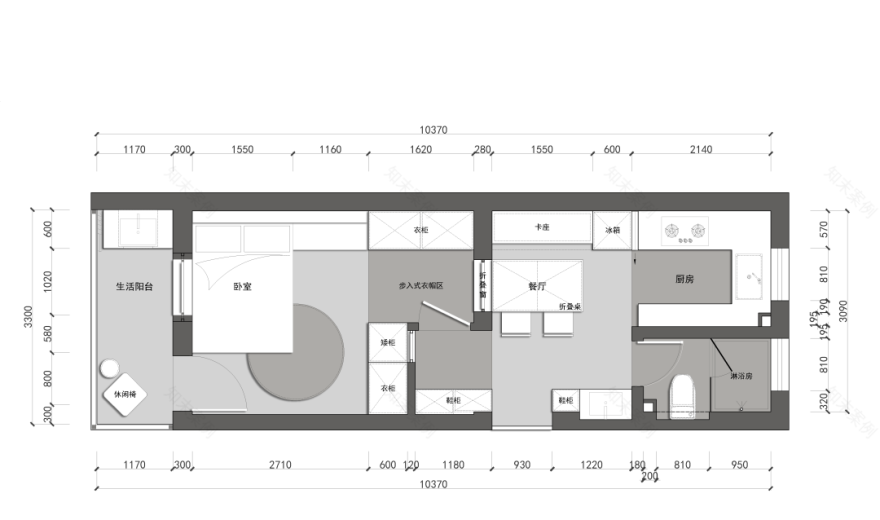
平面布局图
这是一套使用面积32㎡的一人居住宅,原户型动线单一、功能简单、也并无做好收纳储物。在满足业主所有的基础功能下我们做了以下改造:
·改变主卧的动线方式,以内退的形式增设一排收纳,同时卧室门的改变也加强了女业主的隐私性。
·洗手台外置,让逼仄的卫生间能够舒展开来。
·去客厅化,厨房与餐桌依次置入,并做好储物收纳。
·卧室空间稍显宽裕,进门便是步入式衣帽间,定制的柜体、书桌及床头背景,严丝合缝,不浪费一毫一厘。洞洞板与格珊屏风的加入,增加卧室的丰富度。
·公区与卧室之间加入上翻折叠窗,通风的同时也更多了一些趣味性。
*公区
*主卧
*阳台
*卫生间
项目地点:南京·千章巷
建筑面积:39㎡
设计团队:凹设计
文案策划:凹设计
客服
消息
收藏
下载
最近



















