查看完整案例

收藏

下载
项目背景
Project Background
有着“中国硅谷”之称的张江科学城,是中国四大综合性国家科学中心之一,由多条以各国科学家命名的道路交织而成,聚集了世界顶尖的集成电路、航空航天、生物医药等“硬核”主导产业。张江人工智能产业创新与服务平台项目位于张江科学城中区,北临海科路、东倚纳贤路、南面祥科路、西靠海趣路,占据一个完整街坊。项目旨在集当代建筑、当代研发、当代生活于一体的新工作范式下,为研发人才提供休闲、自由、轻松、自然的工作环境。项目周边相邻地块建筑均已建成,北侧隔多层商业与智慧河滨水景观带相望,东、南、西三面均为科教研发建筑。西南侧临近地铁13号线中科路站出站口。
Zhangjiang Science City, often referred to as “China’s Silicon Valley,” is one of China’s four major comprehensive national science centers. The city is characterized by a network of roads named after prominent scientists from various countries, and it serves as a hub for world-leading industries in fields such as integrated circuits, aerospace, bio-medicine, and other “hardcore” sectors. The Zhangjiang Artificial Intelligence Industry Innovation and Service Platform Project is located in the central area of Zhangjiang Science City, bordered by Haike Road to the north, Naxian Road to the east, Xiangke Road to the south, and Haiqu Road to the west, occupying an entire city block. The project aims to create a new work paradigm that integrates contemporary architecture, research and development, and lifestyle, providing a work environment that is leisurely, free, relaxed, and natural for R&D personnel. Surrounding plots have already been developed, with the northern side facing a multi-story commercial area and the Riverside Landscape Belt. The east, south, and west sides are adjacent to science and education research and development buildings. To the southwest, the site is in close proximity to the Zhongke Road Station on Metro Line 13.
▼园区鸟瞰,aerial view of the campus©胡义杰
城市与建筑
Urban Environment and Architecture
以“张江之门”双子塔为地标的张江城市副中心正在如火如荼的建设中,这里是张江核心产业的高地,承载着张江未来发展的期望。沿海科路的城市界面,是该地区城市设计导则中重点塑造的城市天际线,其建筑形态既要满足宏大城市设计中的风貌要求,也要融入科学城整体小街区规划所需要营造的舒适步行体验。我们在项目中更加关注建筑与城市的关系,通过街区内城市空间的优化,促进区域环境的整体性特征的形成。建筑的群体布局不是自我表现的产物,而是着眼于如何优化区域环境整体质量。建筑设计的目标,不是通过形式强调自身,而是将建筑自身的形式溶解,使其顺应环境,又恰如其分。
The Zhangjiang Urban Subcenter, marked by the iconic “Zhangjiang Gate” Twin Towers, is undergoing rapid construction. This area is positioned as a key hub for Zhangjiang’s core industries and carries the expectations for the region’s future development. The urban interface along Haike Road represents a focal point in the area’s urban design guidelines, aiming to shape the city’s skyline. The architectural forms in this area must not only meet the aesthetic requirements of the grand urban design but also integrate seamlessly with the small-block planning of the science city, creating a comfortable pedestrian experience. In this project, our primary focus is on the relationship between architecture and the urban environment. Through optimizing the urban spaces within the block, we aim to foster the formation of a cohesive regional character. The layout of the architectural cluster is not a product of self-expression, but rather a strategy to enhance the overall environmental quality of the area. The goal of the architectural design is not to emphasize the form for its own sake, but to dissolve the form of the building into the environment, allowing it to harmoniously adapt and fit naturally within the urban context.
▼园区街景,street view of the campus©胡义杰
▼园区建筑外观,exterior view of the campus building©胡义杰
▼园区建筑外观,exterior view of the campus building©胡义杰
街道与广场
Streets and Plazas
我们遵循城市设计的原则,强调城市空间的整体性与慢行系统的连贯性。建筑群体采取半围合式的布局,两栋塔楼,一高一低,于场地的西北和东南呈对角布置,保证两栋塔楼都拥有开阔的空间视野;在地面的场地关系中,又形成西南和东北一大一小对角布置的两个广场;南侧广场侧重仪式,解决两栋塔楼的大堂入口及落客,北侧广场更加休闲,植物密集。两个广场相对独立又相互连通,由此形成一条可以穿越街区的开放捷径,链接从地铁站到北侧智慧河景带的步行空间。
▼总平面图,site plan©致正建筑工作室
We adhere to the principles of urban design, emphasizing the integrity of urban space and the coherence of the pedestrian circulation system. The architectural ensemble adopts a semi-enclosed layout, with two towers—one tall and one short—placed diagonally at the northwest and southeast corners of the site, ensuring both towers enjoy expansive spatial views. In terms of the ground-level spatial relationship, the layout creates two plazas at the southwest and northeast corners, one larger and one smaller, arranged diagonally. The plaza on the south side focuses on ceremonial functions, accommodating the grand entrances and drop-off areas for the towers, while the north plaza offers a more relaxed atmosphere with dense planting. The two plazas, though relatively independent, are interconnected, forming an open shortcut that traverses the block and links the pedestrian space from the subway station to the Riverside Landscape Belt to the north.
▼建筑群体采取半围合式的布局,the architectural ensemble adopts a semi-enclosed layout©胡义杰
▼形成一条可以穿越街区的开放捷径,forming an open shortcut that traverses the block and links the pedestrian space©胡义杰
山石和退台
Hill Stones and Terraced Setbacks
我们从中国传统山水自然观中获得启发,尝试让科学城的建筑不同于毫无识别性的城市商务区塔楼。每栋塔楼对外面向城市道路的两个方向垂直落地,而对内面向广场的两个方向则形成交错退台。两侧退台对角呼应,如垒石堆山一般。从室内空间走到露台,营造一种山景对望的意象,用当代建筑的体量复刻一种参差错落的的自然景观。
▼形态生成,massing generation©致正建筑工作
Drawing inspiration from traditional Chinese landscape and nature philosophy, we aim to differentiate the architecture of the science city from the anonymous towers typically found in urban business districts. Each tower is vertically aligned with the two city roads on the exterior, while on the interior, facing the plaza, the building mass steps back in staggered layers. The retreating façades on both sides echo each other diagonally, reminiscent of the stacked rocks on the hill. Moving from the interior spaces to the terrace creates an imagery of gazing toward mountain view, where the volumes of architecture replicate the undulating, fragmented patterns of natural scenery.
▼营造一种山景对望的意象,reminiscent of the stacked rocks on the hill©胡义杰&致正建筑工作室
▼山石退台的意象,hill stones and terraced setback©胡义杰
▼山石退台的意象,hill stones and terraced setback©胡义杰
界面与材质
Interfaces and Materials
由总体布局产生的“内”和“外”两种界面用两种材质感予以回应。退台内界面,于广场,于露台,我们鼓励活动、交流,乐见停留,由此选择了一种通透柔软的质感,通体采用玻璃幕墙。直立外界面,于道路,于城市,我们希望典雅、稳重,所以选择坚固的质感,通体采用浅色花岗石材格构幕墙;同时将石材格构的外凸断面处理成缓斜边同侧向外和向下的三角形壁柱和窗楣,并在垂直方向每隔两层让石材璧柱锐角上下错位对缝,形成具有韵律变化的立面,平衡了石材本身的厚重感。
▼石材幕墙及玻璃幕墙,stone curtain wall and glass curtain wall ©致正建筑工作室
The “internal” and “external” interfaces, arising from the overall layout, are responded to with two distinct material textures. The setback interior interface, facing the plaza and terrace, encourages activity, interaction, and welcome lingering; thus, we selected a transparent, soft texture, employing a full glass curtain wall. In contrast, the upright exterior interface, facing the streets and the city, conveys elegance and solidity, for which we chose a robust materiality, using a light-colored granite lattice cladding system. Additionally, the outward-facing, angular sections of the stone grid are treated with gently sloping edges, forming triangular columns and window lintels that extend outward and downward. Vertically, every two stories, the sharp corners of the stone columns are staggered, creating a rhythmic variation in the façade, which balances the inherent heaviness of the stone.
▼石材细部,stone detail©胡义杰
▼雨棚细部,canopy detail©胡义杰
模数与控制
Modularity and Control
建筑的体量有两个方向的退台变化,围护幕墙有两种材料及构造体系。为了把不同维度的变化统一起来,我们设定了一套1.4mX1.4m的矩阵网格,用模数化的办法,把所有的建造元素归纳起来,从体量凹凸、幕墙分格、楼台扶手,到结构柱网、天花吊顶,都落位在这套矩阵之上。自此,整个4万m2的办公楼立面,无论石材部分还是玻璃部分,其幕墙单元被归纳为统一宽度。合理的模数系统使得精良的节点控制得以实现,并且该模数从立面延伸到室内,最终达到和谐统一。自然通风系统采用横向通风器,隐藏布置在层间幕墙和地面交接位置,用以取代传统的悬窗开启扇,极大的净化了立面效果。
▼通风器节点,ventilator detail©致正建筑工作室
The building massing undergoes two directional setbacks, and the building envelope incorporates two different materials and tectonic systems. In order to unify these varying dimensional diversities, we established a 1.4m x 1.4m grid matrix. Using a modular approach, all construction elements—from the mass’s protrusions and recesses, curtain wall divisions, and balcony railings to the structural column grid and ceiling design—are aligned within this matrix system. As a result, the entire 40,000m² office building façade, both the stone and glass sections, features curtain wall units with a uniform width. The rational modular system facilitates precise control over detailing, and this modularity extends from the façade to the interior, achieving a harmonious and unified design. The natural ventilation system utilizes lateral ventilators, discreetly integrated into the junctions between the floor and the interstitial curtain wall, replacing traditional hinged windows. This significantly enhances the aesthetic clarity of the façade.
▼玻璃幕墙,glass curtain wall©胡义杰
▼玻璃幕墙,glass curtain wall©胡义杰
▼石材幕墙,stone curtain wall©胡义杰
结语
Conclusion
在这个项目中,我们着重思考了建筑与空间如何为有一定开发历史、并集聚高精尖产业的科学城补足产业链条、升级城市形象提供支持,搭建更具活力的产业生活氛围。我们希望用“城市山谷”的空间模式,为张江科学城提供一种新的研发办公楼模型,将宏观的人性化的城市设计策略,延展到每个建筑单体,延展到每个使用空间的个体,为同质化的办公空间,贡献人性化、自然化、生态化的工作栖居场景。
In this project, we focus on how architecture and space can support the Science City—an area with a certain development history and a concentration of high-end, cutting-edge industries—to complete its industrial chain and upgrade the urban image, while fostering a dynamic industrial and living atmosphere. We aim to introduce a new model for R&D office buildings in Zhangjiang Science City through the spatial concept of an “Urban Valley”. By extending macro-level, human-centered urban design strategies to each single building and the specific spaces within them, we aspire to offer a more humanized, natural, and ecological working and living environment, in contrast to the homogenized office spaces typically found elsewhere.
▼入口夜景,entrance at night©胡义杰
▼夜景,night view©胡义杰
▼夜景鸟瞰,aerial view at night©胡义杰
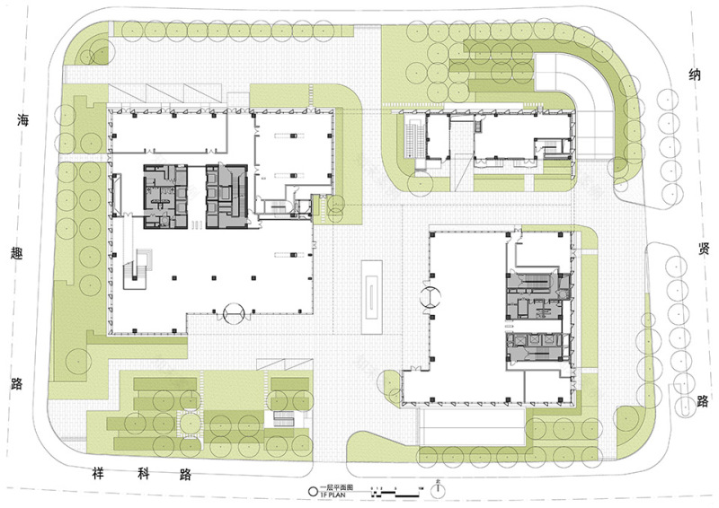
▼一层平面,ground floor plan©致正建筑工作室
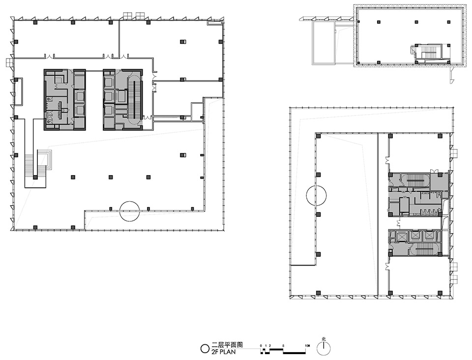
▼二层平面,first floor plan©致正建筑工作室
▼三层平面,third floor plan©致正建筑工作室
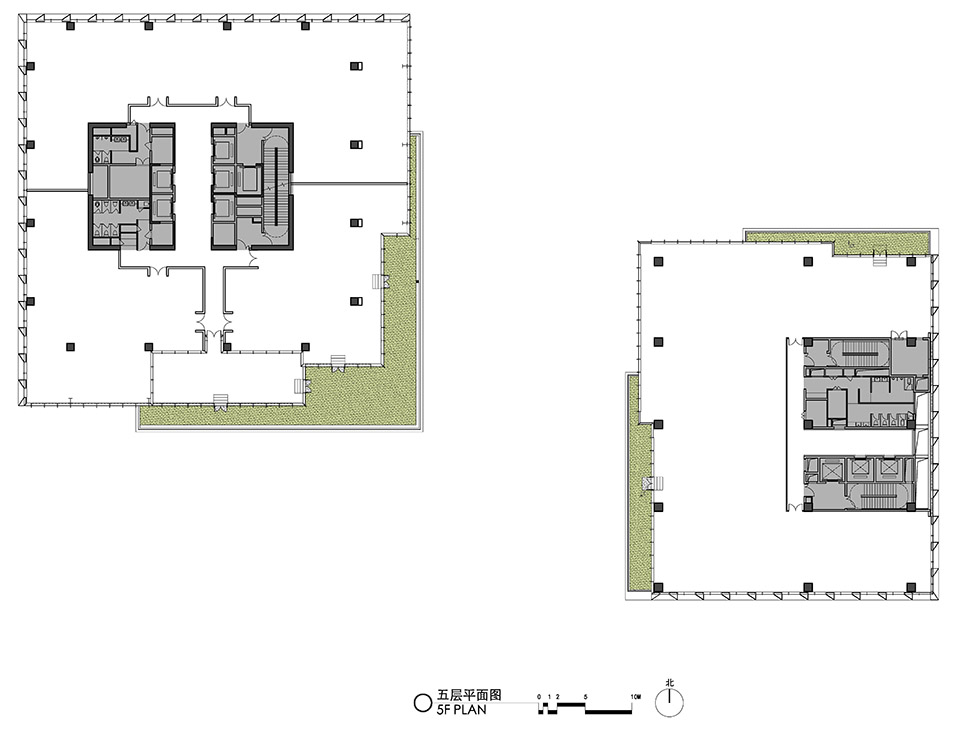
▼五层平面,fifth floor plan©致正建筑工作室
▼六层平面,sixth floor plan©致正建筑工作室
▼七层平面,seventh floor plan©致正建筑工作室
▼十一层平面,eleventh floor plan©致正建筑工作室
▼立面图,elevation©致正建筑工作室
▼剖面图,section©致正建筑工作室
项目名称:张江人工智能产业创新与服务平台
建筑师:周 蔚 + 张 斌 / 致正建筑工作室
主持建筑师:张 斌
项目建筑师:李 沁、李 硕
设计团队:周雪峰、洪陈金、李乐、叶磊、樊明明、姜硕、涂单
设计咨询:大正建筑事务所
设计总包:上海中建建筑设计院有限公司
设计总负责:王德华
建筑:专业负责人:王红兵 设计:林国显、郑强
结构:专业负责人:张永昱 设计:冯传山
暖通:专业负责人:程建威 设计:宫慧美
给排水:专业负责人:金阳 设计:侯南卫
强电:专业负责人:于刚 设计:林浩、严顺军
弱电:专业负责人:于刚 设计:林浩、严顺军
景观顾问:上海迪弗建筑规划设计有限公司 / 马进 袁煜奇 李凌
建设地点:上海市浦东新区张江科学城祥科路55号
建设单位:上海张江(集团)有限公司
施工总包:中建八局第三建设有限公司
专业分包:幕墙:上海玻机智能幕墙股份有限公司 泛光:上海东泓照明工程有限公司 空调:江苏南通二建集团有限公司 消防:江苏南通二建集团有限公司 弱电智能化:上海信业智能科技股份有限公司 景观:上海市园林工程有限公司
设计时间:2015.05 – 2017.12
建造时间:2020.05 – 2023.01
用地面积:11,466m2
占地面积:3,434m2
建筑面积:49,999m2
结构形式:1#研发楼:钢框架 + 钢筋混凝土核心筒结构 2#研发楼:钢框架结构 3#配套楼:钢筋混凝土框架结构
建筑层数: 1#研发楼地上16层,2#研发楼地上8层,3#研发配套楼2层,地下2层
建筑高度:1#研发楼80.00米,2#研发楼41.05米,3#研发配套楼11.10米
主要用途:研发办公、配套服务、地下车库
主要建筑用材:芝麻白花岗石,氟碳喷涂铝型材及铝板,超白钢化安全玻璃,拉丝不锈钢
主要景观用材:花岗岩,卵石,耐候钢板,铝板,胶合竹材
工程造价:约4.4亿元人民币
摄影师:胡义杰
Project Name: Zhangjiang Artificial Intelligence Industry Innovation and Service Platform, Pudong, Shanghai
Architects: ZHOU Wei + ZHANG Bin / Atelier Z+
Partner in Charge: ZHANG Bin
Project Architect: LI Qin, LI Shuo
Design Team: ZHOU Xuefeng, HONG Chenjin, LI Le, YE Lei, FAN Mingming, JIANG Shou, TU Dan
Design Consultant: D-plus Studio
Design General Contractor: Shanghai Zhongjian Architectural Design Institute Co., Ltd.
Project Leader: WANG Dehua}
Architecture: Professional Lead: WANG Hongbing 设计:LIN Guoqiang, ZHEN Qiang
Structure: Professional Lead: ZHANG Yongyu 设计:FENG Chuanshan
HVAC: Professional Lead: CHEN Jianwei 设计:GONG Huimei
Drainage: Professional Lead: JIN Yang 设计:HOU Nanwei
Strong Current: Professional Lead: YU Gang 设计:LIN Hao, YAN Shunjun
Weak Current: Professional Lead: YU Gang 设计:LIN Hao, YAN Shunjun
Landscape Consultant: Shanghai Difu Architectural Planning and Design Co., Ltd. / MA Jin, YUAN Yuqi, LI Ling
Location: No. 55 Xiangke Road, Zhangjiang Science City, Pudong, Shanghai
Client: Zhangjiang Group Co., Ltd.
Construction General Contractor: China Construction Eighth Engineering Division Third Construction Co., Ltd.
Construction Subcontracting: 幕墙:上海玻机智能幕墙股份有限公司 泛光:上海东泓照明工程有限公司 空调:江苏南通二建集团有限公司 消防:江苏南通二建集团有限公司 弱电:上海信业智能科技股份有限公司 景观:上海景观工程有限公司
Design Period: 05.2015-12.2017
Construction Period: 05.2020-01.2023
Site Area: 11,466m2
Building Area: 3,434m2
Gross Floor Area: 49,999 m2
Structure: R&D Building 1, Steel Frame+ Reinforced Concrete Core Tube Structure, R&D Building 2, Steel Frame Structure, Ancillary Building 3, Reinforced Concrete Frame Structure
Building Story: R&D Building 1, 16 Stories, R&D Building No, 8 Stories, Ancillary Building 3, 2 Stories, 2 Basements
Building Height: R&D Building 1, 80m, R&D Building 2, 41.05m, Ancillary Building 3,11.1m
Principal Use: R&D Office, Ancillary Services, Parking Garage
Primary Building Materials: Sesame White Granite, Fluorocarbon Spray Pre-coated Aluminum Sheeting and Profile, Ultra Clear Safety Glass, Brushed Stainless Steel
Primary Landscape Materials: Granite, Pebble, Cor-ten Steel Plate, Aluminum Plate, Bamboo Laminate Timber
Cost: About 440,000,000 Yuan RMB
Photography: HU Yijie
客服
消息
收藏
下载
最近





















































